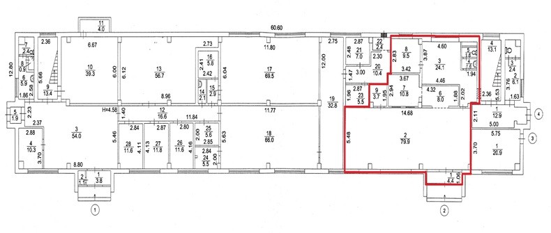
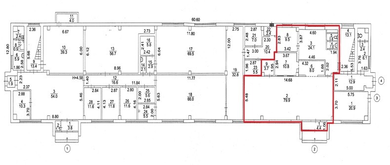
м. Київ, пр-т. Академіка Глушкова, 38 (Голосіївський р-н). Оренда – приміщення 1-го поверху, загальною площею – 143,60 кв. м. (В)

15 862.06 грн
110.46 грн / м2
Україна, м.Київ, Київ, 03187, м. Київ, пр-т. Академіка Глушкова, 38 (Голосіївський р-н)
Перейти до аукціону на сайті
  • Інформація
  • Опис
  • Документи
Дата оголошення пропозиції:
08 серпня 2025
Площа:
143.60 м2
Тип об’єкта:
Приміщення
Тип аукціону:
Англійський аукціон
Статус аукціону:
Аукціон не відбувся
Тип угоди:
Оренда
Розмір мінімального кроку:
200.00 ₴
Розмір гарантійного внеску:
9 517.24 ₴
Початок прийому пропозицій:
08.08.2025 07:27:11
Завершення прийому пропозицій:
08.09.2025 20:00:00
Проведення аукціону:
09.09.2025 12:15:00
Лот:
CLE001-UA-20250808-67952
№ лоту (УТК):
UTK200225_42U
Лот виставляється на торги (раз):
5
Стислий опис майна:
Пропонуються до оренди приміщення 1-го поверху, загальною площею 143,6 кв.м. Будівля знаходиться у Голосіївському районі міста Києва, житловий масив Теремки. Зупинки маршрутного транспорту, супермаркети, торгово-розважальні центри. Найближчі станції метро «Теремки». Доступ 24/7. Характеристики: • кількість поверхів – 4; • загальна площа будівлі – 2 777,30 м2; • земельна ділянка – 0,2109 га*; • дозволена потужність – 10,0 кВт; • сан. вузол, водопостачання, каналізація – присутні; • опалення централізоване (міське). *земельна ділянка не є предметом оренди;
Адреса місцезнаходження майна:
Україна, м.Київ, Київ, 03187, м. Київ, пр-т. Академіка Глушкова, 38 (Голосіївський р-н)
Схожі пропозиції
20.06.2023
м. Київ, вул. Василя Макуха (Івана Шевцова), 5 Оренда – приміщення 1-го поверху будівлі, площею 401,5 м2 (В)
41 860.39 грн
104.26 грн / м2
Приміщення
м. Київ, вул. Василя Макуха (Івана Шевцова), 5 Оренда – приміщення 1-го поверху будівлі, площею 401,5 м2 (В)
Україна, м.Київ, м. Київ, вулиця Василя Макуха (Івана Шевцова), 5
м. Київ, вул. Джона Маккейна, №40. Оренда – приміщення підвалу, площею 24,80 м2 (В)
7 195.47 грн
290.14 грн / м2
Приміщення
м. Київ, вул. Джона Маккейна, №40. Оренда – приміщення підвалу, площею 24,80 м2 (В)
Україна, м.Київ, Київ, вул. Джона Маккейна, №40
23.04.2025
м. Київ, вул. Наталії Ужвій 1 (Подільський р-н). Оренда – приміщення 1-го поверху, загальною площею – 41,00 м. кв.(В)
5 362.80 грн
130.80 грн / м2
Приміщення
м. Київ, вул. Наталії Ужвій 1 (Подільський р-н). Оренда – приміщення 1-го поверху, загальною площею – 41,00 м. кв.(В)
Україна, м.Київ, Київ, 04108, м. Київ, вул. Наталії Ужвій 1
м. Київ, Антоновича 40 Оренда приміщень 5 пов.
276 732.00 грн
360.00 грн / м2
Приміщення
м. Київ, Антоновича 40 Оренда приміщень 5 пов.
Україна, м.Київ, місто Київ, вул. Антоновича, 40
Переглянуті пропозиції
31.10.2023
Чернігівська обл., смт. Куликівка, вул. Миру, 59. Оренда – приміщення 1-го поверху площею 18,7 кв.м. (П)
620.47 грн
33.18 грн / м2
Приміщення
Чернігівська обл., смт. Куликівка, вул. Миру, 59. Оренда – приміщення 1-го поверху площею 18,7 кв.м. (П)
Україна, Чернігівська обл., смт. Куликівка, вул. Миру, 59