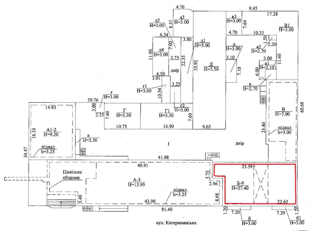
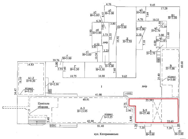
Одеська обл., м. Одеса, вул. Катерининська, 37. Оренда – приміщення 8-го, 9-го поверхів загальною площею 335,60 кв.м (В)

83 900.00 грн
250.00 грн / м2
Україна, Одеська обл., м. Одеса, вул. Катерининська, 37.
Перейти до аукціону на сайті
  • Інформація
  • Опис
  • Документи
Дата оголошення пропозиції:
18 серпня 2025
Площа:
335.60 м2
Тип об’єкта:
Приміщення
Тип аукціону:
Англійський аукціон
Статус аукціону:
Аукціон не відбувся
Тип угоди:
Оренда
Розмір мінімального кроку:
2 000.00 ₴
Розмір гарантійного внеску:
50 340.00 ₴
Початок прийому пропозицій:
18.08.2025 12:55:08
Завершення прийому пропозицій:
17.09.2025 20:00:00
Проведення аукціону:
18.09.2025 12:50:00
Лот:
CLE001-UA-20250818-18051
№ лоту (УТК):
UTK211222_19P
Лот виставляється на торги (раз):
10
Стислий опис майна:
Пропонуються до оренди приміщення 8-го, 9-го поверхів загальною площею 335,60 кв.м. Приміщення поверхів потребують косметичного ремонту. Об'єкт знаходиться у історичному місці Приморського району міста, загальний вхід в будівлю з вулиці, в будівлі працює ліфт, на 8-му поверсі два окремих санвузла, зручна транспортна розв’язка та інфраструктура. Характеристики: Загальна площа – 1810,70 кв.м; Площа запропонована до оренди – 335,60 кв.м; Дозволена потужність – 30 кВт ; Теплопостачання – централізоване ; Земельна ділянка – 0,3782 га
Адреса місцезнаходження майна:
Україна, Одеська обл., м. Одеса, вул. Катерининська, 37.
Схожі пропозиції
19.01.2024
Одеська обл., Одеській р-н, с. Кароліно-Бугаз, вул. Приморська, 23. Оренда – приміщення 2-го поверху загальною площею 28,40 кв.м (В)
639.00 грн
22.50 грн / м2
Приміщення
Одеська обл., Одеській р-н, с. Кароліно-Бугаз, вул. Приморська, 23. Оренда – приміщення 2-го поверху загальною площею 28,40 кв.м (В)
Україна, Одеська обл., Одеській р-н, с. Кароліно-Бугаз, вул. Приморська, 23
19.01.2023
Одеська обл., м. Одеса, вул. Генерала Петрова, 30/2. Оренда – приміщення гаражу, майстерні загальною площею 79,20 кв.м та 2 парко-місця (В)
3 659.04 грн
46.20 грн / м2
Приміщення
Одеська обл., м. Одеса, вул. Генерала Петрова, 30/2. Оренда – приміщення гаражу, майстерні загальною площею 79,20 кв.м та 2 парко-місця (В)
Україна, Одеська обл., м. Одеса, вул. Генерала Петрова, 30/2
28.05.2024
Одеська обл., м. Подільськ, вул. Гоноратська, 25а. Оренда – приміщення гаражу площею 103,00 кв.м (В)
4 059.23 грн
39.41 грн / м2
Приміщення
Одеська обл., м. Подільськ, вул. Гоноратська, 25а. Оренда – приміщення гаражу площею 103,00 кв.м (В)
Україна, Одеська обл., м. Подільськ, вул. Гоноратська, 25а
12.08.2025
ДОВГОСТРОКОВА ОРЕНА! Одеська обл., м. Одеса, вул. Балківська, буд.№54. Оренда – приміщення 4-го поверху загальною площею 850,50 кв.м. (В)
51 030.00 грн
60.00 грн / м2
Приміщення
ДОВГОСТРОКОВА ОРЕНА! Одеська обл., м. Одеса, вул. Балківська, буд.№54. Оренда – приміщення 4-го поверху загальною площею 850,50 кв.м. (В)
Україна, Одеська обл., м. Одеса, вул. Балківська, буд.№54
Переглянуті пропозиції
26.11.2025
Довгострокова оренда! Полтавська обл., Мирогородський р-н, смт. В.Багачка, вулиця Каштанова, 13. Оренда – будівля площею 176,50 кв.м. (В)
6 421.07 грн
36.38 грн / м2
Будівля
Довгострокова оренда! Полтавська обл., Мирогородський р-н, смт. В.Багачка, вулиця Каштанова, 13. Оренда – будівля площею 176,50 кв.м. (В)
Україна, Полтавська обл., Велика Багачка, вулиця Каштанова, 13
Одеська обл., м. Одеса, вул. 19 км Старокиївської дороги, буд. 33. Оренда – приміщення 2-го поверху площею 45,30 кв.м. (В)
1 817.44 грн
40.12 грн / м2
Приміщення
Одеська обл., м. Одеса, вул. 19 км Старокиївської дороги, буд. 33. Оренда – приміщення 2-го поверху площею 45,30 кв.м. (В)
Україна, Одеська обл., м. Одеса, вул. 19 км Старокиївської дороги, буд. 33
02.02.2023
Львівська обл., смт. Підбуж, вул. Зелена, 17. Оренда – нежитлова будівля загальною площею 88,30 кв. м. (В)
2 088.30 грн
23.65 грн / м2
Будівля
Львівська обл., смт. Підбуж, вул. Зелена, 17. Оренда – нежитлова будівля загальною площею 88,30 кв. м. (В)
Україна, Львівська обл., смт. Підбуж, вул. Зелена, 17
13.09.2023
м.Харків, вул. Конторська,14    Оренда – приміщення 2-го поверху площею 12,1 кв.м (В)
1 018.22 грн
84.15 грн / м2
Приміщення
м.Харків, вул. Конторська,14 Оренда – приміщення 2-го поверху площею 12,1 кв.м (В)
Україна, Харківська обл., Харків, вулиця Конторська, 14