Рівненська обл., м. Дубровиця, вул. Шевченка, 53. Оренда – приміщення 2-го та 3-го поверху площею 163,70 кв.м. (В)

3 714.35 грн
22.69 грн / м2
Україна, Рівненська обл., Дубровиця, Дубровиця, вул. Шевченка, 53
Перейти до аукціону на сайті
  • Інформація
  • Опис
  • Документи
Дата оголошення пропозиції:
06 вересня 2025
Площа:
163.70 м2
Тип об’єкта:
Приміщення
Тип аукціону:
Англійський аукціон
Статус аукціону:
Аукціон не відбувся
Тип угоди:
Оренда
Розмір мінімального кроку:
200.00 ₴
Розмір гарантійного внеску:
2 228.61 ₴
Початок прийому пропозицій:
06.09.2025 00:08:58
Завершення прийому пропозицій:
06.10.2025 20:00:00
Проведення аукціону:
07.10.2025 11:45:00
Лот:
CLE001-UA-20250905-75169
№ лоту (УТК):
UTK020525_02U
Лот виставляється на торги (раз):
4
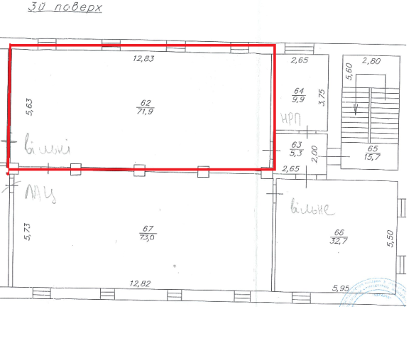
Стислий опис майна:
Пропонуються до оренди приміщення 2-го та 3-го поверху площею 163,7 кв.м. Будівля знаходиться в центрі міста, розвинена інфраструктура, поряд відділення Укрпошти та Ощадбанку, магазини та адміністративні приміщення. Вхід в приміщення спільний. Територія огороджена та частково впорядкована. Потребує реконструкції системи електроживлення. Характеристики: Кількість поверхів – 3; Загальна площа – 1149,3 кв.м.; Площа, запропонована до оренди – 163,7 кв.м.; Земельна ділянка - площа 0,1345 га.(договір оренди)
Адреса місцезнаходження майна:
Україна, Рівненська обл., Дубровиця, Дубровиця, вул. Шевченка, 53
Схожі пропозиції
20.12.2022
Рівненська обл., м. Вараш, м-н Незалежності, 4. Оренда – приміщення 2 поверху, площею 290,5 м.кв. ( В )
5 810.00 грн
20.00 грн / м2
Приміщення
Рівненська обл., м. Вараш, м-н Незалежності, 4. Оренда – приміщення 2 поверху, площею 290,5 м.кв. ( В )
Україна, Рівненська обл., Вараш, майдан Незалежності, 4
20.04.2023
Рівненська обл., Вараський р-н, с. Більська Воля, вул. Шкільна, 14. Оренда – нежитлові приміщення площею 62,8 кв.м. (В)
553.27 грн
8.81 грн / м2
Приміщення
Рівненська обл., Вараський р-н, с. Більська Воля, вул. Шкільна, 14. Оренда – нежитлові приміщення площею 62,8 кв.м. (В)
Україна, Рівненська обл., Більська Воля, вулиця Шкільна, 14
09.03.2023
Рівненська обл., смт. Володимирець вул. Поштова ,23. Оренда – приміщення 1-го поверху загальною площею 80,5 м.кв. (В)
1 787.10 грн
22.20 грн / м2
Приміщення
Рівненська обл., смт. Володимирець вул. Поштова ,23. Оренда – приміщення 1-го поверху загальною площею 80,5 м.кв. (В)
Україна, Рівненська обл., смт. Володимирець, вул. Поштова ,23
10.06.2025
Довгострокова оренда! Рівненська обл., м. Рівне вул. Міцкевича, 2. Оренда – приміщення 1-го поверху загальною площею 150,30 м. кв. (В)
16 031.00 грн
106.66 грн / м2
Приміщення
Довгострокова оренда! Рівненська обл., м. Рівне вул. Міцкевича, 2. Оренда – приміщення 1-го поверху загальною площею 150,30 м. кв. (В)
Україна, Рівненська обл., Рівне, 33028 Рівненська обл., м. Рівне, вул. Міцкевича.2
Переглянуті пропозиції
05.09.2025
Рівненська обл., Вараський р-н, с. Великі Телковичі, вул. Щорса, 15. Оренда – приміщення будівлі площею 47,3 кв.м. (В)
567.60 грн
12.00 грн / м2
Приміщення
Рівненська обл., Вараський р-н, с. Великі Телковичі, вул. Щорса, 15. Оренда – приміщення будівлі площею 47,3 кв.м. (В)
Україна, Рівненська обл., Великі Телковичі, Великі Телковичі, вул. Щорса, 15
16.01.2024
Рівненська обл., Рівненський р-н, с. Пустомити, вул. Радянська, 41. Оренда – виробничі приміщення площею 21,80 кв.м. (В)
261.60 грн
12.00 грн / м2
Приміщення
Рівненська обл., Рівненський р-н, с. Пустомити, вул. Радянська, 41. Оренда – виробничі приміщення площею 21,80 кв.м. (В)
Україна, Рівненська обл., Рівненський р-н, с. Пустомити, вул. Радянська, 41
28.12.2022
Волинська обл., м. Любомль, вул. Б.Хмельницького, 2. Оренда – приміщення 1-го поверху адмінбудівлі площею 98,50 кв.м. (В)
4 018.80 грн
40.80 грн / м2
Приміщення
Волинська обл., м. Любомль, вул. Б.Хмельницького, 2. Оренда – приміщення 1-го поверху адмінбудівлі площею 98,50 кв.м. (В)
Україна, Волинська обл., м. Любомль, вул. Б.Хмельницького, 2
22.04.2025
м. Чернігів, вул. Кільцева,11. Оренда – частина комплексу виробничих будівель площею 1339,7 кв.м (В)
40 191.00 грн
30.00 грн / м2
Будівля
м. Чернігів, вул. Кільцева,11. Оренда – частина комплексу виробничих будівель площею 1339,7 кв.м (В)
Україна, Чернігівська обл., м. Чернігів, вул. Кільцева,11