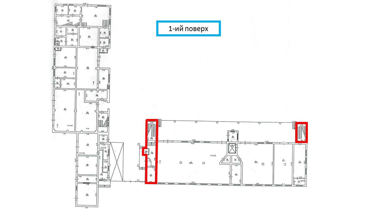
Івано-Франківська обл., м. Івано-Франківськ, вул. Ребета, 2. Оренда – Приміщення 2-го та 3-го поверху адміністративно-складської будівлі, площею 1518,30 кв.м. (В)

91 098.00 грн
60.00 грн / м2
Україна, Івано-Франківська обл., Івано-Франківськ, вул. Ребета, 2
Перейти до аукціону на сайті
  • Інформація
  • Опис
  • Документи
Дата оголошення пропозиції:
08 вересня 2025
Площа:
1518.30 м2
Тип об’єкта:
Приміщення
Тип аукціону:
Англійський аукціон
Статус аукціону:
Аукціон не відбувся
Тип угоди:
Оренда
Розмір мінімального кроку:
1 000.00 ₴
Розмір гарантійного внеску:
54 568.80 ₴
Початок прийому пропозицій:
08.09.2025 17:11:07
Завершення прийому пропозицій:
07.10.2025 20:00:00
Проведення аукціону:
08.10.2025 11:45:00
Лот:
CLE001-UA-20250908-45650
№ лоту (УТК):
UTK060721_12U
Лот виставляється на торги (раз):
4
Стислий опис майна:
Пропонуються до оренди приміщення 2-го та 3-го поверху адміністративно-складської будівлі, площею 1518,30 кв.м. Будівля знаходиться на околиці міста в промисловій зоні, розвинена інфраструктура, поруч склади, товарні бази, виробничі цехи. Приміщення можуть використовуватись під склад, виробництво, тощо. • кількість поверхів – 3; • опалення газове; • земельна ділянка – 0,6744 га (договір оренди).
Адреса місцезнаходження майна:
Україна, Івано-Франківська обл., Івано-Франківськ, вул. Ребета, 2
Схожі пропозиції
17.07.2025
Івано-Франківська обл., Коломийський р-н, с. Потічок, вул. Незалежності, 46. Оренда – нежитлові приміщення І-го поверху площею 27,7 м.кв. (В)
512.45 грн
18.50 грн / м2
Приміщення
Івано-Франківська обл., Коломийський р-н, с. Потічок, вул. Незалежності, 46. Оренда – нежитлові приміщення І-го поверху площею 27,7 м.кв. (В)
Україна, Івано-Франківська обл., Потічок, Потічок, вул. Незалежності, 46
Івано-Франківська обл., м. Надвірна, вул. Мазепи, 1. Оренда приміщень 5-го поверху 249,8 кв.м.
1 778.58 грн
7.12 грн / м2
Приміщення
Івано-Франківська обл., м. Надвірна, вул. Мазепи, 1. Оренда приміщень 5-го поверху 249,8 кв.м.
Україна, Івано-Франківська обл., м. Надвірна, вул. Мазепи, 1
20.10.2023
Івано-Франківська обл., Калуський район, смт. Рожнятів, площа Єдності, 9, оренда – Приміщення 3-го поверху площею 100,8 м.кв. (В)
1 257.98 грн
12.48 грн / м2
Приміщення
Івано-Франківська обл., Калуський район, смт. Рожнятів, площа Єдності, 9, оренда – Приміщення 3-го поверху площею 100,8 м.кв. (В)
Україна, Івано-Франківська обл., смт. Рожнятів, площа Єдності, 9
27.12.2024
Івано-Франківська обл., Івано-Франківський р-н, м. Рогатин, вул. Галицька, 73.Оренда – приміщення 1-го поверху, площею 146,0 м.кв. (В)
5 749.48 грн
39.38 грн / м2
Приміщення
Івано-Франківська обл., Івано-Франківський р-н, м. Рогатин, вул. Галицька, 73.Оренда – приміщення 1-го поверху, площею 146,0 м.кв. (В)
Україна, Івано-Франківська обл., Івано-Франківський р-н, м. Рогатин, вул. Галицька, 73