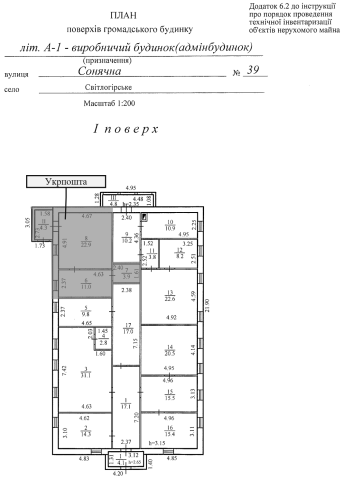
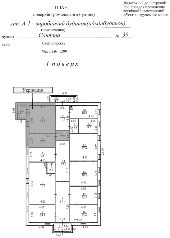
ДОВГОСТРОКОВА ОРЕНДА! Дніпропетровська обл., Криничанський район, с. Світлогірське, вул. Сонячна, 39 . Оренда – комплекс будівель і споруд площею 470,90 кв.м (В)

4 953.87 грн
10.52 грн / м2
Україна, Дніпропетровська обл., вул. Сонячна, 39 , Криничанський район, с. Світлогірське
Перейти до аукціону на сайті
  • Інформація
  • Опис
  • Документи
Дата оголошення пропозиції:
10 вересня 2025
Площа:
470.90 м2
Тип об’єкта:
Будівля
Тип аукціону:
Англійський аукціон
Статус аукціону:
Аукціон не відбувся
Тип угоди:
Оренда
Розмір мінімального кроку:
300.00 ₴
Розмір гарантійного внеску:
2 972.32 ₴
Початок прийому пропозицій:
10.09.2025 13:23:35
Завершення прийому пропозицій:
09.10.2025 20:00:00
Проведення аукціону:
10.10.2025 12:50:00
Лот:
CLE001-UA-20250910-95650
№ лоту (УТК):
UTK011124_01P
Лот виставляється на торги (раз):
9
Стислий опис майна:
Пропонується до оренди комплекс будівель і споруд площею 470,90 кв.м у складі: адмінбудинок (літ.А-1) площею – 208,1 м2, виробничий будинок (гараж) (літ.Б-1) – 108,5 м2, склад (літ.В-1) площею – 26,5 м2, гараж (літ.Г-1) площею – 47,4 м2, склад (Д-1), погріб (п/д )площею -60,8 м2, вхід у погріб (Е-1) –площею 2,3 м2, , вбиральна (Ж-1), колодязь (К) , споруди (№1-5,1) . Зручне місцерозташування, гарна інфраструктура. Поруч знаходяться магазин, кафе, амбулаторія. В будівлі знаходиться відділення Укрпошти. Стан майна: потребує ремонту. Частина приміщень адмінбудівлі орендує Укрпошта (42.1 кв.м) Характеристики:  Кількість поверхів – 1  Загальна площа – 470,90 кв.м.  Площа запропонованадо оренди – 470,90 кв.м.  Електропостачання,теплопостачання - відключено  Земельна ділянка – 0,2497 га (договір оренди)  Ресурсні податки – 6,66 грн за 1 кв.
Адреса місцезнаходження майна:
Україна, Дніпропетровська обл., вул. Сонячна, 39 , Криничанський район, с. Світлогірське
Схожі пропозиції
10.10.2025
ДОВГОСТРОКОВА ОРЕНДА! Дніпропетровська обл., м. Новомосковськ, вул. Північна, 5.Оренда – комплекс нежитлових будівель площею 3123,10 кв.м. (В)
231 109.40 грн
74.00 грн / м2
Будівля
ДОВГОСТРОКОВА ОРЕНДА! Дніпропетровська обл., м. Новомосковськ, вул. Північна, 5.Оренда – комплекс нежитлових будівель площею 3123,10 кв.м. (В)
Україна, Дніпропетровська обл., м. Новомосковськ, вул. Північна, 5
ДОВГОСТРОКОВА ОРЕНДА! Дніпропетровська обл., м. Дніпро, вул. Кармалюка, 6а. Оренда – одноповерхова будівля площею 219,7 кв.м. (В)
10 126.41 грн
46.09 грн / м2
Будівля
ДОВГОСТРОКОВА ОРЕНДА! Дніпропетровська обл., м. Дніпро, вул. Кармалюка, 6а. Оренда – одноповерхова будівля площею 219,7 кв.м. (В)
Україна, Дніпропетровська обл., м. Дніпро, вул. Кармалюка, 6а
03.09.2025
ДОВГОСТРОКОВА ОРЕНДА! Дніпропетровська обл., м. Дніпро, вул. Орловська, 36А. Оренда – нежитлова будівля площею 2039,60 кв.м (В)
61 188.00 грн
30.00 грн / м2
Будівля
ДОВГОСТРОКОВА ОРЕНДА! Дніпропетровська обл., м. Дніпро, вул. Орловська, 36А. Оренда – нежитлова будівля площею 2039,60 кв.м (В)
Україна, Дніпропетровська обл., м. Дніпро, вул. Орловська, 36А
ДОВГОСТРОКОВА ОРЕНДА! Дніпропетровська обл., м. Дніпро, бульвар Рубіновий, буд.18. Оренда – будівля площею 3 932,40 кв.м (В)
59 733.16 грн
15.19 грн / м2
Будівля
ДОВГОСТРОКОВА ОРЕНДА! Дніпропетровська обл., м. Дніпро, бульвар Рубіновий, буд.18. Оренда – будівля площею 3 932,40 кв.м (В)
Україна, Дніпропетровська обл., м. Дніпро, бульвар Рубіновий, буд.18
Переглянуті пропозиції
20.10.2023
Івано-Франківська обл., Коломийський р-н, с. Потічок, вул. Незалежності, 46. Оренда – нежитлові приміщення І-го поверху площею 27,7 м.кв. (В)
277.00 грн
10.00 грн / м2
Приміщення
Івано-Франківська обл., Коломийський р-н, с. Потічок, вул. Незалежності, 46. Оренда – нежитлові приміщення І-го поверху площею 27,7 м.кв. (В)
Україна, Івано-Франківська обл., Потічок, вул. Незалежності, 46