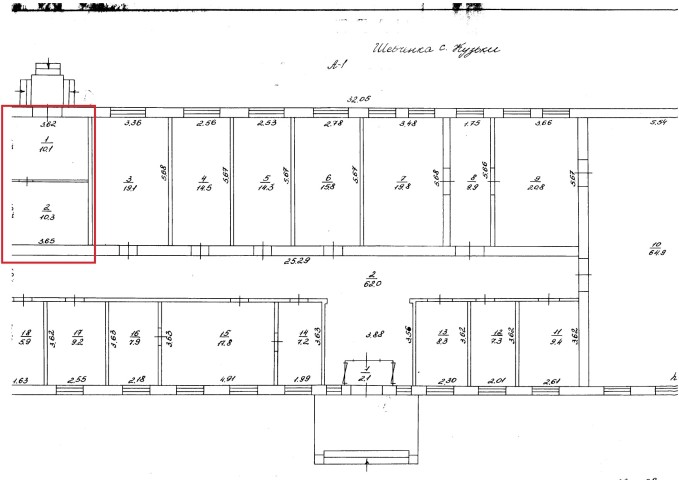
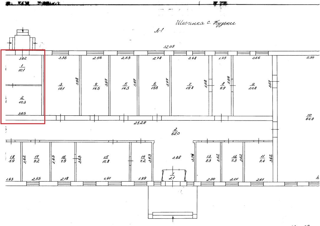
Сумська обл., Конотопський р-н, с. Кузьки, вул. Шевченка, 35. Оренда – нежитлове приміщення площею 20,40 кв.м. (В)

501.43 грн
24.58 грн / м2
Україна, Сумська обл., Конотопський р-н, с. Кузьки, вул. Шевченка, 35
Перейти до аукціону на сайті
  • Інформація
  • Опис
  • Документи
Дата оголошення пропозиції:
15 вересня 2025
Площа:
20.40 м2
Тип об’єкта:
Приміщення
Тип аукціону:
Англійський аукціон
Статус аукціону:
Аукціон не відбувся
Тип угоди:
Оренда
Розмір мінімального кроку:
40.00 ₴
Розмір гарантійного внеску:
300.86 ₴
Початок прийому пропозицій:
15.09.2025 13:05:34
Завершення прийому пропозицій:
14.10.2025 20:00:00
Проведення аукціону:
15.10.2025 11:15:00
Лот:
CLE001-UA-20250915-10525
№ лоту (УТК):
UTK070622_05P
Лот виставляється на торги (раз):
10
Стислий опис майна:
Пропонується до оренди нежитлове приміщення площею 20,40 кв.м. Знаходиться в 1-поверховому будинку в центральній частині села. Поруч приватний сектор. Звичайний ремонт. Характеристики: Кількість поверхів – 1; Загальна площа – 20,40 кв.м.; Площа запропонована до оренди – 20,40 кв.м.; Електроенергія – наявне , опалення, водопостачання – відсутні; Земельна ділянка – 0,0036 га (договір оренди ЗД); Стан приміщення – задовільний
Адреса місцезнаходження майна:
Україна, Сумська обл., Конотопський р-н, с. Кузьки, вул. Шевченка, 35
Схожі пропозиції
16.05.2024
Сумська область, Конотопський р-н, м. Буринь, вул. Першотравнева, буд. 5;  Оренда – приміщення гаражу площею 54,20 кв. м. (В)
533.87 грн
9.85 грн / м2
Приміщення
Сумська область, Конотопський р-н, м. Буринь, вул. Першотравнева, буд. 5; Оренда – приміщення гаражу площею 54,20 кв. м. (В)
Україна, Сумська обл., Буринь, вул. Першотравнева , 5
01.06.2023
Сумська обл., смт. Недригайлів, вул. Шевченка, буд. 62. Оренда – нежитлове приміщення площею 140,9 кв.м. (В)
2 129.00 грн
15.11 грн / м2
Приміщення
Сумська обл., смт. Недригайлів, вул. Шевченка, буд. 62. Оренда – нежитлове приміщення площею 140,9 кв.м. (В)
Україна, Сумська обл., Недригайлів, Недригайлів
21.08.2024
Сумська обл., м. Кролевець, пл. Свободи, буд. 10/2;   Оренда – приміщення 1- го поверху площею 36,7 кв.м. (В)
506.46 грн
13.80 грн / м2
Приміщення
Сумська обл., м. Кролевець, пл. Свободи, буд. 10/2; Оренда – приміщення 1- го поверху площею 36,7 кв.м. (В)
Україна, Сумська обл., м. Кролевець, площа Свободи, 10/2
21.03.2024
Сумська обл., м. Білопілля, вул. Старопутивльська, буд. 47;  Оренда – частина приміщення господарського блоку площею 81,3 кв.м. (В)
595.12 грн
7.32 грн / м2
Приміщення
Сумська обл., м. Білопілля, вул. Старопутивльська, буд. 47; Оренда – частина приміщення господарського блоку площею 81,3 кв.м. (В)
Україна, Сумська обл., м. Білопілля, вулиця Старопутивльська, 47
Переглянуті пропозиції
09.08.2022
Полтавська обл., Полтавський р-н., смт. Диканька, вул. Полтавська, 29. Оренда – комплекс будівель площею 192,70 кв.м. (В)
2 505.10 грн
13.00 грн / м2
Будівля
Полтавська обл., Полтавський р-н., смт. Диканька, вул. Полтавська, 29. Оренда – комплекс будівель площею 192,70 кв.м. (В)
Україна, Полтавська обл., Полтавський р-н., смт. Диканька, вул. Полтавська, 29