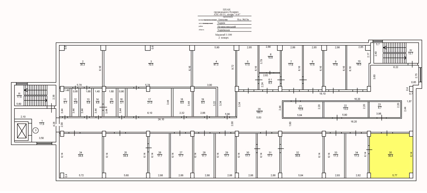
м. Харків, вул. Амосова,13-в. Оренда - приміщення 2-го поверху площею 36,4 кв.м (В)

1 092.00 грн
29.92 грн / м2
Україна, Харківська обл., м. Харків, вул. Амосова,13-в
Перейти до аукціону на сайті
  • Інформація
  • Опис
  • Документи
Дата оголошення пропозиції:
15 вересня 2025
Площа:
36.50 м2
Тип об’єкта:
Приміщення
Тип аукціону:
Англійський аукціон
Статус аукціону:
Аукціон не відбувся
Тип угоди:
Оренда
Розмір мінімального кроку:
100.00 ₴
Розмір гарантійного внеску:
655.20 ₴
Початок прийому пропозицій:
15.09.2025 13:54:32
Завершення прийому пропозицій:
14.10.2025 20:00:00
Проведення аукціону:
15.10.2025 12:15:00
Лот:
CLE001-UA-20250915-57657
№ лоту (УТК):
UTK070723_04P
Лот виставляється на торги (раз):
10
Стислий опис майна:
Пропонується до оренди приміщення 2-го поверху площею 36,4 кв.м. Будівля в спальному районі міста Харкова. 10 хв до зупинки транспорту. Характеристики: Кількість поверхів – 5; Загальна площа – 4838,00 кв.м_ Площа запропонована до оренди -36,4 кв.м Дозволена потужність – 5 кВт Теплопостачання-централізоване Земельна ділянка – 0,4825 га
Адреса місцезнаходження майна:
Україна, Харківська обл., м. Харків, вул. Амосова,13-в
Схожі пропозиції
10.04.2024
Харківська обл., Лозівський р-н, м. Первомайський, 3-й мікрорайон, буд.1-А. Оренда – приміщення на 1-му поверсі загальною площею 221,70 кв.м. (В)
7 231.85 грн
32.62 грн / м2
Приміщення
Харківська обл., Лозівський р-н, м. Первомайський, 3-й мікрорайон, буд.1-А. Оренда – приміщення на 1-му поверсі загальною площею 221,70 кв.м. (В)
Україна, Харківська обл., Лозівський р-н, м. Первомайський, 3-й мікрорайон, буд.1-А
30.04.2024
м.Харків, пр-т Ювілейний, 66;   Оренда – приміщення 2-го поверху площею 35,3 кв.м (В)
1 925.97 грн
54.56 грн / м2
Приміщення
м.Харків, пр-т Ювілейний, 66; Оренда – приміщення 2-го поверху площею 35,3 кв.м (В)
Україна, Харківська обл., Харків, проспект Ювілейний, 66
08.11.2022
Одеська обл., Одеський р-н, с. Вигода, вул. Центральна, буд. 44. Оренда – приміщення будівлі загальною площею 154,90 кв.м (В)
3 640.15 грн
23.50 грн / м2
Приміщення
Одеська обл., Одеський р-н, с. Вигода, вул. Центральна, буд. 44. Оренда – приміщення будівлі загальною площею 154,90 кв.м (В)
Україна, Харківська обл., Одеський р-н, с. Вигода, вул. Центральна, буд. 44
14.03.2025
м. Харків, Нетіченська набережна, 8. Оренда – приміщення 3-го поверху площею 21,90 кв.м (В)
1 675.35 грн
76.50 грн / м2
Приміщення
м. Харків, Нетіченська набережна, 8. Оренда – приміщення 3-го поверху площею 21,90 кв.м (В)
Україна, Харківська обл., м. Харків, Нетіченська набережна, 8