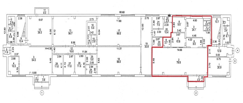
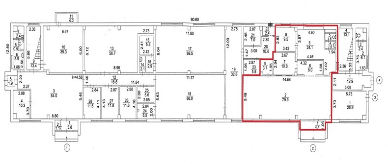
м. Київ, пр-т. Академіка Глушкова, 38 (Голосіївський р-н). Оренда – приміщення 1-го поверху, загальною площею – 143,60 кв. м. (В)

15 862.06 грн
110.46 грн / м2
Україна, м.Київ, Київ, 03187, м. Київ, пр-т. Академіка Глушкова, 38 (Голосіївський р-н)
Перейти до аукціону на сайті
  • Інформація
  • Опис
  • Документи
Дата оголошення пропозиції:
18 вересня 2025
Площа:
143.60 м2
Тип об’єкта:
Приміщення
Тип аукціону:
Англійський аукціон
Статус аукціону:
Аукціон не відбувся
Тип угоди:
Оренда
Розмір мінімального кроку:
200.00 ₴
Розмір гарантійного внеску:
9 517.23 ₴
Початок прийому пропозицій:
18.09.2025 15:21:33
Завершення прийому пропозицій:
20.10.2025 20:00:00
Проведення аукціону:
21.10.2025 11:30:00
Лот:
CLE001-UA-20250918-59042
№ лоту (УТК):
UTK200225_42U
Лот виставляється на торги (раз):
6
Стислий опис майна:
Пропонуються до оренди приміщення 1-го поверху, загальною площею 143,6 кв.м. Будівля знаходиться у Голосіївському районі міста Києва, житловий масив Теремки. Зупинки маршрутного транспорту, супермаркети, торгово-розважальні центри. Найближчі станції метро «Теремки». Доступ 24/7. Характеристики: • кількість поверхів – 4; • загальна площа будівлі – 2 777,30 м2; • земельна ділянка – 0,2109 га*; • дозволена потужність – 10,0 кВт; • сан. вузол, водопостачання, каналізація – присутні; • опалення централізоване (міське). *земельна ділянка не є предметом оренди;
Адреса місцезнаходження майна:
Україна, м.Київ, Київ, 03187, м. Київ, пр-т. Академіка Глушкова, 38 (Голосіївський р-н)
Схожі пропозиції
25.07.2025
м. Київ, вул. Василя Макуха (Шевченківський р-н), 5. Довгострокова оренда – приміщення 3-го поверху площею 905,30 м2 (В)
54 318.00 грн
60.00 грн / м2
Приміщення
м. Київ, вул. Василя Макуха (Шевченківський р-н), 5. Довгострокова оренда – приміщення 3-го поверху площею 905,30 м2 (В)
Україна, м.Київ, Київ, вулиця Василя Макуха, 5
ДОВГОСТРОКОВА ОРЕНДА! м. Київ, проспект Академіка Глушкова, 38. Оренда – приміщення 1-го, 2-го, 3-го, 4-го поверхів, площею 1 932,00 м2 (В)
318 045.84 грн
164.62 грн / м2
Приміщення
ДОВГОСТРОКОВА ОРЕНДА! м. Київ, проспект Академіка Глушкова, 38. Оренда – приміщення 1-го, 2-го, 3-го, 4-го поверхів, площею 1 932,00 м2 (В)
Україна, м.Київ, Київ, проспект Академіка Глушкова, 38
04.06.2025
м. Київ, бульв. Шевченка Тараса, 18, літ.: «Б» (Шевченківський р-н). Оренда – приміщення 2-го поверху, загальною площею - 280,90 м2 (В)
м. Київ, вул. Архітектора Вербицького, 3. Оренда – Приміщення 1-го, 3-го, 4-го поверхів, площею 1191,50 м2 (В)
97 798.32 грн
82.08 грн / м2
Приміщення
м. Київ, вул. Архітектора Вербицького, 3. Оренда – Приміщення 1-го, 3-го, 4-го поверхів, площею 1191,50 м2 (В)
Україна, м.Київ, Київ, вул. Архітектора Вербицького, 3
Переглянуті пропозиції
м. Київ, Антоновича 40 Оренда приміщень 6 пов.
218 534.40 грн
288.00 грн / м2
Приміщення
м. Київ, Антоновича 40 Оренда приміщень 6 пов.
Україна, м.Київ, місто Київ, вул. Антоновича, 40
30.04.2025
м. Київ, вул. Ореста Васкула, 27 (Святошинський р-н). Оренда – приміщення на 3-му поверсі, загальною площею - 521,10 м.кв. (В)
83 626.13 грн
160.48 грн / м2
Приміщення
м. Київ, вул. Ореста Васкула, 27 (Святошинський р-н). Оренда – приміщення на 3-му поверсі, загальною площею - 521,10 м.кв. (В)
Україна, м.Київ, Київ, вулиця Ореста Васкула, 27
28.05.2025
м. Київ, вул. Наталії Ужвій 1 (Подільський р-н). Оренда – приміщення 1-го поверху, загальною площею – 65,60 м. кв. (В)
7 293.41 грн
111.18 грн / м2
Приміщення
м. Київ, вул. Наталії Ужвій 1 (Подільський р-н). Оренда – приміщення 1-го поверху, загальною площею – 65,60 м. кв. (В)
Україна, м.Київ, Київ, 04108, м. Київ, вул. Наталії Ужвій 1
18.03.2025
ДОВГОСТРОКОВА ОРЕНДА! Дніпропетровська обл., м. Дніпро, вул. Панікахи, 27. Оренда – приміщення 3-го поверху площею 410,5 кв.м.(В)
12 315.00 грн
30.00 грн / м2
Приміщення
ДОВГОСТРОКОВА ОРЕНДА! Дніпропетровська обл., м. Дніпро, вул. Панікахи, 27. Оренда – приміщення 3-го поверху площею 410,5 кв.м.(В)
Україна, Дніпропетровська обл., м. Дніпро, вул. Панікахи, 27