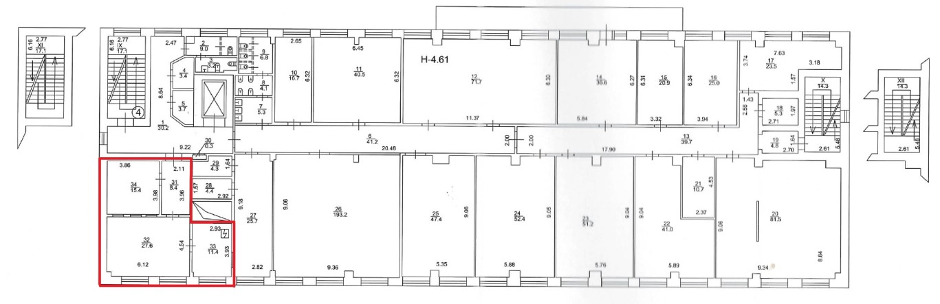
м. Київ, вул. Джона Маккейна, 40, літ. «А» (Печерський р-н). Оренда – група приміщень на 3-му поверсі, площею 62,80 кв. м. (В)

10 616.97 грн
169.06 грн / м2
Україна, м.Київ, Київ, , вул. Джона Маккейна, 40, літ. «А»
Перейти до аукціону на сайті
  • Інформація
  • Опис
  • Документи
Дата оголошення пропозиції:
19 вересня 2025
Площа:
62.80 м2
Тип об’єкта:
Приміщення
Тип аукціону:
Англійський аукціон
Статус аукціону:
Аукціон не відбувся
Тип угоди:
Оренда
Розмір мінімального кроку:
500.00 ₴
Розмір гарантійного внеску:
6 370.18 ₴
Початок прийому пропозицій:
19.09.2025 14:51:42
Завершення прийому пропозицій:
21.10.2025 20:00:00
Проведення аукціону:
22.10.2025 12:30:00
Лот:
CLE001-UA-20250919-35216
№ лоту (УТК):
UTK070325_01U
Лот виставляється на торги (раз):
5
Стислий опис майна:
До оренди пропонується група приміщень на 3-му поверсі, площею 62,80 кв. м. Будівля знаходиться в Печерському районі міста Києва, місцевість Саперне поле, в пішому доступі до ст. м. Дружби Народів (до 5 хв.) та ст. м. Либідська, ст. м. Печерська (до 10 хв.), у районі розвинена інфраструктура й відмінна транспортна розв’язка, поруч торгові центри, супермаркети, парки. Характеристики • кількість поверхів – 4; • загальна площа – 4 778,70 кв. м; • площа запропонована до оренди – 62,80 кв.м; • опалення централізоване (міське); • водопостачання, каналізація, сан. вузол – присутні (на поверсі); • земельна ділянка – 0,46 га (договір оренди).
Адреса місцезнаходження майна:
Україна, м.Київ, Київ, , вул. Джона Маккейна, 40, літ. «А»
Схожі пропозиції
21.10.2025
м. Київ, вул. Наталії Ужвій, 1 (Подільський р-н). Оренда – приміщення 2-го поверху, загальною площею – 78,90 м. кв. (В)
6 192.07 грн
78.48 грн / м2
Приміщення
м. Київ, вул. Наталії Ужвій, 1 (Подільський р-н). Оренда – приміщення 2-го поверху, загальною площею – 78,90 м. кв. (В)
Україна, м.Київ, Київ, вулиця Наталії Ужвій, 1
12.01.2023
Довгострокова оренда. м. Київ, вул. Горького (Антоновича), 40. Оренда – приміщення 1-го поверху, площею 538,5 кв. м. (В)
31.05.2023
м. Київ, вул. Ісаакяна, 3 Оренда – Приміщення 2-го поверху площею 149,81 кв.м. (В)
25 401.78 грн
169.56 грн / м2
Приміщення
м. Київ, вул. Ісаакяна, 3 Оренда – Приміщення 2-го поверху площею 149,81 кв.м. (В)
Україна, м.Київ, Київ, вулиця Ісаакяна, 3
08.04.2025
м. Київ, вул. Курінного Петра, 2Б, літ. «А» (Святошинський р-н). Оренда – приміщення на 1-му поверсі, площею – 70,70 кв.м (В)
10 659.44 грн
150.77 грн / м2
Приміщення
м. Київ, вул. Курінного Петра, 2Б, літ. «А» (Святошинський р-н). Оренда – приміщення на 1-му поверсі, площею – 70,70 кв.м (В)
Україна, м.Київ, Київ, 03148, м. Київ, вул. Курінного Петра, 2Б (Святошинський р-н)
Переглянуті пропозиції
30.11.2023
Сумська обл., м. Шостка, вул. Бульварна, 7. Оренда – нежитлове приміщення 1-го поверху площею 207,20 кв.м. (В)
2 258.48 грн
10.90 грн / м2
Приміщення
Сумська обл., м. Шостка, вул. Бульварна, 7. Оренда – нежитлове приміщення 1-го поверху площею 207,20 кв.м. (В)
Україна, Сумська обл., м. Шостка, вул. Бульварна, 7
09.09.2025
 м. Київ, вул. Архітектора Вербицького, 3 (Дарницький р-н). Оренда – Приміщення підвалу, площею 198,70 кв.м. (В)
13 591.08 грн
68.40 грн / м2
Приміщення
м. Київ, вул. Архітектора Вербицького, 3 (Дарницький р-н). Оренда – Приміщення підвалу, площею 198,70 кв.м. (В)
Україна, м.Київ, Київ, 02091, м. Київ, вул. Архітектора Вербицького , 3
Чернігівська обл., м. Чернігів, просп. Миру, 28, оренда – підвальне приміщення площею 22,10 кв.м. (В)
1 109.20 грн
50.19 грн / м2
Приміщення
Чернігівська обл., м. Чернігів, просп. Миру, 28, оренда – підвальне приміщення площею 22,10 кв.м. (В)
Україна, Чернігівська обл., Чернігів, просп. Миру, 28
12.07.2024
Харківська обл., Красноградський р-н, смт. Сахновщина, вул. Поштова, 6. Оренда – приміщення на 1-го поверху площею 57,0 кв.м. (В)
600.78 грн
10.54 грн / м2
Приміщення
Харківська обл., Красноградський р-н, смт. Сахновщина, вул. Поштова, 6. Оренда – приміщення на 1-го поверху площею 57,0 кв.м. (В)
Україна, Харківська обл., Красноградський р-н, смт. Сахновщина, вул. Поштова, 6