Одеська обл., м. Одеса, вул. Героїв Оборони Одеси, 84. Оренда – приміщення 2-го поверху загальною площею 461,20 кв.м (В)

27 672.00 грн
60.22 грн / м2
Україна, Одеська обл., м. Одеса, вул. Героїв Оборони Одеси, 84
Перейти до аукціону на сайті
  • Інформація
  • Опис
  • Документи
Дата оголошення пропозиції:
28 вересня 2025
Площа:
459.50 м2
Тип об’єкта:
Приміщення
Тип аукціону:
Англійський аукціон
Статус аукціону:
Аукціон не відбувся
Тип угоди:
Оренда
Розмір мінімального кроку:
600.00 ₴
Розмір гарантійного внеску:
16 603.20 ₴
Початок прийому пропозицій:
28.09.2025 17:32:30
Завершення прийому пропозицій:
28.10.2025 20:00:00
Проведення аукціону:
29.10.2025 11:00:00
Лот:
CLE001-UA-20250928-43408
№ лоту (УТК):
UTK050424_03P
Лот виставляється на торги (раз):
10
Стислий опис майна:
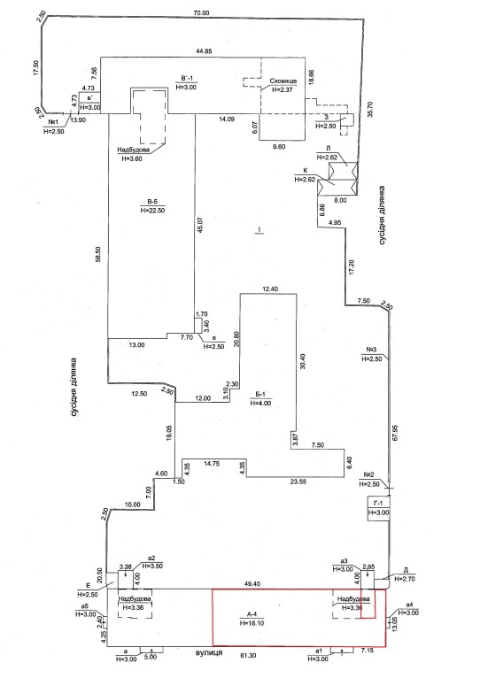
Пропонуються до оренди приміщення 2-го поверху загальною площею 461,20 кв.м. Об'єкт знаходиться у Пересипському районі, в північної частині міста. Приміщення забезпечені електропостачанням, теплопостачання відсутнє, окремий санвузол на поверсі. Вхід до приміщень скрізь прохідну з внутрішнього двору, поряд безкоштовне місце паркування на 5 авто. Будівля знаходиться серед житлових будинків. Не високий пішохідний та автомобільний трафік. Характеристики: кількість поверхів будівлі – 4; загальна площа – 2925,20 кв.м; площа запропонована до оренди – 461,20 кв.м; теплопостачання - відсутнє; водопостачання – водопровід, лічильник дозволена потужність – до 30 кВт земельна ділянка – 0,8139 га.
Адреса місцезнаходження майна:
Україна, Одеська обл., м. Одеса, вул. Героїв Оборони Одеси, 84
Схожі пропозиції
16.07.2024
Одеська обл., м. Одеса, вул. Героїв Оборони Одеси, 84. Оренда – приміщення 2-го поверху загальною площею 461,20 кв.м (В)
44 551.92 грн
96.96 грн / м2
Приміщення
Одеська обл., м. Одеса, вул. Героїв Оборони Одеси, 84. Оренда – приміщення 2-го поверху загальною площею 461,20 кв.м (В)
Україна, Одеська обл., м. Одеса, вул. Героїв Оборони Одеси, 84
30.08.2024
Одеська обл., Білгород-Дністровський р-н., смт. Сарата, вул. Чкалова, буд. 15. Оренда – приміщення 3-го поверху площею 12,40 кв.м. (В)
248.00 грн
20.00 грн / м2
Приміщення
Одеська обл., Білгород-Дністровський р-н., смт. Сарата, вул. Чкалова, буд. 15. Оренда – приміщення 3-го поверху площею 12,40 кв.м. (В)
Україна, Одеська обл., Білгород-Дністровський р-н., смт. Сарата, вул. Чкалова, буд. 15
11.01.2024
Одеська обл., м. Одеса, вул. Люстдорфська дорога, 55б. Оренда – приміщення 1-го поверху загальною площею 71,20 кв.м (В)
7 561.44 грн
106.20 грн / м2
Приміщення
Одеська обл., м. Одеса, вул. Люстдорфська дорога, 55б. Оренда – приміщення 1-го поверху загальною площею 71,20 кв.м (В)
Україна, Одеська обл., м. Одеса, вул. Люстдорфська дорога, 55б
04.09.2025
Одеська обл., Березівський р-н, с. Ширяєве, вул. Грушевського, буд.139. Оренда – приміщення 1-го поверху загальною площею 98,90 кв.м (В).
2 811.73 грн
28.43 грн / м2
Приміщення
Одеська обл., Березівський р-н, с. Ширяєве, вул. Грушевського, буд.139. Оренда – приміщення 1-го поверху загальною площею 98,90 кв.м (В).
Україна, Одеська обл., Ширяєве, 66800, Одеська обл., Березівський р-н, с. Ширяєве, вул. Грушевського, буд.139
Переглянуті пропозиції
21.03.2024
Сумська обл., м. Шостка, вул. Озерна, буд. 39А. Оренда –частина нежитлової будівлі площею 172,3 кв. м. (В)
556.53 грн
3.23 грн / м2
Будівля
Сумська обл., м. Шостка, вул. Озерна, буд. 39А. Оренда –частина нежитлової будівлі площею 172,3 кв. м. (В)
Україна, Сумська обл., м. Шостка, вул. Озерна, буд. 39А
05.02.2025
Полтавська обл., м. Полтава, вулиця Яківчанська, 7. Оренда – приміщення, загальною площею 475,10 кв.м.  (В)
23 626.72 грн
49.73 грн / м2
Приміщення
Полтавська обл., м. Полтава, вулиця Яківчанська, 7. Оренда – приміщення, загальною площею 475,10 кв.м. (В)
Україна, Полтавська обл., м. Полтава, вулиця Яківчанська, 7
Харківська обл., м. Харків, вул. Старошишківська, 5а. Оренда – приміщення 2-го поверху
11 520.00 грн
23.04 грн / м2
Приміщення
Харківська обл., м. Харків, вул. Старошишківська, 5а. Оренда – приміщення 2-го поверху
Україна, Харківська обл., м. Харків, вул. Старошишківська, буд. 5а
Рівненська обл., Рівненський р-н., м. Здолбунів, вул. Б.Хмельницького, 7. Оренда – приміщення підвалу, 2 поверху та надвірної будівлі загальною площею 661,4 кв.м. (В)
11 435.61 грн
17.29 грн / м2
Приміщення
Рівненська обл., Рівненський р-н., м. Здолбунів, вул. Б.Хмельницького, 7. Оренда – приміщення підвалу, 2 поверху та надвірної будівлі загальною площею 661,4 кв.м. (В)
Україна, Рівненська обл., Рівненський р-н., м. Здолбунів, вул. Б.Хмельницького, 7