Рівненська обл., м. Вараш, м-н Незалежності, 4. Оренда – приміщення 2-го поверху площею 91,50 кв. м (В).

10 840.01 грн
118.47 грн / м2
Україна, Рівненська обл., Вараш, Незалежності 4
Перейти до аукціону на сайті
  • Інформація
  • Опис
  • Документи
Дата оголошення пропозиції:
03 жовтня 2025
Площа:
91.50 м2
Тип об’єкта:
Приміщення
Тип аукціону:
Англійський аукціон
Статус аукціону:
Прийняття заяв на участь
Тип угоди:
Оренда
Розмір мінімального кроку:
200.00 ₴
Розмір гарантійного внеску:
6 504.01 ₴
Початок прийому пропозицій:
03.10.2025 12:57:42
Завершення прийому пропозицій:
03.11.2025 20:00:00
Проведення аукціону:
04.11.2025 12:50:00
Лот:
CLE001-UA-20251003-31058
№ лоту (УТК):
UTK290825_05U
Лот виставляється на торги (раз):
2
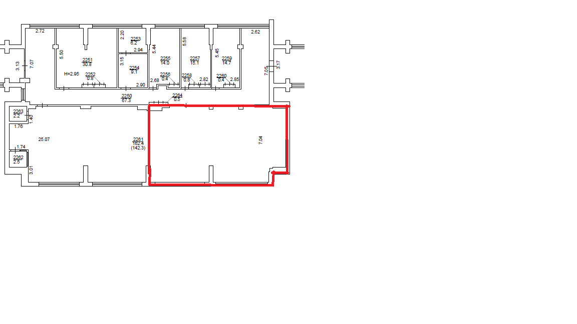
Стислий опис майна:
Пропонуються до оренди приміщення 2-го поверху площею 91,5 кв. м. Об'єкт знаходиться у центральній частині міста, розвинена інфраструктура, поряд відділення Укрпошти, магазини та адміністративні приміщення. Територія огороджена та частково впорядкована. Характеристики: Кількість поверхів – 3; Загальна площа – 5233,80 м. кв.; Площа, запропонована до оренди – 91,50 м. кв.; Опалення – централізоване; Земельна ділянка - площа 0,826 га.
Адреса місцезнаходження майна:
Україна, Рівненська обл., Вараш, Незалежності 4
Схожі пропозиції
07.11.2024
Рівненська обл., Дубенський р-н., смт. Демидівка, вул. Миру, 28. Оренда – складські приміщення 1 поверху площею 128 м. кв. (В)
2 264.32 грн
17.69 грн / м2
Приміщення
Рівненська обл., Дубенський р-н., смт. Демидівка, вул. Миру, 28. Оренда – складські приміщення 1 поверху площею 128 м. кв. (В)
Україна, Рівненська обл., Дубенський р-н., смт. Демидівка, вул. Миру, 28
28.02.2025
Рівненська обл., Рівненський р-н., с. Вітковичі, вул. Ковальська, 1. Оренда – частина приміщення одноповерхової будівлі, площею 10,8 кв.м. (В)
507.60 грн
47.00 грн / м2
Приміщення
Рівненська обл., Рівненський р-н., с. Вітковичі, вул. Ковальська, 1. Оренда – частина приміщення одноповерхової будівлі, площею 10,8 кв.м. (В)
Україна, Рівненська обл., Рівненський р-н., с. Вітковичі, вул. Ковальська, 1
30.06.2023
Рівненська обл., Рівненський р-н, с. Здовбиця, вул. Шосова, 107. Оренда – нежитлові приміщення площею 80,3 м. кв. (В)
1 388.39 грн
17.29 грн / м2
Приміщення
Рівненська обл., Рівненський р-н, с. Здовбиця, вул. Шосова, 107. Оренда – нежитлові приміщення площею 80,3 м. кв. (В)
Україна, Рівненська обл., Рівненський р-н, с. Здовбиця, вул. Шосова, 107
Переглянуті пропозиції