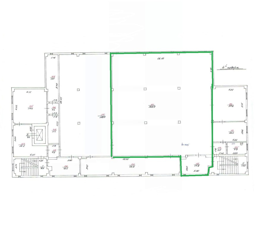
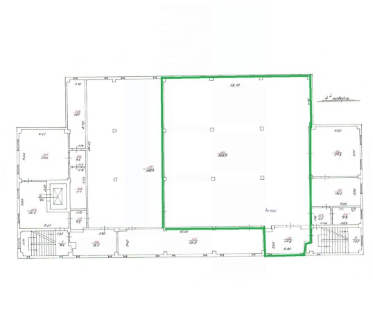
Львівська обл., м. Львів, вул. Берестяна, 2. Оренда –приміщення 4-го поверху будівлі площею 341,70 кв. м (В)

22 675.21 грн
66.36 грн / м2
Україна, Львівська обл., Львів, вулиця Берестяна, 2
Перейти до аукціону на сайті
  • Інформація
  • Опис
  • Документи
Дата оголошення пропозиції:
03 жовтня 2025
Площа:
341.70 м2
Тип об’єкта:
Будівля
Тип аукціону:
Англійський аукціон
Статус аукціону:
Прийняття заяв на участь
Тип угоди:
Оренда
Розмір мінімального кроку:
1 000.00 ₴
Розмір гарантійного внеску:
13 605.13 ₴
Початок прийому пропозицій:
03.10.2025 13:16:51
Завершення прийому пропозицій:
03.11.2025 20:00:00
Проведення аукціону:
04.11.2025 11:45:00
Лот:
CLE001-UA-20251003-52197
№ лоту (УТК):
UTK_250725_04U
Лот виставляється на торги (раз):
3
Стислий опис майна:
Пропонуються до оренди приміщення 4-го поверху будівлі площею 341,70 кв. м. Будівля знаходиться у прицентральній частині міста, в районі з розвиненою інфраструктурою і відмінною транспортною розв’язкою.. Характеристики кількість поверхів – 6 опалення централізоване, водопостачання, електропостачання, каналізаційна мережа Вільне до споживання електропостачання – 10 кВт земельна ділянка – 0,3548 га (договір оренди)
Адреса місцезнаходження майна:
Україна, Львівська обл., Львів, вулиця Берестяна, 2
Схожі пропозиції
21.02.2025
Львівська обл., м. Городок, вул. П. Мирного, 3. Оренда – одноповерхова будівля площею 162,80 кв.м. (В)
4 377.69 грн
26.89 грн / м2
Будівля
Львівська обл., м. Городок, вул. П. Мирного, 3. Оренда – одноповерхова будівля площею 162,80 кв.м. (В)
Україна, Львівська обл., м. Городок, вул. П. Мирного, 3
Львівська обл., смт. Немирів, вул. Західні Вали, 12А. Оренда – будівля площею 55,8 кв.м. (В)
3 131.50 грн
56.12 грн / м2
Будівля
Львівська обл., смт. Немирів, вул. Західні Вали, 12А. Оренда – будівля площею 55,8 кв.м. (В)
Україна, Львівська обл., смт. Немирів, вул. Західні Вали, 12А
28.12.2023
Львівська обл., м. Старий Самбір, вул. Садова,19;     Оренда – частина нежитлової будівлі загальною площею 38,6 кв. м. (В)
1 745.49 грн
45.22 грн / м2
Будівля
Львівська обл., м. Старий Самбір, вул. Садова,19; Оренда – частина нежитлової будівлі загальною площею 38,6 кв. м. (В)
Україна, Львівська обл., Старий Самбір, вулиця Садова, 19
Львівська обл., м. Ходорів, вул. Шевченка, 119. Оренда – частини будівлі площею 48,10 кв. м. (В)
544.97 грн
11.33 грн / м2
Будівля
Львівська обл., м. Ходорів, вул. Шевченка, 119. Оренда – частини будівлі площею 48,10 кв. м. (В)
Україна, Львівська обл., м. Ходорів, вул. Шевченка, 119