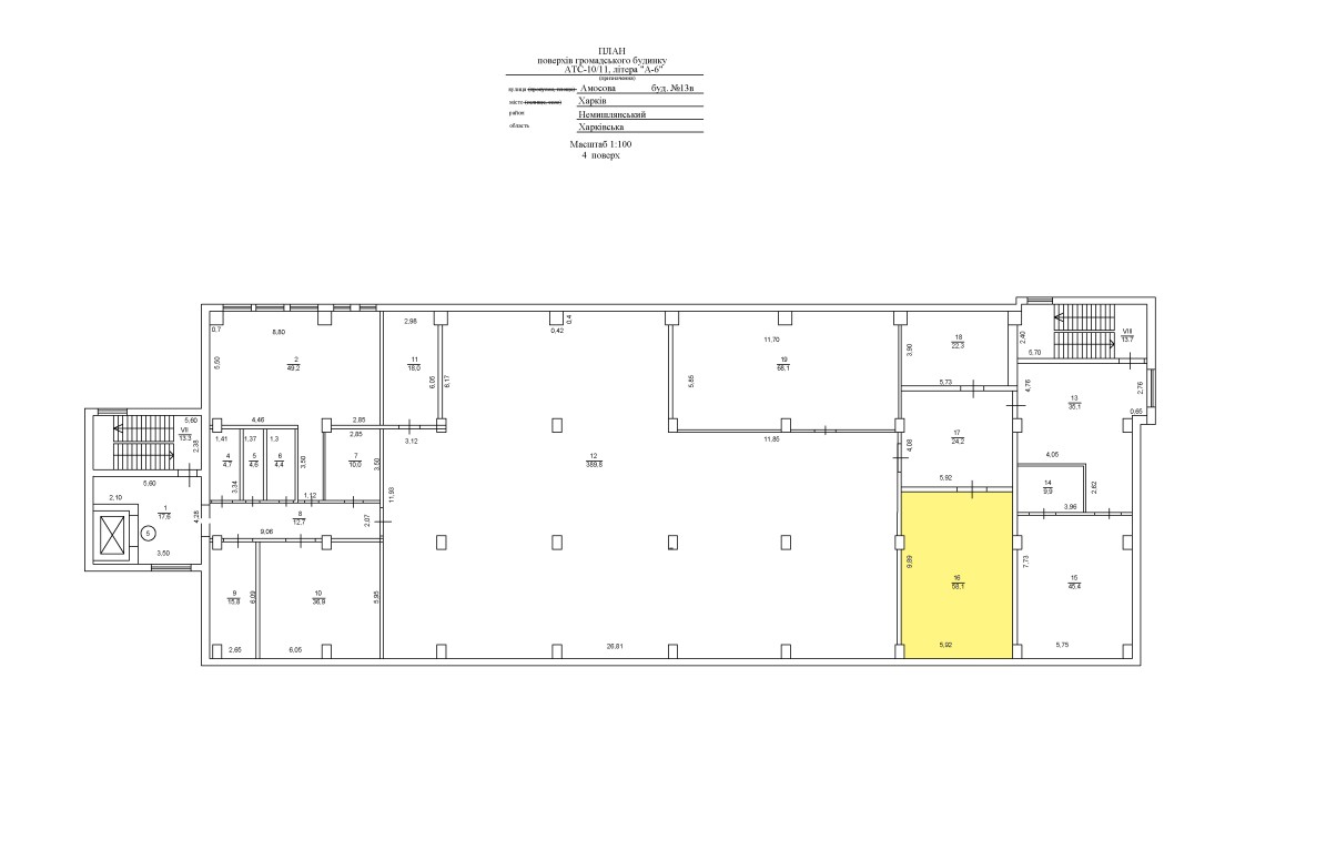
м. Харків, вул. Амосова,13-в. Оренда – приміщення четвертого поверху площею 58,1 кв.м. (В)

3 106.61 грн
53.47 грн / м2
Україна, Харківська обл., Харків, Харків, вул. Амосова,13-в
Перейти до аукціону на сайті
  • Інформація
  • Опис
  • Документи
Дата оголошення пропозиції:
03 жовтня 2025
Площа:
58.10 м2
Тип об’єкта:
Приміщення
Тип аукціону:
Англійський аукціон
Статус аукціону:
Прийняття заяв на участь
Тип угоди:
Оренда
Розмір мінімального кроку:
100.00 ₴
Розмір гарантійного внеску:
1 863.97 ₴
Початок прийому пропозицій:
03.10.2025 13:47:46
Завершення прийому пропозицій:
03.11.2025 20:00:00
Проведення аукціону:
04.11.2025 11:00:00
Лот:
CLE001-UA-20251003-44114
№ лоту (УТК):
UTK290825_08U
Лот виставляється на торги (раз):
2
Стислий опис майна:
Пропонується до оренди приміщення 4-го поверху площею 58,1 кв.м. Будівля в спальному районі міста Харкова. 10 хв до зупинки транспорту. Характеристики: Кількість поверхів – 5; Загальна площа – 4838,00 кв.м.; Площа запропонована до оренди – 58,1 кв.м.; Дозволена потужність – 2 кВт; Теплопостачання-централізоване. Земельна ділянка – 0,4825 га
Адреса місцезнаходження майна:
Україна, Харківська обл., Харків, Харків, вул. Амосова,13-в
Схожі пропозиції
26.03.2024
Харківська обл., Красноградський р-н, смт. Сахновщина, вул. Поштова, 6. Оренда – приміщення одноповерхової будівлі (бувший радіовузол) площею 57,7кв.м. (В)
608.16 грн
10.54 грн / м2
Приміщення
Харківська обл., Красноградський р-н, смт. Сахновщина, вул. Поштова, 6. Оренда – приміщення одноповерхової будівлі (бувший радіовузол) площею 57,7кв.м. (В)
Україна, Харківська обл., Красноградський р-н, смт. Сахновщина, вул. Поштова, 6
14.02.2024
ДОВГОСТРОКОВА ОРЕНДА! Харків, пр-т. Г. Сталінграду, 169. Оренда – приміщення 4-го поверху площею 684,90 кв.м. (В)
37 395.54 грн
54.60 грн / м2
Приміщення
ДОВГОСТРОКОВА ОРЕНДА! Харків, пр-т. Г. Сталінграду, 169. Оренда – приміщення 4-го поверху площею 684,90 кв.м. (В)
Україна, Харківська обл., м. Харків, пр-т. Г. Сталінграду, 169
Харківська обл., Харківський р-н, м. Мерефа, вул. Дніпровська, 226. Оренда – приміщення 2-го поверху будівлі «Дизельна», площею 85,80 кв.м. (В)
2 975.54 грн
34.68 грн / м2
Приміщення
Харківська обл., Харківський р-н, м. Мерефа, вул. Дніпровська, 226. Оренда – приміщення 2-го поверху будівлі «Дизельна», площею 85,80 кв.м. (В)
Україна, Харківська обл., Харківський р-н, м. Мерефа, вул. Дніпровська, 226
30.04.2024
Харківська обл., Красноградський р-н, смт. Сахновщина, вул. Поштова, 6. Оренда – приміщення одноповерхової будівлі (бувший радіовузол) площею 57,7кв.м. (В)
608.16 грн
10.54 грн / м2
Приміщення
Харківська обл., Красноградський р-н, смт. Сахновщина, вул. Поштова, 6. Оренда – приміщення одноповерхової будівлі (бувший радіовузол) площею 57,7кв.м. (В)
Україна, Харківська обл., Красноградський р-н, смт. Сахновщина, вул. Поштова, 6