м. Чернігів, вул. Ринкова, 20. Оренда – офісні приміщення 4-го поверху площею 121,9 кв.м. (В)

9 560.62 грн
78.43 грн / м2
Україна, Чернігівська обл., Чернігів, вулиця Ринкова, 20
Перейти до аукціону на сайті
  • Інформація
  • Опис
  • Документи
Дата оголошення пропозиції:
03 жовтня 2025
Площа:
121.90 м2
Тип об’єкта:
Приміщення
Тип аукціону:
Англійський аукціон
Статус аукціону:
Прийняття заяв на участь
Тип угоди:
Оренда
Розмір мінімального кроку:
500.00 ₴
Розмір гарантійного внеску:
5 736.37 ₴
Початок прийому пропозицій:
03.10.2025 14:07:15
Завершення прийому пропозицій:
03.11.2025 20:00:00
Проведення аукціону:
04.11.2025 11:15:00
Лот:
CLE001-UA-20251003-61192
№ лоту (УТК):
UTK_300525_09U
Лот виставляється на торги (раз):
4
Стислий опис майна:
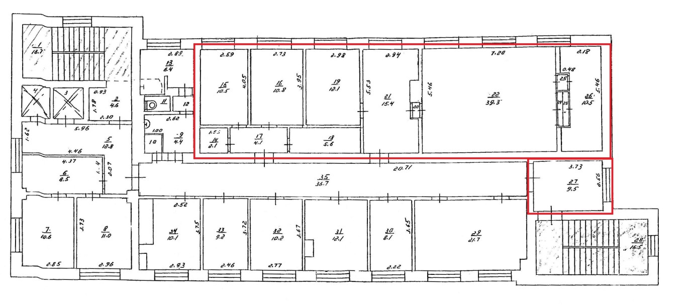
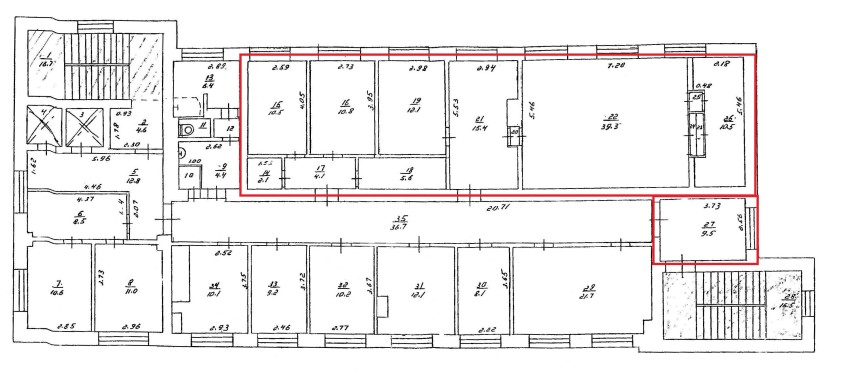
Пропонується до оренди офісні приміщення 4-го поверху площею 121,9 кв.м. Будівля знаходиться в центральній частині міста. Поряд знаходиться центральний ринок, зупинки міського транспорту.   Характеристики: кількість поверхів – 6; загальна площа – 1 032,10 кв.м; площа запропонована до оренди – 121,9 кв.м; земельна ділянка – 0,0439 га (договір оренди); централізоване опалення відключено; централізоване водопостачання/водовідведення наявне.
Адреса місцезнаходження майна:
Україна, Чернігівська обл., Чернігів, вулиця Ринкова, 20
Схожі пропозиції
28.06.2023
Чернігівська обл., Ніжинський р-н, с. Нова Басань, вул. Шевченка, 43. Оренда – приміщення 1-го поверху площею 27,1 кв.м. (В)
501.62 грн
18.51 грн / м2
Приміщення
Чернігівська обл., Ніжинський р-н, с. Нова Басань, вул. Шевченка, 43. Оренда – приміщення 1-го поверху площею 27,1 кв.м. (В)
Україна, Чернігівська обл., Нова Басань, вул. Шевченка, 43
15.07.2025
Чернігівська обл., м. Городня, вул. 1 Травня, 48. Оренда – приміщення 2-го поверху площею 143,40 кв.м.(В)
1 720.80 грн
12.00 грн / м2
Приміщення
Чернігівська обл., м. Городня, вул. 1 Травня, 48. Оренда – приміщення 2-го поверху площею 143,40 кв.м.(В)
Україна, Чернігівська обл., Городня, Городня, вул. 1 Травня, 48
Чернігівська обл., м. Прилуки, вул. Ярмаркова, 53. Оренда – приміщення 1-го поверху
5 540.19 грн
19.66 грн / м2
Приміщення
Чернігівська обл., м. Прилуки, вул. Ярмаркова, 53. Оренда – приміщення 1-го поверху
Україна, Чернігівська обл., м. Прилуки, вул. Ярмаркова, буд. 53
14.10.2025
Чернігівська обл., м. Борзна, вул. П.Куліша, 100 Оренда – приміщення 1-го поверху площею 53,30 кв.м (В)
1 658.16 грн
31.11 грн / м2
Приміщення
Чернігівська обл., м. Борзна, вул. П.Куліша, 100 Оренда – приміщення 1-го поверху площею 53,30 кв.м (В)
Україна, Чернігівська обл., Борзна, вул. Пантелеймона Куліша, 100
Переглянуті пропозиції
03.06.2025
Сумська обл., м. Кролевець, пл. Свободи, буд. 10/2. Оренда – частина будівлі та гараж, площею 233,30 кв. м. (В)
2 799.60 грн
12.00 грн / м2
Будівля
Сумська обл., м. Кролевець, пл. Свободи, буд. 10/2. Оренда – частина будівлі та гараж, площею 233,30 кв. м. (В)
Україна, Сумська обл., Кролевець, Кролевець, пл. Свободи, буд. 10/2
м. Трускавець, вул. Героїв УПА 11. Оренда будівлі
14 185.50 грн
14.70 грн / м2
Будівля
м. Трускавець, вул. Героїв УПА 11. Оренда будівлі
Україна, Львівська обл., м. Трускавець, вул. Героїв УПА, буд. 11