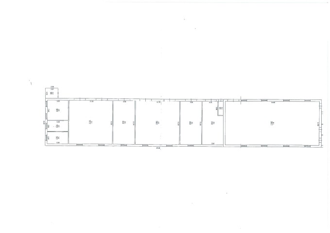
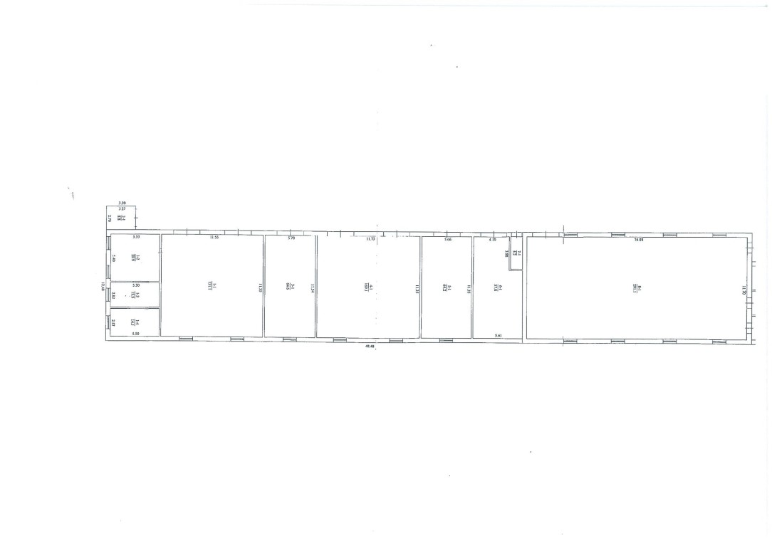
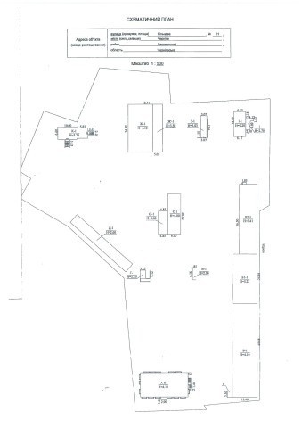
Довгострокова оренда! Чернігівська обл., м. Чернігів, вул. Кільцева, 11. Оренда – частина комплексу виробничих будівель площею 1731,1 кв.м (В)

51 933.00 грн
30.00 грн / м2
Україна, Чернігівська обл., Чернігів, вулиця Кільцева, 11
Перейти до аукціону на сайті
  • Інформація
  • Опис
  • Документи
Дата оголошення пропозиції:
03 жовтня 2025
Площа:
1731.10 м2
Тип об’єкта:
Будівля
Тип аукціону:
Англійський аукціон
Статус аукціону:
Прийняття заяв на участь
Тип угоди:
Оренда
Розмір мінімального кроку:
100.00 ₴
Розмір гарантійного внеску:
31 159.80 ₴
Початок прийому пропозицій:
03.10.2025 14:51:09
Завершення прийому пропозицій:
03.11.2025 20:00:00
Проведення аукціону:
04.11.2025 12:15:00
Лот:
CLE001-UA-20251003-33916
№ лоту (УТК):
UTK_130625_012U
Лот виставляється на торги (раз):
4
Стислий опис майна:
Пропонується до оренди частина комплексу виробничих будівель загальною площею 1731,1 кв.м. Майновий комплекс знаходиться в промисловій зоні міста, віддалений від центру, але в пішої доступності (до 10 хв.) від зупинки маршрутного таксі. Складається з гаражних та складських приміщень, господарських будівель, території двору (0,4351 га) для навантаження-розвантаження транспорту. Всі будівлі потребують капітального ремонту. Характеристики кількість об'єктів МК – 8 (загальна площа- 2784,2 кв.м); об'єкти, запропоновані до оренди 6 (площею 1731,1 кв.м); дозволена електрична потужність 0 кВт; земельна ділянка 0,4351 га (договір оренди).
Адреса місцезнаходження майна:
Україна, Чернігівська обл., Чернігів, вулиця Кільцева, 11
Схожі пропозиції
22.04.2025
м. Чернігів, вул. Кільцева,11. Оренда – частина комплексу виробничих будівель площею 1339,7 кв.м (В)
40 191.00 грн
30.00 грн / м2
Будівля
м. Чернігів, вул. Кільцева,11. Оренда – частина комплексу виробничих будівель площею 1339,7 кв.м (В)
Україна, Чернігівська обл., м. Чернігів, вул. Кільцева,11
26.12.2023
м. Чернігів, вул. Левка Лук’яненка, 33;     Оренда – виробничо-складська будівля площею 184,8 кв.м (В)
9 480.24 грн
51.30 грн / м2
Будівля
м. Чернігів, вул. Левка Лук’яненка, 33; Оренда – виробничо-складська будівля площею 184,8 кв.м (В)
Україна, Чернігівська обл., Чернігів, Левка Лук'яненка, 33
21.03.2024
Чернігівська обл., cмт. Батурин, вул. Ющенка (Центральна), 52. Оренда – частина будівлі 1го поверху, площею 247,4 кв.м. (B)
5 828.74 грн
23.56 грн / м2
Будівля
Чернігівська обл., cмт. Батурин, вул. Ющенка (Центральна), 52. Оренда – частина будівлі 1го поверху, площею 247,4 кв.м. (B)
Україна, Чернігівська обл., cмт. Батурин, вул. Ющенка (Центральна), 52
16.11.2022
Чернігівська обл., смт Срібне, вул. Шевченка, 29. Оренда – комплекс будівель площею 71,5 кв.м. (В)
7 364.50 грн
103.00 грн / м2
Будівля
Чернігівська обл., смт Срібне, вул. Шевченка, 29. Оренда – комплекс будівель площею 71,5 кв.м. (В)
Україна, Чернігівська обл., смт Срібне, вул. Шевченка, 29
Переглянуті пропозиції
04.11.2025
Чернігівська обл., м. Ічня, вул. Воскресінська, 26. Оренда – приміщення 2-го поверху площею 155,90 кв.м (В)
3 507.75 грн
22.50 грн / м2
Приміщення
Чернігівська обл., м. Ічня, вул. Воскресінська, 26. Оренда – приміщення 2-го поверху площею 155,90 кв.м (В)
Україна, Чернігівська обл., Ічня, вул. Воскресінська, 26
04.11.2025
Довгострокова оренда! Чернігівська обл., м. Чернігів, вул. Коцюбинського, 50-А. Оренда – частина адміністративної будівлі площею 2292,40 кв.м (В)
89 862.08 грн
39.20 грн / м2
Адмінбудівля
Довгострокова оренда! Чернігівська обл., м. Чернігів, вул. Коцюбинського, 50-А. Оренда – частина адміністративної будівлі площею 2292,40 кв.м (В)
Україна, Чернігівська обл., Чернігів, вулиця Коцюбинського, 50-А