Дніпропетровська обл., м. Вільногірськ, вул. Миру, 12. Оренда – група приміщеннь 2-го поверху площею 70,80 кв. м (В)

2 548.80 грн
36.00 грн / м2
Україна, Дніпропетровська обл., м. Вільногірськ, вул. Миру, 12
Перейти до аукціону на сайті
  • Інформація
  • Опис
  • Документи
Дата оголошення пропозиції:
03 жовтня 2025
Площа:
70.80 м2
Тип об’єкта:
Приміщення
Тип аукціону:
Англійський аукціон
Статус аукціону:
Прийняття заяв на участь
Тип угоди:
Оренда
Розмір мінімального кроку:
200.00 ₴
Розмір гарантійного внеску:
1 529.28 ₴
Початок прийому пропозицій:
03.10.2025 15:40:06
Завершення прийому пропозицій:
03.11.2025 20:00:00
Проведення аукціону:
04.11.2025 11:20:00
Лот:
CLE001-UA-20251003-89738
№ лоту (УТК):
UTK250725_07P
Лот виставляється на торги (раз):
3
Стислий опис майна:
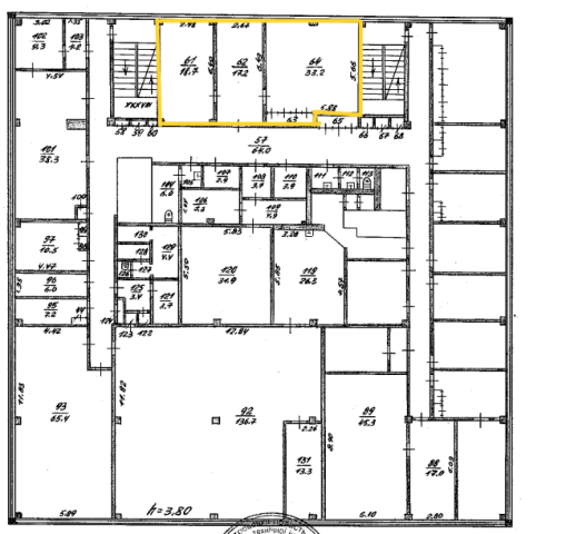
Пропонується до оренди група приміщеннь 2-го поверху (№№61-64) площею 70,8 кв. м. Розташування – 4-х поверхова будівля знаходиться в центрі міста. Поруч розташовані: житловий масив ,парк, магазини, пошта, ринок. Високий автомобільний і пішохідний потоки, зручна транспортна розв’язка. Приміщення підходить під розвиток будь-якого бізнесу. . Можливість передачі приміщень в суборенду. Характеристики: Кількість поверхів – 4 Загальна площа –3263,40 кв.м. Площа запропонована до оренди –70,8 кв.м. Електропостачання, водопостачання - централізоване; теплопосточання –відключено. Площа земельної ділянки - 0,3278 га (договір оренди)
Адреса місцезнаходження майна:
Україна, Дніпропетровська обл., м. Вільногірськ, вул. Миру, 12
Схожі пропозиції
18.07.2025
Дніпропетровська обл., м. Кривий Ріг, вул. Головка Адмірала, 71. Оренда – приміщення 3-го поверху, площею 777,30 кв.м. (В)
9 327.60 грн
12.00 грн / м2
Приміщення
Дніпропетровська обл., м. Кривий Ріг, вул. Головка Адмірала, 71. Оренда – приміщення 3-го поверху, площею 777,30 кв.м. (В)
Україна, Дніпропетровська обл., Кривий Ріг, Кривий Ріг, вул. Головка Адмірала, 71
21.11.2025
ДОВГОСТРОКОВА ОРЕНДА! Дніпропетровська обл., м. Кривий Ріг, вул. Героїв АТО, 97. Оренда – приміщення 2-го поверху площею 656,8 кв. м. (В)
19 704.00 грн
30.00 грн / м2
Приміщення
ДОВГОСТРОКОВА ОРЕНДА! Дніпропетровська обл., м. Кривий Ріг, вул. Героїв АТО, 97. Оренда – приміщення 2-го поверху площею 656,8 кв. м. (В)
Україна, Дніпропетровська обл., м. Кривий Ріг, вул. Героїв АТО, 97
21.11.2025
Дніпропетровська обл., м. Дніпро, вул. Січових Стрільців, 10. Оренда – приміщення 1-го поверху площею 214,10 кв.м (В)
10 705.00 грн
50.00 грн / м2
Приміщення
Дніпропетровська обл., м. Дніпро, вул. Січових Стрільців, 10. Оренда – приміщення 1-го поверху площею 214,10 кв.м (В)
Україна, Дніпропетровська обл., м. Дніпро, вул. Січових Стрільців, 10
Дніпропетровська обл., м. Дніпро, вул.Князя Ярослава Мудрого, 3. Оренда – приміщення  5-го  поверху площею 68,20 кв.м. (В)
9 718.50 грн
142.50 грн / м2
Приміщення
Дніпропетровська обл., м. Дніпро, вул.Князя Ярослава Мудрого, 3. Оренда – приміщення 5-го поверху площею 68,20 кв.м. (В)
Україна, Дніпропетровська обл., м. Дніпро, вул.Князя Ярослава Мудрого, 3