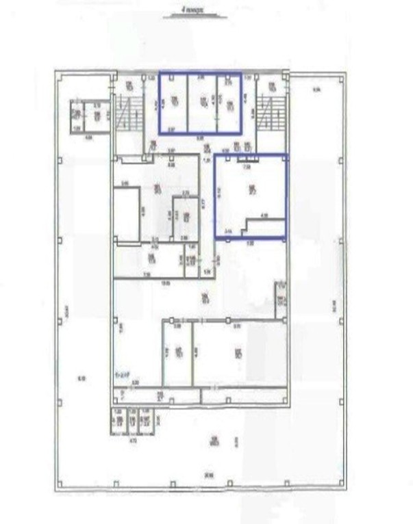
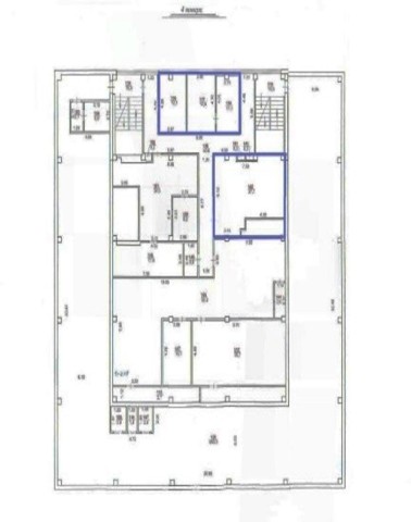
Львівська обл. м. Радехів, вул. Львівська, 24. Оренда – приміщення 4-го поверху площею 74,30 кв. м. (В)

1 051.35 грн
14.15 грн / м2
Україна, Львівська обл., м. Радехів, вул. Львівська, 24
Перейти до аукціону на сайті
  • Інформація
  • Опис
  • Документи
Дата оголошення пропозиції:
15 жовтня 2025
Площа:
74.30 м2
Тип об’єкта:
Приміщення
Тип аукціону:
Англійський аукціон
Статус аукціону:
Прийняття заяв на участь
Тип угоди:
Оренда
Розмір мінімального кроку:
50.00 ₴
Розмір гарантійного внеску:
630.00 ₴
Початок прийому пропозицій:
15.10.2025 14:53:06
Завершення прийому пропозицій:
17.11.2025 20:00:00
Проведення аукціону:
18.11.2025 12:40:00
Лот:
CLE001-UA-20251015-79425
№ лоту (УТК):
UTK150721_11P
Лот виставляється на торги (раз):
10
Стислий опис майна:
Пропонуються до оренди приміщення 4-го поверху площею 74,30 кв.м. Будівля знаходиться в центральній частині міста, розвинена інфраструктура, високі автомобільний та пішохідний потоки. Характеристики: кількість поверхів – 4; опалення централізоване, але на даний момент відсутнє , необхідне відновлення системи теплопостачання; Електропостачання – дозволена потужність 27 кВт; земельна ділянка – 0,3572 га (договір оренди)
Адреса місцезнаходження майна:
Україна, Львівська обл., м. Радехів, вул. Львівська, 24
Схожі пропозиції
Львівська обл., смт. Верхнє Синьовидне,  вул. Січових Стрільців, 71-А Оренда приміщень 1 пов.
890.57 грн
22.32 грн / м2
Приміщення
Львівська обл., смт. Верхнє Синьовидне, вул. Січових Стрільців, 71-А Оренда приміщень 1 пов.
Україна, Львівська обл., смт. Верхнє Синьовидне, вул. Січових Стрільців, буд. 71-А
27.11.2024
Львівська обл., м. Жидачів, пл. Свободи, 8 . Оренда – приміщення 2-го поверху площею 59,80 кв. м. (В)
2 368.08 грн
39.60 грн / м2
Приміщення
Львівська обл., м. Жидачів, пл. Свободи, 8 . Оренда – приміщення 2-го поверху площею 59,80 кв. м. (В)
Україна, Львівська обл., м. Жидачів, пл. Свободи, 8
05.09.2024
Львівська обл. м. Перемишляни вул. Топольна, 6. Оренда – приміщення гаражів площею 45,3 кв.м. (В)
8 200.66 грн
181.03 грн / м2
Приміщення
Львівська обл. м. Перемишляни вул. Топольна, 6. Оренда – приміщення гаражів площею 45,3 кв.м. (В)
Україна, Львівська обл., м. Перемишляни, вул. Топольна, 6
Львівська обл., Стрийський р-н., м. Стрий, вул. Головінського, 8. Оренда – приміщення складу площею 59,4 кв.м. (В)
1 104.84 грн
18.60 грн / м2
Приміщення
Львівська обл., Стрийський р-н., м. Стрий, вул. Головінського, 8. Оренда – приміщення складу площею 59,4 кв.м. (В)
Україна, Львівська обл., м. Стрий, вул. Головінського, 8
Переглянуті пропозиції
Полтавська обл., м. Полтава, вул. Юрія Побєдоносцева, буд. 17. Оренда – приміщення 1-го поверху площею 97,2 кв.м. (В)
461.70 грн
4.75 грн / м2
Приміщення
Полтавська обл., м. Полтава, вул. Юрія Побєдоносцева, буд. 17. Оренда – приміщення 1-го поверху площею 97,2 кв.м. (В)
Україна, Полтавська обл., м. Полтава, вул. Юрія Побєдоносцева, буд. 17