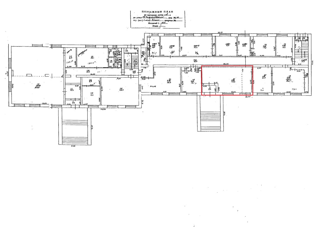
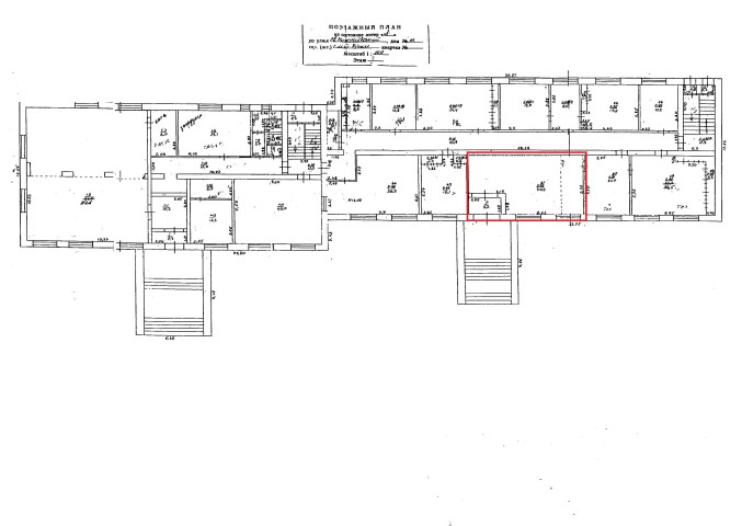
Чернігівська обл., с-ще Ріпки, вул. Святомиколаївська, 67. Оренда – приміщення 1-го поверху, площею 49,10 кв.м. (В)

589.20 грн
12.00 грн / м2
Україна, Чернігівська обл., Ріпки, 15000, с-ще. Ріпки, вул. Святомиколаївська, 67
Перейти до аукціону на сайті
  • Інформація
  • Опис
  • Документи
Дата оголошення пропозиції:
21 жовтня 2025
Площа:
49.10 м2
Тип об’єкта:
Приміщення
Тип аукціону:
Англійський аукціон
Статус аукціону:
Прийняття заяв на участь
Тип угоди:
Оренда
Розмір мінімального кроку:
100.00 ₴
Розмір гарантійного внеску:
353.52 ₴
Початок прийому пропозицій:
21.10.2025 14:03:47
Завершення прийому пропозицій:
25.11.2025 20:00:00
Проведення аукціону:
26.11.2025 12:40:00
Лот:
CLE001-UA-20251021-04739
№ лоту (УТК):
UTK180425_11U
Лот виставляється на торги (раз):
6
Стислий опис майна:
Пропонується до оренди приміщення 1-го поверху площею 49,10 кв.м. Будівля знаходиться в наближеній до центральної частини селища. Приміщення має окремий фасадний вхід , може бути застосовано під торгові або офісні площі. Характеристики: • кількість поверхів – 2 • Площа оренди - 49,1 м² • Дозволена електрична потужність на приміщення до 7 кВт • земельна ділянка – 0,5678 га (договір оренди)
Адреса місцезнаходження майна:
Україна, Чернігівська обл., Ріпки, 15000, с-ще. Ріпки, вул. Святомиколаївська, 67
Схожі пропозиції
Чернігівська обл., м. Чернігів, вул. Толстого, 106-А. Оренда – виробничі приміщення площею 227,5 кв.м (В)
8 078.53 грн
35.51 грн / м2
Приміщення
Чернігівська обл., м. Чернігів, вул. Толстого, 106-А. Оренда – виробничі приміщення площею 227,5 кв.м (В)
Україна, Чернігівська обл., Чернігів, вул. Толстого, 106-А
12.07.2023
Чернігівська обл., м. Чернігів, проспект Миру, 28. Оренда - приміщення 2 поверху площею 133,1 кв.м (В)
19 765.35 грн
148.50 грн / м2
Приміщення
Чернігівська обл., м. Чернігів, проспект Миру, 28. Оренда - приміщення 2 поверху площею 133,1 кв.м (В)
Україна, Чернігівська обл., Чернігівська обл., м. Чернігів, проспект Миру, 28
21.12.2022
Чернігівська обл., смт. Сосниця, вул. Б. Хмельницького, 16. Оренда – підвальне приміщення площею 31,35 кв.м. (В)
404.42 грн
12.90 грн / м2
Приміщення
Чернігівська обл., смт. Сосниця, вул. Б. Хмельницького, 16. Оренда – підвальне приміщення площею 31,35 кв.м. (В)
Україна, Чернігівська обл., смт. Сосниця, вул. Б. Хмельницького, 16
22.04.2025
Чернігівська обл., м. Чернігів, проспект Миру, 28. Оренда – приміщення 3- го поверху площею 56,6 кв.м (В)
1 698.00 грн
30.00 грн / м2
Приміщення
Чернігівська обл., м. Чернігів, проспект Миру, 28. Оренда – приміщення 3- го поверху площею 56,6 кв.м (В)
Україна, Чернігівська обл., м. Чернігів, проспект Миру, 28
Переглянуті пропозиції
04.03.2025
Харківська обл., Красноградський р-н, смт. Сахновщина, вул. Поштова, 6. Оренда – приміщення на 1-го поверху площею 57,0 кв.м. (В)
684.00 грн
12.00 грн / м2
Приміщення
Харківська обл., Красноградський р-н, смт. Сахновщина, вул. Поштова, 6. Оренда – приміщення на 1-го поверху площею 57,0 кв.м. (В)
Україна, Харківська обл., Красноградський р-н, смт. Сахновщина, вул. Поштова, 6
05.06.2024
м. Харків, пр-т. Г. Сталінграду, 169. Оренда – приміщення 2-го поверху площею 5,5 кв.м. (В)
522.50 грн
95.00 грн / м2
Приміщення
м. Харків, пр-т. Г. Сталінграду, 169. Оренда – приміщення 2-го поверху площею 5,5 кв.м. (В)
Україна, Харківська обл., м. Харків, пр-т. Г. Сталінграду, 169
07.05.2024
Вінницька обл., Гайсинський р-н., м. Гайсин, вул. Жовтнева, 28А;  Оренда – Приміщення 3-го поверху площею 177,80 кв.м. (В)
6 187.44 грн
34.80 грн / м2
Приміщення
Вінницька обл., Гайсинський р-н., м. Гайсин, вул. Жовтнева, 28А; Оренда – Приміщення 3-го поверху площею 177,80 кв.м. (В)
Україна, Вінницька обл., Гайсин, вул. Жовтнева, 28а
29.10.2025
Вінницька обл., м. Вінниця, вул. О. Береста, 6. Оренда – Навіс площею 109,00 кв.м. (В)
6 540.00 грн
60.00 грн / м2
Приміщення
Вінницька обл., м. Вінниця, вул. О. Береста, 6. Оренда – Навіс площею 109,00 кв.м. (В)
Україна, Вінницька обл., Вінниця, вулиця Олексія Береста, 6