Сумська обл., Роменський р-н., с. Хоружівка, вул. б/н. Оренда – частина нежитлового приміщення площею 38,70 кв.м. (В)

2 576.65 грн
66.58 грн / м2
Україна, Сумська обл., Роменський р-н., с. Хоружівка, вул. б/н
Перейти до аукціону на сайті
  • Інформація
  • Опис
  • Документи
Дата оголошення пропозиції:
23 жовтня 2025
Площа:
38.70 м2
Тип об’єкта:
Приміщення
Тип аукціону:
Англійський аукціон
Статус аукціону:
Прийняття заяв на участь
Тип угоди:
Оренда
Розмір мінімального кроку:
50.00 ₴
Розмір гарантійного внеску:
1 545.99 ₴
Початок прийому пропозицій:
23.10.2025 09:13:41
Завершення прийому пропозицій:
25.11.2025 20:00:00
Проведення аукціону:
26.11.2025 11:05:00
Лот:
CLE001-UA-20251023-21740
№ лоту (УТК):
UTK081122_09P
Лот виставляється на торги (раз):
10
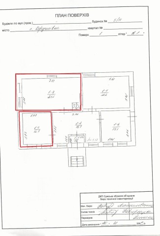
Стислий опис майна:
Пропонується до оренди частина нежитлового приміщення площею 38,70 кв.м. Будівля знаходиться в центральній частині села. Можливість передачі приміщень в суборенду. Доступ вільний 24/7. Характеристики: Кількість поверхів – 1; Загальна площа – 93,70 кв.м. Площа запропонована до оренди - 38,70 кв.м. Електроенергія – наявне , опалення, водопостачання – відсутні; Земельна ділянка – 0,140 га (договір оренди)
Адреса місцезнаходження майна:
Україна, Сумська обл., Роменський р-н., с. Хоружівка, вул. б/н
Схожі пропозиції
12.07.2024
Сумська область, Конотопський р-н, м. Буринь, вул. Першотравнева, буд. 5;  Оренда – приміщення гаражу площею 69,50 кв. м. (В)
684.58 грн
9.85 грн / м2
Приміщення
Сумська область, Конотопський р-н, м. Буринь, вул. Першотравнева, буд. 5; Оренда – приміщення гаражу площею 69,50 кв. м. (В)
Україна, Сумська обл., Буринь, вул. Першотравнева, 5
21.09.2023
Сумська обл., м. Суми, вул. Нижньосироватська, буд. 64. Оренда – приміщення 1-го поверху площею 104,40 кв.м. (В)
4 948.56 грн
47.40 грн / м2
Приміщення
Сумська обл., м. Суми, вул. Нижньосироватська, буд. 64. Оренда – приміщення 1-го поверху площею 104,40 кв.м. (В)
Україна, Сумська обл., м. Суми, вул. Нижньосироватська, буд. 64
Сумська обл., м. Суми, вул. Нижньосироватська, 64. Оренда – приміщення 3-го поверху площею 618,5 кв.м. (В)
3 729.56 грн
6.03 грн / м2
Приміщення
Сумська обл., м. Суми, вул. Нижньосироватська, 64. Оренда – приміщення 3-го поверху площею 618,5 кв.м. (В)
Україна, Сумська обл., м. Суми, вул. Нижньосироватська, буд. 64
05.06.2024
Сумська обл., Роменський р-н, с. Сакуниха, вул. Рябова, буд. 103. Оренда – нежитлове приміщення площею 11,80 кв.м. (В)
500.32 грн
42.40 грн / м2
Приміщення
Сумська обл., Роменський р-н, с. Сакуниха, вул. Рябова, буд. 103. Оренда – нежитлове приміщення площею 11,80 кв.м. (В)
Україна, Сумська обл., Роменський р-н, с. Сакуниха, вул. Рябова, буд. 103