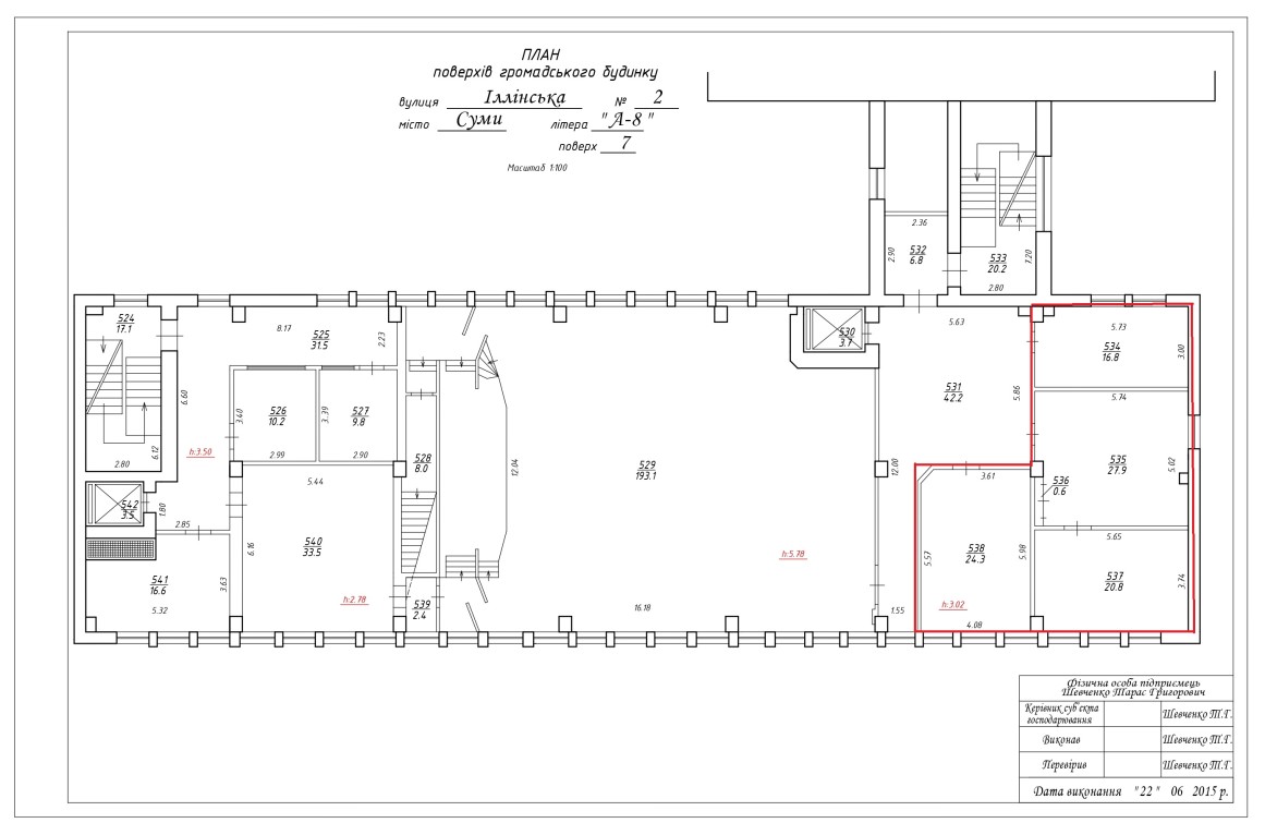
Сумська обл., м. Суми, вул. Іллінська, буд. 2. Оренда – офісні приміщення 7-го поверху площею 89,80 кв.м. (В)

2 694.00 грн
30.00 грн / м2
Україна, Сумська обл., м. Суми, вул. Іллінська, буд. 2
Перейти до аукціону на сайті
  • Інформація
  • Опис
  • Документи
Дата оголошення пропозиції:
23 жовтня 2025
Площа:
89.80 м2
Тип об’єкта:
Офіс
Тип аукціону:
Англійський аукціон
Статус аукціону:
Прийняття заяв на участь
Тип угоди:
Оренда
Розмір мінімального кроку:
100.00 ₴
Розмір гарантійного внеску:
1 616.40 ₴
Початок прийому пропозицій:
23.10.2025 15:08:56
Завершення прийому пропозицій:
25.11.2025 20:00:00
Проведення аукціону:
26.11.2025 12:55:00
Лот:
CLE001-UA-20251023-06342
№ лоту (УТК):
UTK060922_07P
Лот виставляється на торги (раз):
10
Стислий опис майна:
Пропонується до оренди офісні приміщення 7-го поверху площею 89,80 кв. м.на восьмиповерхового будинку зв`язку в центральній частині міста. Окремий вхід з фасаду будівлі. Чудова візуалізація з дороги, поруч зупинки, магазини, аптеки, універмаг. Відсутній доступ до приміщення маломобільних груп населення. Ліфт потребує капітального ремонту (відключений). Характеристики: кількість поверхів – 8; Загальна площа – 11 677,00 кв. м.; Площа запропонована до оренди – 89,80 кв. м; Опалення, електропостачання, санвузол та водопостачання - наявні; земельна ділянка – 0.6776 га (договір оренди ЗД); стан приміщення – добрий
Адреса місцезнаходження майна:
Україна, Сумська обл., м. Суми, вул. Іллінська, буд. 2
Схожі пропозиції
23.05.2023
Сумська обл., м. Путивль, вул. Першотравнева, буд. 86. Оренда – офісні приміщення 1-го поверху площею 14,80 кв.м. (В)
500.98 грн
33.85 грн / м2
Офіс
Сумська обл., м. Путивль, вул. Першотравнева, буд. 86. Оренда – офісні приміщення 1-го поверху площею 14,80 кв.м. (В)
Україна, Сумська обл., м. Путивль, вул. Першотравнева, буд. 86
08.04.2025
Сумська область, м. Лебедин, вул. Героїв Майдану, буд. 25;   Оренда – офісні приміщення, площею 66,5 кв.м. (В)
1 714.37 грн
25.78 грн / м2
Офіс
Сумська область, м. Лебедин, вул. Героїв Майдану, буд. 25; Оренда – офісні приміщення, площею 66,5 кв.м. (В)
Україна, Сумська обл., Лебедин, вул. Героїв Майдану, 25
05.06.2024
Сумська обл., м. Білопілля, вул. Старопутивльська, буд. 47. Оренда – офісні приміщення 2-го поверху, площею 85,6 кв.м. (В)
626.59 грн
7.32 грн / м2
Офіс
Сумська обл., м. Білопілля, вул. Старопутивльська, буд. 47. Оренда – офісні приміщення 2-го поверху, площею 85,6 кв.м. (В)
Україна, Сумська обл., м. Білопілля, вул. Старопутивльська, буд. 47
10.01.2024
Сумська обл., м. Буринь, вул. Першотравнева, 5. Оренда – офісні приміщення 2-го поверху площею 22,10 кв.м. (В)
502.33 грн
22.73 грн / м2
Офіс
Сумська обл., м. Буринь, вул. Першотравнева, 5. Оренда – офісні приміщення 2-го поверху площею 22,10 кв.м. (В)
Україна, Сумська обл., м. Буринь, вул. Першотравнева, 5