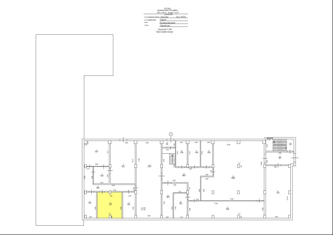
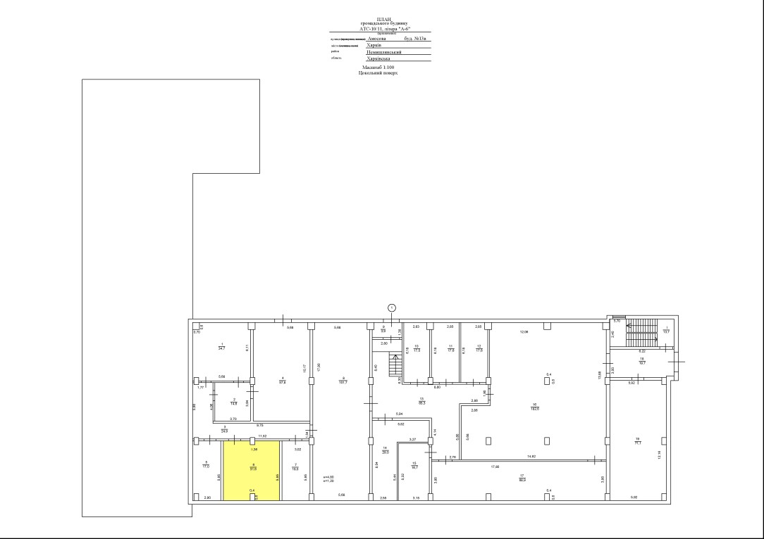
м. Харків, вул. Амосова,13 в. Оренда – приміщення цокольного поверху площею 31,60 кв.м (В)

948.00 грн
30.00 грн / м2
Україна, Харківська обл., м. Харків, вул. Амосова,13 в
Перейти до аукціону на сайті
  • Інформація
  • Опис
  • Документи
Дата оголошення пропозиції:
24 жовтня 2025
Площа:
31.60 м2
Тип об’єкта:
Приміщення
Тип аукціону:
Англійський аукціон
Статус аукціону:
Прийняття заяв на участь
Тип угоди:
Оренда
Розмір мінімального кроку:
50.00 ₴
Розмір гарантійного внеску:
568.80 ₴
Початок прийому пропозицій:
24.10.2025 15:44:00
Завершення прийому пропозицій:
25.11.2025 20:00:00
Проведення аукціону:
26.11.2025 12:20:00
Лот:
CLE001-UA-20251024-02989
№ лоту (УТК):
UTK140225_01P
Лот виставляється на торги (раз):
7
Стислий опис майна:
Пропонується до оренди приміщення цокольного поверху площею 31,60 кв.м. Будівля в спальному районі міста Харкова. 10 хв до зупинки транспорту. Характеристики: Кількість поверхів – 5; Загальна площа – 4838,00 кв.м_ Площа запропонована до оренди -31,6кв.м Дозволена потужність – 1,5 кВт Теплопостачання-централізоване Земельна ділянка – 0,4825 га
Адреса місцезнаходження майна:
Україна, Харківська обл., м. Харків, вул. Амосова,13 в
Схожі пропозиції
17.11.2023
Харківська обл., Харківський р-н, м. Мерефа, вул. Дніпровська, 226. Оренда – приміщення 2-го поверху будівлі «Дизельна», площею 85,80 кв.м. (В)
883.74 грн
10.30 грн / м2
Приміщення
Харківська обл., Харківський р-н, м. Мерефа, вул. Дніпровська, 226. Оренда – приміщення 2-го поверху будівлі «Дизельна», площею 85,80 кв.м. (В)
Україна, Харківська обл., Харківський р-н, м. Мерефа, вул. Дніпровська, 226
05.11.2024
Харківська обл., Лозівський р-н, м. Лозова, вул. М. Грушевського, 7. Оренда – приміщення 1-го поверху площею 230,92 кв.м. (В)
1 263.13 грн
5.47 грн / м2
Приміщення
Харківська обл., Лозівський р-н, м. Лозова, вул. М. Грушевського, 7. Оренда – приміщення 1-го поверху площею 230,92 кв.м. (В)
Україна, Харківська обл., Лозівський р-н, м. Лозова, вул. М. Грушевського, 7
11.12.2024
м. Харків,  пр-т  Ювілейний, 66;   Оренда – приміщення 2-го поверху площею 10,9 кв.м (В)
586.20 грн
53.78 грн / м2
Приміщення
м. Харків, пр-т Ювілейний, 66; Оренда – приміщення 2-го поверху площею 10,9 кв.м (В)
Україна, Харківська обл., Харків, проспект Ювілейний, 66
11.12.2024
м.Харків, пр-т Ювілейний, 66;   Оренда – приміщення 2-го поверху площею 35,3 кв.м (В)
1 925.97 грн
54.56 грн / м2
Приміщення
м.Харків, пр-т Ювілейний, 66; Оренда – приміщення 2-го поверху площею 35,3 кв.м (В)
Україна, Харківська обл., Харків, проспект Ювілейний, 66
Переглянуті пропозиції
Полтавська обл., м. Кременчук, вул. Соборна, 17. Оренда – приміщення 3-го поверху площею 690,1 кв.м. (В)
3 795.55 грн
5.50 грн / м2
Приміщення
Полтавська обл., м. Кременчук, вул. Соборна, 17. Оренда – приміщення 3-го поверху площею 690,1 кв.м. (В)
Україна, Полтавська обл., м. Кременчук, вул. Соборна, 17