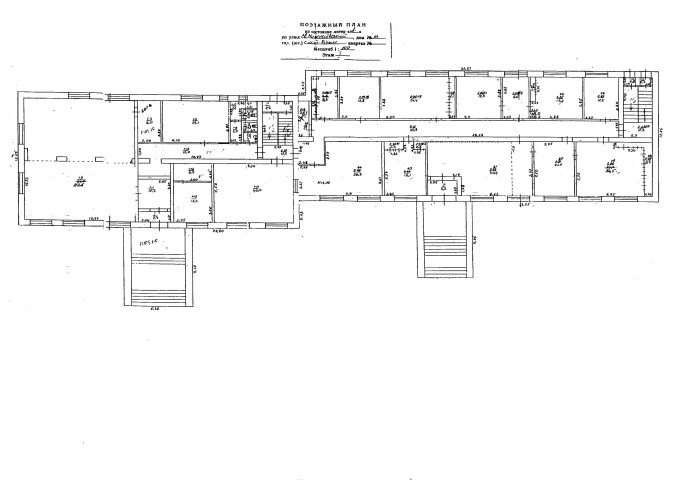
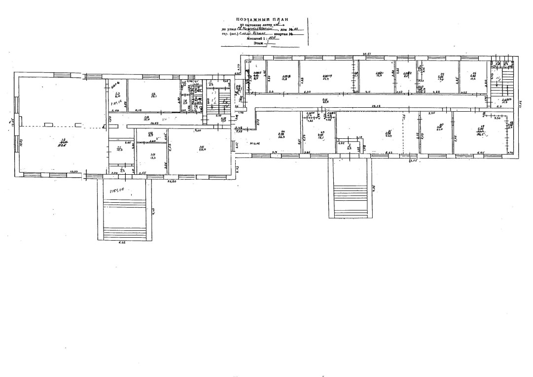
Чернігівська обл., с-ще Ріпки, вул. Святомиколаївська, 67. Оренда – офісні приміщення 1 -го поверху площею 116,65 кв.м (В)

2 379.66 грн
20.40 грн / м2
Україна, Чернігівська обл., с-ще Ріпки, вул. Святомиколаївська, 67
Перейти до аукціону на сайті
  • Інформація
  • Опис
  • Документи
Дата оголошення пропозиції:
24 жовтня 2025
Площа:
116.65 м2
Тип об’єкта:
Офіс
Тип аукціону:
Англійський аукціон
Статус аукціону:
Прийняття заяв на участь
Тип угоди:
Оренда
Розмір мінімального кроку:
100.00 ₴
Розмір гарантійного внеску:
1 427.80 ₴
Початок прийому пропозицій:
24.10.2025 15:14:10
Завершення прийому пропозицій:
25.11.2025 20:00:00
Проведення аукціону:
26.11.2025 12:40:00
Лот:
CLE001-UA-20251024-30953
№ лоту (УТК):
UTK171224_13P
Лот виставляється на торги (раз):
9
Стислий опис майна:
Пропонується до оренди офісні приміщення 1-поверху площею 116,65 кв.м. Будівля знаходиться в наближеній до центральної частини селища. Характеристики: кількість поверхів – 2 Загальна площа обєкту 1233,3 кв м Площа до оренди 116,65 кв м земельна ділянка – 0,5678 га (договір оренди) Опалення відсутнє Дозволена електрична потужність до 15 кВт
Адреса місцезнаходження майна:
Україна, Чернігівська обл., с-ще Ріпки, вул. Святомиколаївська, 67
Схожі пропозиції
30.09.2025
Чернігівська обл., м. Чернігів, проспект Миру, 28. Оренда – офісне приміщення 3-го поверху площею 17,70 кв.м. (В)
2 270.20 грн
128.26 грн / м2
Офіс
Чернігівська обл., м. Чернігів, проспект Миру, 28. Оренда – офісне приміщення 3-го поверху площею 17,70 кв.м. (В)
Україна, Чернігівська обл., Чернігів, проспект Миру 28
Чернігівська обл., м. Чернігів, вул. Рокоссовського, 33. Оренда – офісне приміщення 4-го поверху площею 7,80 кв.м. (В)
665.11 грн
85.27 грн / м2
Офіс
Чернігівська обл., м. Чернігів, вул. Рокоссовського, 33. Оренда – офісне приміщення 4-го поверху площею 7,80 кв.м. (В)
Україна, Чернігівська обл., Чернігів, вул. Рокоссовського, 33
30.11.2023
Чернігівська обл., м. Чернігів, проспект Миру, 35Б. Оренда – офісні приміщення 1 та 2 поверхів загальною площею 242,8 кв.м. (В)
18 865.56 грн
77.70 грн / м2
Офіс
Чернігівська обл., м. Чернігів, проспект Миру, 35Б. Оренда – офісні приміщення 1 та 2 поверхів загальною площею 242,8 кв.м. (В)
Україна, Чернігівська обл., м. Чернігів, проспект Миру, 35Б
07.09.2022
Чернігівська обл., м. Сновськ, вул. Миру, 51-А. Оренда – офісні приміщення 2-го поверху площею 60,9 кв.м, (В)
2 267.31 грн
37.23 грн / м2
Офіс
Чернігівська обл., м. Сновськ, вул. Миру, 51-А. Оренда – офісні приміщення 2-го поверху площею 60,9 кв.м, (В)
Україна, Чернігівська обл., м. Сновськ, вул. Миру, 51-А
Переглянуті пропозиції
Полтавська обл., м. Кременчук, вул. Соборна, 17. Оренда – приміщення 3-го поверху площею 690,1 кв.м. (В)
3 795.55 грн
5.50 грн / м2
Приміщення
Полтавська обл., м. Кременчук, вул. Соборна, 17. Оренда – приміщення 3-го поверху площею 690,1 кв.м. (В)
Україна, Полтавська обл., м. Кременчук, вул. Соборна, 17