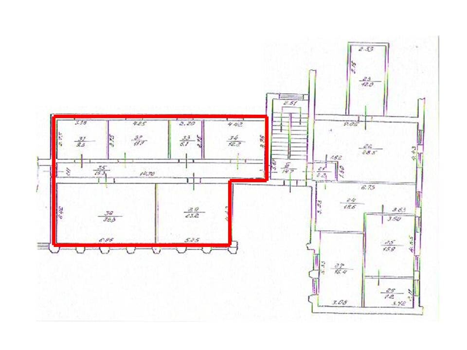
Івано-Франківська обл., Калуський район, смт.Рожнятів, площа Єдності, 9, оренда – Приміщення 3-го поверху площею 109,6 м.кв. (В)

500.87 грн
4.57 грн / м2
Україна, Івано-Франківська обл., Рожнятів, площа Єдності, 9
Перейти до аукціону на сайті
  • Інформація
  • Опис
  • Документи
Дата оголошення пропозиції:
30 березня 2022
Площа:
109.60 м2
Тип об’єкта:
Приміщення
Тип аукціону:
Англійський аукціон
Статус аукціону:
Аукціон не відбувся
Тип угоди:
Оренда
Розмір мінімального кроку:
40.00 ₴
Розмір гарантійного внеску:
300.52 ₴
Початок прийому пропозицій:
30.03.2022 20:02:51
Завершення прийому пропозицій:
28.04.2022 20:00:00
Лот:
UA-PS-2022-03-30-000065-3
№ лоту (УТК):
UTK070721_10Т
Лот виставляється на торги (раз):
9
Стислий опис майна:
Пропонуються до оренди приміщення 3-го поверху. Будівля знаходиться в центральній частині населеного пункту. Високі пішохідний та транспортний потоки. Характеристики: • кількість поверхів – 3 • опалення газове • земельна ділянка – 0,1126 га (договір оренди)
Адреса місцезнаходження майна:
Україна, Івано-Франківська обл., Рожнятів, площа Єдності, 9
Схожі пропозиції
м. Івано-Франківськ, вул. В.Симоненка, 1.Оренда – приміщення 1-го поверху, площею 17,6 м.кв.(П)
1 161.60 грн
66.00 грн / м2
Приміщення
м. Івано-Франківськ, вул. В.Симоненка, 1.Оренда – приміщення 1-го поверху, площею 17,6 м.кв.(П)
Україна, Івано-Франківська обл., Івано-Франківськ, вул. В.Симоненка, 1
Івано-Франківська обл., смт. Верховина, вул. Франка, 6. Оренда – Приміщення 2-го поверху 10,8 кв.м.
200.88 грн
18.60 грн / м2
Приміщення
Івано-Франківська обл., смт. Верховина, вул. Франка, 6. Оренда – Приміщення 2-го поверху 10,8 кв.м.
Україна, Івано-Франківська обл., смт. Верховина, вул. Франка, 6
28.02.2024
Івано-Франківська обл., Івано-Франківський р-н, смт. Солотвин, вул. Чорновола, 9;  Оренда – приміщення гаражів-складів, площею 27,2 м.кв (В)
489.60 грн
18.00 грн / м2
Приміщення
Івано-Франківська обл., Івано-Франківський р-н, смт. Солотвин, вул. Чорновола, 9; Оренда – приміщення гаражів-складів, площею 27,2 м.кв (В)
Україна, Івано-Франківська обл., Солотвин, вулиця Чорновола, 9
Івано-Франківська обл., Косівський р-н, с.Стопчатів, вул.Центральна, 3а. Оренда – Приміщення 1-го поверху, площею 169,9 м.кв. (В)
2 421.08 грн
14.25 грн / м2
Приміщення
Івано-Франківська обл., Косівський р-н, с.Стопчатів, вул.Центральна, 3а. Оренда – Приміщення 1-го поверху, площею 169,9 м.кв. (В)
Україна, Івано-Франківська обл., Косівський р-н, с.Стопчатів, вул.Центральна, 3а
Переглянуті пропозиції
Рівненська обл., м. Корець, вул. Київська, 67а. Оренда – приміщення 2-го поверху
724.79 грн
11.98 грн / м2
Приміщення
Рівненська обл., м. Корець, вул. Київська, 67а. Оренда – приміщення 2-го поверху
Україна, Рівненська обл., м. Корець, вул. Київська, буд. 67а
05.09.2023
Полтавська обл., м. Решетилівка, вул. Старокиївська, 2. Оренда – приміщення 1-го поверху площею 30,70 кв.м. (В)
686.45 грн
8.00 грн / м2
Приміщення
Полтавська обл., м. Решетилівка, вул. Старокиївська, 2. Оренда – приміщення 1-го поверху площею 30,70 кв.м. (В)
Україна, Полтавська обл., м. Решетилівка, вул. Старокиївська, 2
17.06.2025
Київська обл., Броварський р-н, м. Березань, вул. Героїв Небесної Сотні, 12. Оренда – 3-й поверх, площею 716,30 кв.м (В)
23 878.58 грн
33.34 грн / м2
Приміщення
Київська обл., Броварський р-н, м. Березань, вул. Героїв Небесної Сотні, 12. Оренда – 3-й поверх, площею 716,30 кв.м (В)
Україна, Київська обл., Березань, 07541, Київська обл., Броварський р-н, м. Березань, вул. Героїв Небесної Сотні, 12