м. Київ, вул. Дегтярівська, 28-А. Оренда – приміщення 1-го поверху площею 115,95 кв.м. (В)

37 359.09 грн
322.20 грн / м2
Україна, м.Київ, Київ, вул. Дегтярівська, 28-А
Перейти до аукціону на сайті
  • Інформація
  • Опис
  • Документи
Дата оголошення пропозиції:
27 квітня 2022
Площа:
115.95 м2
Тип об’єкта:
Приміщення
Тип аукціону:
Англійський аукціон
Статус аукціону:
Аукціон не відбувся
Тип угоди:
Оренда
Розмір мінімального кроку:
375.00 ₴
Розмір гарантійного внеску:
22 415.45 ₴
Початок прийому пропозицій:
27.04.2022 14:22:08
Завершення прийому пропозицій:
30.05.2022 20:00:00
Лот:
UA-PS-2022-04-27-000014-2
№ лоту (УТК):
UTK270422_02T
Лот виставляється на торги (раз):
1
Стислий опис майна:
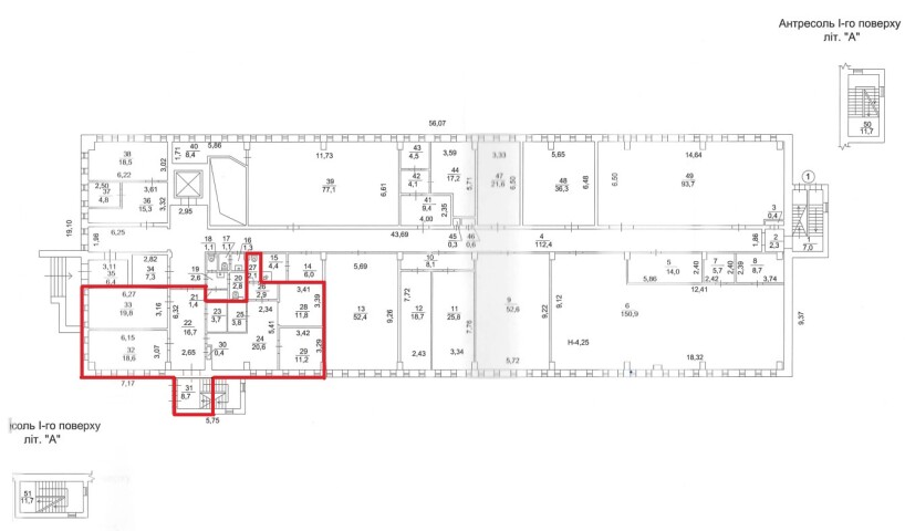
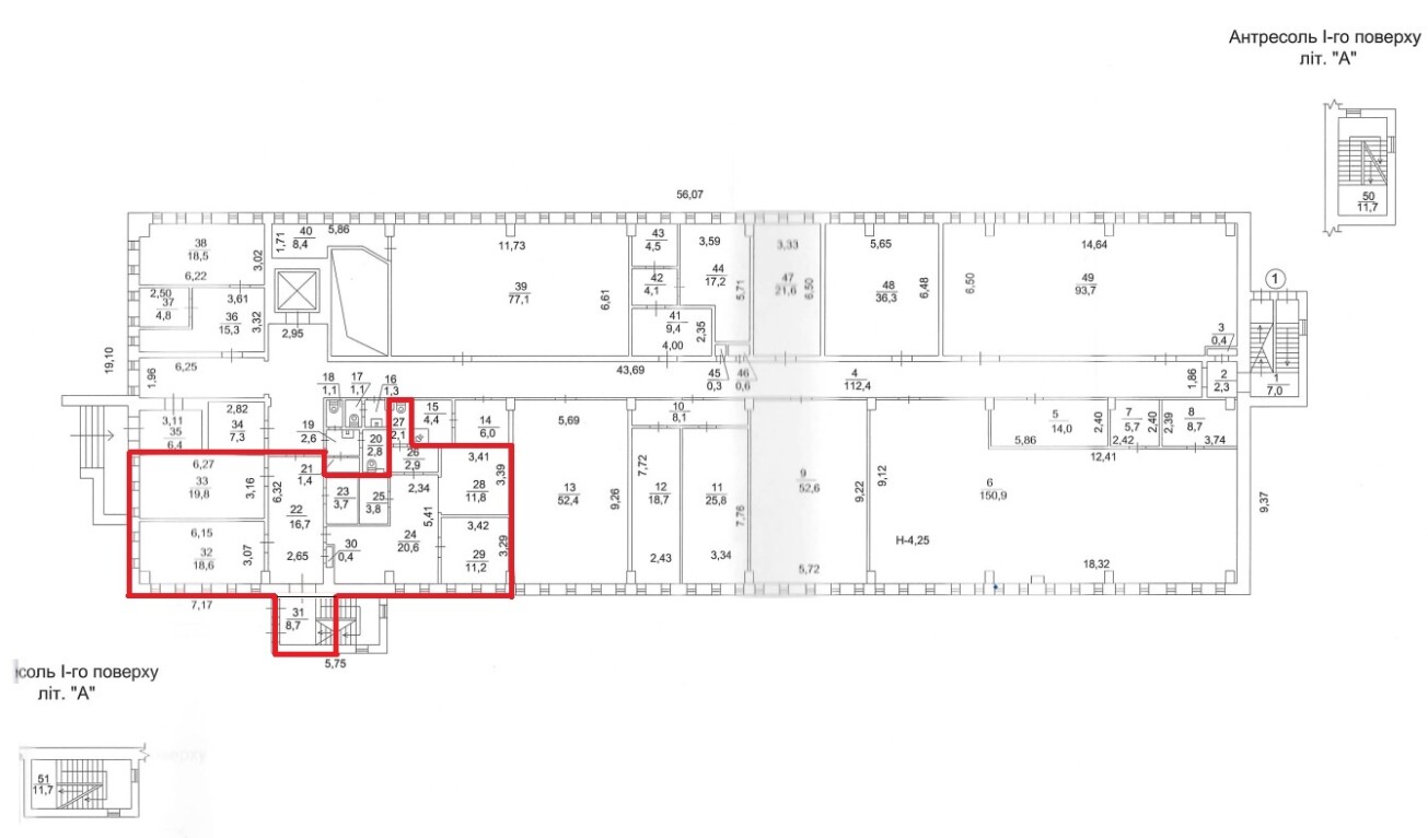
Пропонуються до оренди приміщення 1-го поверху, площею 115,95 м2 . Будівля розташована в Шевченківському районі міста Києва, місцевості Лук'янівка, Сирець, Шулявка. Поруч розвинена інфраструктура, супермаркети, бізнес-центри, зупинки маршрутного транспорту. Найближчі ст. метро «Лук’янівська», «Берестейська». Вхід з двору. Доступ 24/7. Характеристики • загальна площа будівлі – 4710,20 м2 ; • сан. вузол, каналізація, водопостачання – присутне; • кількість поверхів – 4; • опалення централізоване (міське); • площа земельної ділянки – 0,3913 га*; *земельна ділянка не є предметом оренди
Адреса місцезнаходження майна:
Україна, м.Київ, Київ, вул. Дегтярівська, 28-А
Схожі пропозиції
13.09.2022
м. Київ, вул. Джона Маккейна, №40 , Оренда – приміщення підвалу, площею 44,26 м2 , (В)
12 841.60 грн
290.53 грн / м2
Приміщення
м. Київ, вул. Джона Маккейна, №40 , Оренда – приміщення підвалу, площею 44,26 м2 , (В)
Україна, м.Київ, Київ, вулиця Джона Маккейна, 40
11.05.2023
м. Київ, вул. Джона Маккейна, №40 , Оренда – приміщення підвалу, площею 44,26 м2 , (В)
7 338.31 грн
166.03 грн / м2
Приміщення
м. Київ, вул. Джона Маккейна, №40 , Оренда – приміщення підвалу, площею 44,26 м2 , (В)
Україна, м.Київ, Київ, вулиця Джона Маккейна, 40
21.10.2025
м. Київ, вул. Салютна, 5-А, літ. «Б» (В). Оренда – приміщення 3-го та 4-го поверху, площею 992,80 м2
59 568.00 грн
60.00 грн / м2
Приміщення
м. Київ, вул. Салютна, 5-А, літ. «Б» (В). Оренда – приміщення 3-го та 4-го поверху, площею 992,80 м2
Україна, м.Київ, Київ, вул. Салютна, 5-А, літ. «Б»
15.08.2023
ДОВГОСТРОКОВА ОРЕНДА! 04111, м. Київ, вул. Салютна, 5-А, літ. «Б» Оренда – приміщення 2-го та 3-го поверхів, площею 1048,2 м2 (В)