м. Київ, вул. Будівельників, 8-Б, оренда – приміщення підвалу, площею 452,60 кв.м. (В)

20 910.12 грн
46.20 грн / м2
Україна, м.Київ, Київ, вул. Будівельників, 8-Б
Перейти до аукціону на сайті
  • Інформація
  • Опис
  • Документи
Дата оголошення пропозиції:
23 травня 2022
Площа:
452.60 м2
Тип об’єкта:
Приміщення
Тип аукціону:
Англійський аукціон
Статус аукціону:
Аукціон не відбувся
Тип угоди:
Оренда
Розмір мінімального кроку:
300.00 ₴
Розмір гарантійного внеску:
12 546.07 ₴
Початок прийому пропозицій:
23.05.2022 16:20:40
Завершення прийому пропозицій:
23.06.2022 20:00:00
Лот:
UA-PS-2022-05-23-000023-1
№ лоту (УТК):
UTK020721_01Т
Лот виставляється на торги (раз):
10
Стислий опис майна:
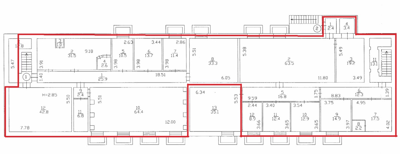
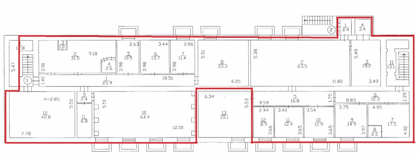
Пропонуються до оренди приміщення 2-го поверху, площею 452,60 м2. Будівля знаходиться у Дніпровському районі міста Києва, місцевість Соцмісто. Поруч розвинена інфраструктура, зупинки маршрутного транспорту, супермаркети, кафе, аптеки, фінансові заклади, зарядна станція UTrecharge Charging Station, в’їзд через майданчик з парко-місцями. Вхід з двору. Доступ 24/7. Характеристики: • кількість поверхів – 3; • опалення централізоване (міське); • земельна ділянка – 0,4851 га*; • загальна площа будівлі – 2022,70 м2; • сан. вузол, каналізація, водопостачання – відсутні; • дозволена потужність – 60 кВт; *земельна ділянка не є предметом оренди.
Адреса місцезнаходження майна:
Україна, м.Київ, Київ, вул. Будівельників, 8-Б
Схожі пропозиції
м. Київ, вул. Володимирська, 10, літ. «А1». Оренда – приміщення підвалу, площею 18,30 кв.м. (П)
2 657.16 грн
145.20 грн / м2
Приміщення
м. Київ, вул. Володимирська, 10, літ. «А1». Оренда – приміщення підвалу, площею 18,30 кв.м. (П)
Україна, м.Київ, м. Київ, вул. Володимирська, 10
21.12.2022
м. Київ, вул. Джона Маккейна, №40 , Оренда – приміщення підвалу, площею 44,26 м2 , (В)
7 338.31 грн
166.03 грн / м2
Приміщення
м. Київ, вул. Джона Маккейна, №40 , Оренда – приміщення підвалу, площею 44,26 м2 , (В)
Україна, м.Київ, Київ, вулиця Джона Маккейна, 40
19.09.2023
м. Київ, бульвар Бучми Амвросія, 5. Оренда – приміщення 3-го та 4-го поверхів технічної будівлі АТС-550 (літ. «Б»), площею 1006,83 кв. м. (В)