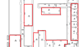
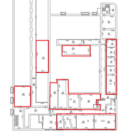
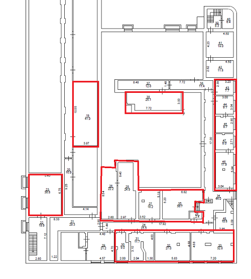
Рівненська обл., м. Рівне вул.Соборна,56. Оренда – цокольні приміщення загальною площею 334,1 м.кв. (В)

19 772.04 грн
59.18 грн / м2
Україна, Рівненська обл., м. Рівне, вул.Соборна,56
Перейти до аукціону на сайті
  • Інформація
  • Опис
  • Документи
Дата оголошення пропозиції:
25 травня 2022
Площа:
334.10 м2
Тип об’єкта:
Приміщення
Тип аукціону:
Англійський аукціон
Статус аукціону:
Аукціон не відбувся
Тип угоди:
Оренда
Розмір мінімального кроку:
500.00 ₴
Розмір гарантійного внеску:
11 863.22 ₴
Початок прийому пропозицій:
25.05.2022 12:57:15
Завершення прийому пропозицій:
28.06.2022 20:00:00
Лот:
UA-PS-2022-05-25-000011-2
№ лоту (УТК):
UTK040222_22P
Лот виставляється на торги (раз):
4
Стислий опис майна:
Пропонується до оренди цокольні приміщення загальною площею 334,1 м. кв. Будівля знаходиться в центральній частині міста. Розвинена інфраструктура, високі автомобільний та пішохідний потоки. Поряд центральна площа та міський парк. Окремий вхід відсутній. Потребує реконструкції електромережі. Характеристики: Кількість поверхів – 3; Загальна площа – 4240 м. кв.; Площа, запропонована до оренди – 334,1 м. кв.; Опалення – централізоване; Земельна ділянка - площа 0,2097 га. (договір оренди)
Адреса місцезнаходження майна:
Україна, Рівненська обл., м. Рівне, вул.Соборна,56
Схожі пропозиції
21.06.2024
Рівненська обл., Рівненський р-н., с. Вітковичі, вул. Ковальська, 1. Оренда – частина приміщення одноповерхової будівлі, площею 10,8 кв.м. (В)
270.00 грн
25.00 грн / м2
Приміщення
Рівненська обл., Рівненський р-н., с. Вітковичі, вул. Ковальська, 1. Оренда – частина приміщення одноповерхової будівлі, площею 10,8 кв.м. (В)
Україна, Рівненська обл., Рівненський р-н., с. Вітковичі, вул. Ковальська, 1
Рівненська обл., м. Рівне вул.Соборна,56. Оренда – приміщення 3-го поверху площею 482,6 кв.м. (В)
45 470.57 грн
94.22 грн / м2
Приміщення
Рівненська обл., м. Рівне вул.Соборна,56. Оренда – приміщення 3-го поверху площею 482,6 кв.м. (В)
Україна, Рівненська обл., м. Рівне , вул.Соборна,56
01.11.2023
Рівненська обл., Варашський р-н, с. Дібрівськ, вул.Центральна, 1. Оренда – приміщення 1 поверху площею 25,5 кв. м. (В)
250.50 грн
9.82 грн / м2
Приміщення
Рівненська обл., Варашський р-н, с. Дібрівськ, вул.Центральна, 1. Оренда – приміщення 1 поверху площею 25,5 кв. м. (В)
Україна, Рівненська обл., Варашський р-н, с. Дібрівськ, вул.Центральна, 1
03.04.2024
Рівненська обл., Вараський р-н, с. Більська Воля, вул. Шкільна, 14;    Оренда – нежитлові приміщення площею 62,8 кв.м. (В)
581.53 грн
9.26 грн / м2
Приміщення
Рівненська обл., Вараський р-н, с. Більська Воля, вул. Шкільна, 14; Оренда – нежитлові приміщення площею 62,8 кв.м. (В)
Україна, Рівненська обл., Більська Воля, вулиця Шкільна, 14
Переглянуті пропозиції
21.07.2023
Рівненська обл., Вараський р-н, с. Мульчиці, вул. Центральна, 16. Оренда – нежитлові приміщення 25,3 кв.м. (П)
1 346.72 грн
53.23 грн / м2
Приміщення
Рівненська обл., Вараський р-н, с. Мульчиці, вул. Центральна, 16. Оренда – нежитлові приміщення 25,3 кв.м. (П)
Україна, Рівненська обл., Вараський р-н, с. Мульчиці, вул. Центральна, 16
21.10.2025
Рівненська обл., Вараський р-н, с. Більська Воля, вул. Шкільна, 14. Оренда – нежитлові приміщення площею 62,8 кв.м. (В)
753.60 грн
12.00 грн / м2
Приміщення
Рівненська обл., Вараський р-н, с. Більська Воля, вул. Шкільна, 14. Оренда – нежитлові приміщення площею 62,8 кв.м. (В)
Україна, Рівненська обл., Більська Воля, вулиця Шкільна, 14