Рівненська обл., м. Рівне, вул. Соборна, 271. Оренда – приміщення 2-го поверху площею 430,5 кв.м. (В)

44 220.96 грн
102.72 грн / м2
Україна, Рівненська обл., м. Рівне, вул. Соборна, 271
Перейти до аукціону на сайті
  • Інформація
  • Опис
  • Документи
Дата оголошення пропозиції:
27 травня 2022
Площа:
430.50 м2
Тип об’єкта:
Приміщення
Тип аукціону:
Англійський аукціон
Статус аукціону:
Аукціон не відбувся
Тип угоди:
Оренда
Розмір мінімального кроку:
1 000.00 ₴
Розмір гарантійного внеску:
26 532.58 ₴
Початок прийому пропозицій:
27.05.2022 11:26:15
Завершення прийому пропозицій:
30.06.2022 20:00:00
Лот:
UA-PS-2022-05-27-000038-3
№ лоту (УТК):
UTK270522_06P
Лот виставляється на торги (раз):
1
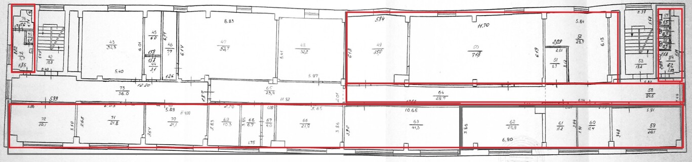
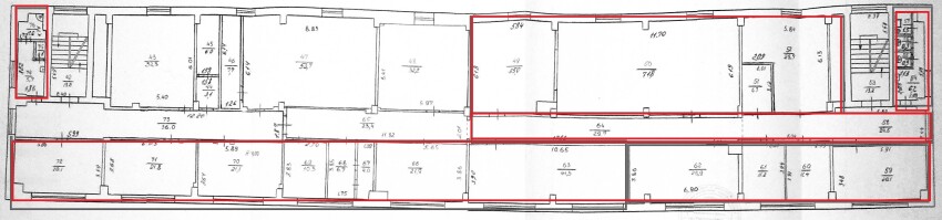
Стислий опис майна:
Пропонуються до оренди приміщення 2-го поверху загальною площею 430,5 кв.м. Будівля знаходиться на околиці міста. Розвинена інфраструктура, досить високі автомобільний та пішохідний потоки. Поряд парк , стоянка для автомобілів . Приміщення потребують реконструкції електромережі. Характеристики: Кількість поверхів – 4 ; Загальна площа – 2647 кв.м.; Площа, запропонована до оренди – 430,5 кв.м.; Опалення – централізоване; Земельна ділянка - площа 0,482 га. (договір оренди)
Адреса місцезнаходження майна:
Україна, Рівненська обл., м. Рівне, вул. Соборна, 271
Схожі пропозиції
23.07.2025
Довгострокова м. Рівне, вул. Міцкевича,2 Оренда – приміщення 4-го поверху площею 865,60 кв.м   (В)
92 324.90 грн
106.66 грн / м2
Приміщення
Довгострокова м. Рівне, вул. Міцкевича,2 Оренда – приміщення 4-го поверху площею 865,60 кв.м (В)
Україна, Рівненська обл., Рівне, вулиця Міцкевича, 2
14.09.2022
Рівненська обл., м. Дубровиця, вул. Шевченка, 53. Оренда – приміщення 2-го поверху площею 91,8 кв.м. (В)
962.06 грн
10.48 грн / м2
Приміщення
Рівненська обл., м. Дубровиця, вул. Шевченка, 53. Оренда – приміщення 2-го поверху площею 91,8 кв.м. (В)
Україна, Рівненська обл., м. Дубровиця, вул. Шевченка, 53
07.11.2024
Рівненська обл., Рівненський р-н., м. Здолбунів, вул. Б.Хмельницького, 7. Оренда – приміщення підвалу, 2 поверху та надвірної будівлі загальною площею 661,4 кв.м. (В)
8 928.90 грн
13.50 грн / м2
Приміщення
Рівненська обл., Рівненський р-н., м. Здолбунів, вул. Б.Хмельницького, 7. Оренда – приміщення підвалу, 2 поверху та надвірної будівлі загальною площею 661,4 кв.м. (В)
Україна, Рівненська обл., Рівненський р-н., м. Здолбунів, вул. Б.Хмельницького, 7
03.04.2024
Рівненська обл., Дубенський р-н., смт. Демидівка, вул. Миру, 28. Оренда – складські приміщення 1 поверху площею 128 м. кв. (В)
2 264.32 грн
17.69 грн / м2
Приміщення
Рівненська обл., Дубенський р-н., смт. Демидівка, вул. Миру, 28. Оренда – складські приміщення 1 поверху площею 128 м. кв. (В)
Україна, Рівненська обл., Дубенський р-н., смт. Демидівка, вул. Миру, 28
Переглянуті пропозиції
17.11.2023
Полтавська обл., Миргородський р-н., смт. Шишаки, вул. Корніліча, буд.10. Оренда – приміщення 2-го поверху площею 187,70 кв.м. (В)
1 535.39 грн
8.18 грн / м2
Приміщення
Полтавська обл., Миргородський р-н., смт. Шишаки, вул. Корніліча, буд.10. Оренда – приміщення 2-го поверху площею 187,70 кв.м. (В)
Україна, Полтавська обл., Миргородський р-н., смт. Шишаки, вул. Корніліча, буд.10