Рівненська обл., м. Рівне вул. Міцкевича, 2. Оренда – приміщення 3-го поверху, площею 108,2 м. кв. (В)

6 442.23 грн
59.54 грн / м2
Україна, Рівненська обл., м. Рівне , вул. Міцкевича, 2
Перейти до аукціону на сайті
  • Інформація
  • Опис
  • Документи
Дата оголошення пропозиції:
01 червня 2022
Площа:
108.20 м2
Тип об’єкта:
Приміщення
Тип аукціону:
Англійський аукціон
Статус аукціону:
Аукціон не відбувся
Тип угоди:
Оренда
Розмір мінімального кроку:
100.00 ₴
Розмір гарантійного внеску:
3 865.34 ₴
Початок прийому пропозицій:
01.06.2022 14:11:33
Завершення прийому пропозицій:
05.07.2022 20:00:00
Лот:
UA-PS-2022-06-01-000002-1
№ лоту (УТК):
UTK130122_32P
Лот виставляється на торги (раз):
5
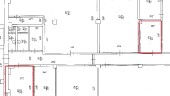
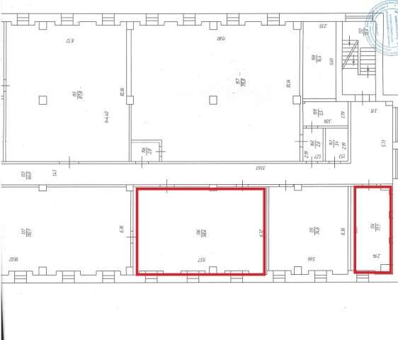
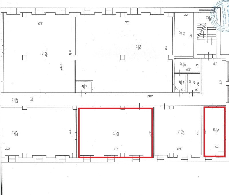
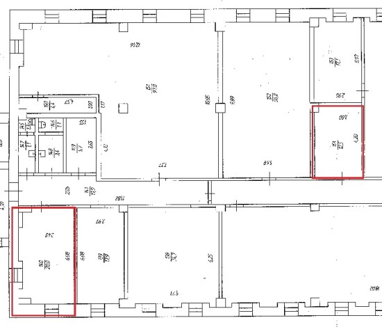
Стислий опис майна:
Пропонуються до оренди приміщення 3-го поверху загальною площею 108,2 м. кв. Будівля знаходиться в центральній частині міста. Розвинена інфраструктура, високі автомобільний та пішохідний потоки. Поряд стоянка для автомобілів, центральна площа. Приміщення потребують реконструкції електромережі. Характеристики: Кількість поверхів – 5; Загальна площа – 5671,6 м. кв ; Площа, запропонована до оренди – 108,2 м.кв. ; Опалення – централізоване; Земельна ділянка - площа 0,4563 га. (договір оренди)
Адреса місцезнаходження майна:
Україна, Рівненська обл., м. Рівне , вул. Міцкевича, 2
Схожі пропозиції
Рівненська обл., м. Вараш, м-н Незалежності, 4. Оренда – приміщення 2 поверху площею 186 кв.м. (В)
9 106.56 грн
48.96 грн / м2
Приміщення
Рівненська обл., м. Вараш, м-н Незалежності, 4. Оренда – приміщення 2 поверху площею 186 кв.м. (В)
Україна, Рівненська обл., м. Вараш, м-н Незалежності, 4
26.08.2025
Рівненська обл., м. Рівне вул. Вишиванка,37.Оренда – приміщення 4-го поверху загальною площею 363,20 м.кв. (В)
23 255.70 грн
64.03 грн / м2
Приміщення
Рівненська обл., м. Рівне вул. Вишиванка,37.Оренда – приміщення 4-го поверху загальною площею 363,20 м.кв. (В)
Україна, Рівненська обл., Рівне, 33028 Рівненська обл., м. Рівне, вул. Вишиванка,37
Рівненська обл., м. Рівне вул. В. Чорновола, 1. Оренда – підвальні приміщення загальною площею 261,7 м.кв. (В)
22 139.82 грн
84.60 грн / м2
Приміщення
Рівненська обл., м. Рівне вул. В. Чорновола, 1. Оренда – підвальні приміщення загальною площею 261,7 м.кв. (В)
Україна, Рівненська обл., м. Рівне , вул. В. Чорновола, 1
Рівненська обл., смт. Зарічне, вул. Центральна, 6а. Оренда – приміщення 3-го поверху площею 80,80 кв.м. (В)
2 647.01 грн
32.76 грн / м2
Приміщення
Рівненська обл., смт. Зарічне, вул. Центральна, 6а. Оренда – приміщення 3-го поверху площею 80,80 кв.м. (В)
Україна, Рівненська обл., смт. Зарічне, вул. Центральна, 6а