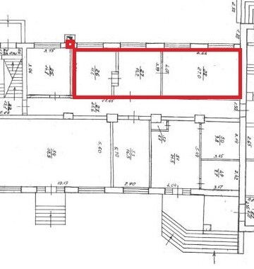
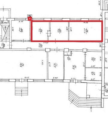
Рівненська обл., Вараський р-н. смт. Володимирець вул. Поштова, 23. Оренда – приміщення 1-го поверху площею 52,8 кв.м. (В)

1 172.16 грн
22.20 грн / м2
Україна, Рівненська обл., Вараський р-н. смт. Володимирець , вул. Поштова ,23
Перейти до аукціону на сайті
  • Інформація
  • Опис
  • Документи
Дата оголошення пропозиції:
03 червня 2022
Площа:
52.80 м2
Тип об’єкта:
Приміщення
Тип аукціону:
Англійський аукціон
Статус аукціону:
Аукціон не відбувся
Тип угоди:
Оренда
Розмір мінімального кроку:
50.00 ₴
Розмір гарантійного внеску:
703.30 ₴
Початок прийому пропозицій:
03.06.2022 12:05:48
Завершення прийому пропозицій:
06.07.2022 20:00:00
Лот:
UA-PS-2022-06-03-000021-1
№ лоту (УТК):
UTK020721_11P
Лот виставляється на торги (раз):
10
Стислий опис майна:
Пропонується до оренди приміщення 1-го поверху, площею 52,8 м.кв. Будівля знаходиться в центральній частині смт. , розвинена інфраструктура, поряд відділення Укрпошти, магазини та адміністративні приміщення. Територія огороджена та частково впорядкована. Характеристики: Кількість поверхів – 2; Загальна площа – 1183,4 м.кв.; Площа, запропонована до оренди – 52,8 м.кв.; Земельна ділянка - площа 0,2703 га.
Адреса місцезнаходження майна:
Україна, Рівненська обл., Вараський р-н. смт. Володимирець , вул. Поштова ,23
Схожі пропозиції
м. Рівне вул. Боярка, 54б. Оренда приміщення теплиці площею 210,80 кв.м. (В)
2 061.62 грн
9.78 грн / м2
Приміщення
м. Рівне вул. Боярка, 54б. Оренда приміщення теплиці площею 210,80 кв.м. (В)
Україна, Рівненська обл., м. Рівне, вул. Боярка, 54б
07.10.2025
Рівненська обл., м. Рівне вул. Вишиванка,37.Оренда – приміщення 4-го поверху загальною площею 363,20 м.кв. (В)
19 394.88 грн
53.40 грн / м2
Приміщення
Рівненська обл., м. Рівне вул. Вишиванка,37.Оренда – приміщення 4-го поверху загальною площею 363,20 м.кв. (В)
Україна, Рівненська обл., Рівне, 33028 Рівненська обл., м. Рівне, вул. Вишиванка,37
Рівненська обл., м. Рівне, вул. Міцкевича, 2. Оренда – приміщення 2-го  поверху загальною площею 735,90 кв.м. (В)
76 739.65 грн
104.28 грн / м2
Приміщення
Рівненська обл., м. Рівне, вул. Міцкевича, 2. Оренда – приміщення 2-го поверху загальною площею 735,90 кв.м. (В)
Україна, Рівненська обл., м. Рівне, вул. Міцкевича, 2
23.02.2024
Рівненська обл., Рівненський р-н, с. Річиця, вул. Центральна, 5. Оренда – приміщення 1-го поверху площею 19,30 м.кв. (В)
250.90 грн
13.00 грн / м2
Приміщення
Рівненська обл., Рівненський р-н, с. Річиця, вул. Центральна, 5. Оренда – приміщення 1-го поверху площею 19,30 м.кв. (В)
Україна, Рівненська обл., Рівненський р-н, с. Річиця, вул. Центральна, 5
Переглянуті пропозиції
17.11.2023
м.Харків, вул.Конторська,14;     Оренда–приміщення 2-го поверху площею 13,7 кв.м (В)
949.41 грн
69.30 грн / м2
Приміщення
м.Харків, вул.Конторська,14; Оренда–приміщення 2-го поверху площею 13,7 кв.м (В)
Україна, Харківська обл., Харків, вулиця Конторська, 14
21.08.2024
м. Харків, пр-т. Г. Сталінграду, 3. Оренда – приміщення 3-го поверху площею 344,7 кв.м. (В)
18 820.62 грн
54.60 грн / м2
Приміщення
м. Харків, пр-т. Г. Сталінграду, 3. Оренда – приміщення 3-го поверху площею 344,7 кв.м. (В)
Україна, Харківська обл., м. Харків, пр-т. Г. Сталінграду, 3
23.01.2024
Дніпропетровська обл., м. Кривий Ріг, вул. Водоп`янова, 1а;  Оренда – приміщення 4-го поверху, площею 789,8 кв.м. (В)
7 108.20 грн
9.00 грн / м2
Приміщення
Дніпропетровська обл., м. Кривий Ріг, вул. Водоп`янова, 1а; Оренда – приміщення 4-го поверху, площею 789,8 кв.м. (В)
Україна, Дніпропетровська обл., Кривий Ріг, вулиця Водоп'янова, 1а
15.09.2023
Рівненська обл., Рівненський р-н, с.Тучин, вул.Поштова, 4. Оренда – виробничі приміщення загальною площею 243,1 кв.м. (В)
3 882.31 грн
15.97 грн / м2
Приміщення
Рівненська обл., Рівненський р-н, с.Тучин, вул.Поштова, 4. Оренда – виробничі приміщення загальною площею 243,1 кв.м. (В)
Україна, Рівненська обл., Рівненський р-н, с.Тучин, вул.Поштова, 4