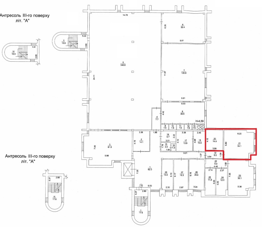
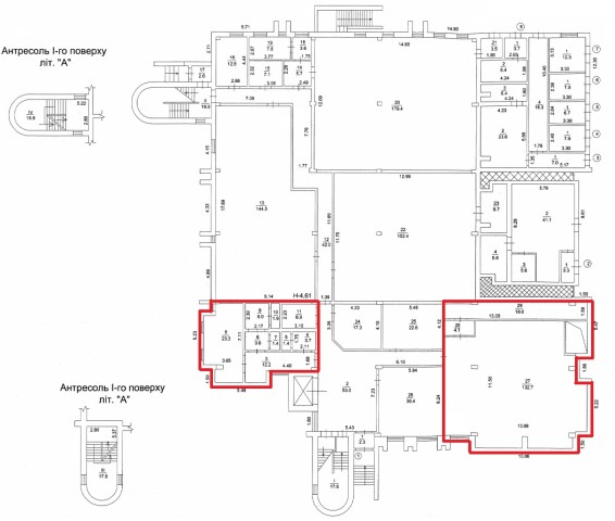
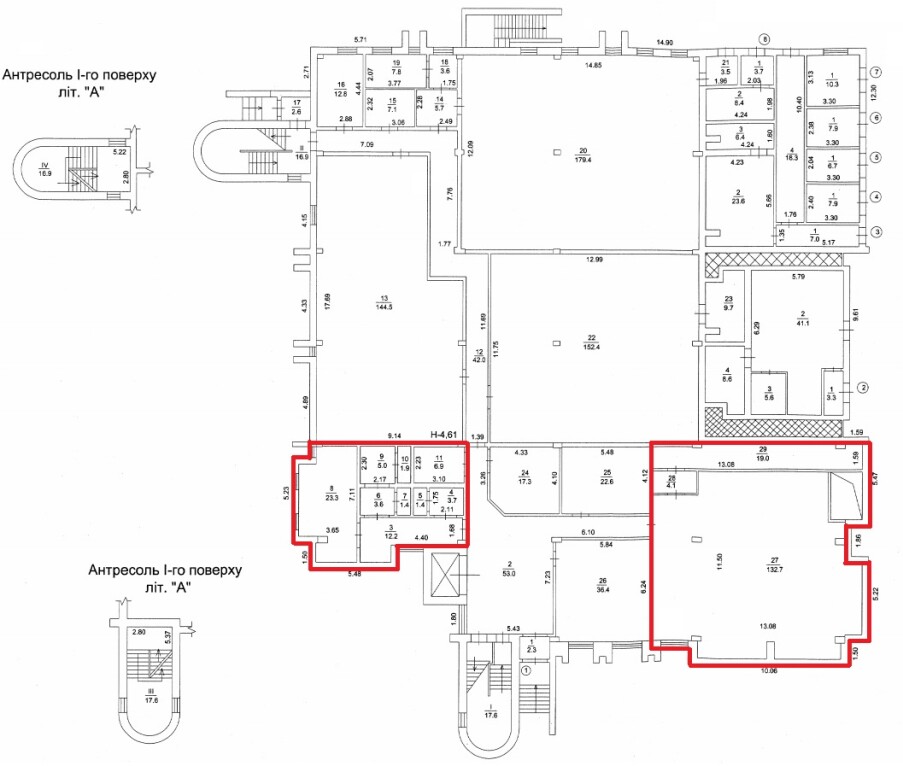
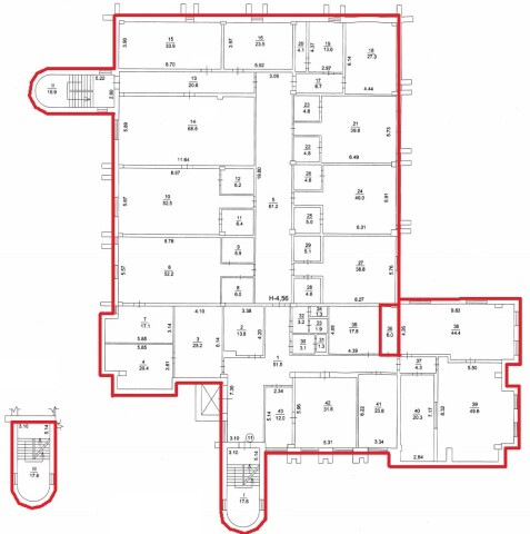
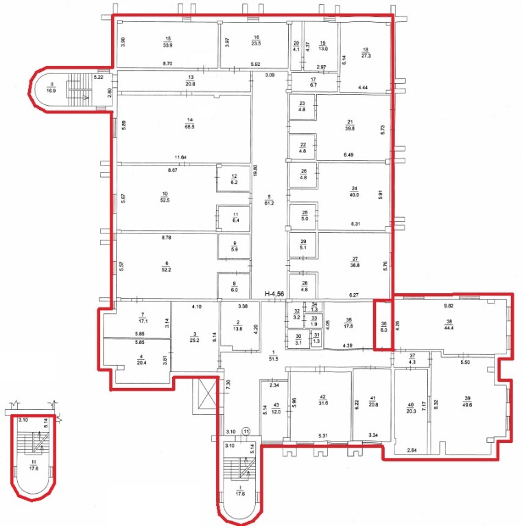
м. Київ, вул. Архітектора Вербицького, 3. Оренда – Приміщення 1-го, 3-го, 4-го поверхів, площею 1191,50 м2 (В)

55 047.30 грн
46.20 грн / м2
Україна, м.Київ, Київ, вул. Архітектора Вербицького, 3
Перейти до аукціону на сайті
  • Інформація
  • Опис
  • Документи
Дата оголошення пропозиції:
07 липня 2022
Площа:
1191.50 м2
Тип об’єкта:
Приміщення
Тип аукціону:
Англійський аукціон
Статус аукціону:
Аукціон не відбувся
Тип угоди:
Оренда
Розмір мінімального кроку:
600.00 ₴
Розмір гарантійного внеску:
33 028.38 ₴
Початок прийому пропозицій:
07.07.2022 12:52:55
Завершення прийому пропозицій:
04.08.2022 20:00:00
Проведення аукціону:
05.08.2022 14:19:35
Лот:
UA-PS-2022-07-07-000027-1
№ лоту (УТК):
UTK080222_02T
Лот виставляється на торги (раз):
5
Стислий опис майна:
Пропонується до оренди приміщення 1-го, 3-го, 4-го поверхів площею 1191,50 м2. Будівля знаходиться в Дарницькому районі міста Києва, житловий масив Харківський. Зупинки маршрутного транспорту, супермаркети, торгово-розважальні центри. Найближчі станції метро «Харківська», «Вирлиця». Характеристики: • загальна площа будівлі – 4804,70 м2; • кількість поверхів – 5; • опалення централізоване (міське); • земельна ділянка – 0,5530 га; • каналізація, водозабезпечення, сан. вузол – присутні;
Адреса місцезнаходження майна:
Україна, м.Київ, Київ, вул. Архітектора Вербицького, 3
Схожі пропозиції
31.07.2025
м. Київ, вул. Дегтярівська, 28А, літ. «А» (Шевченківський р-н). Оренда – приміщення на 1-му поверсі, площею – 35,20 кв.м (В)
4 536.58 грн
128.88 грн / м2
Приміщення
м. Київ, вул. Дегтярівська, 28А, літ. «А» (Шевченківський р-н). Оренда – приміщення на 1-му поверсі, площею – 35,20 кв.м (В)
Україна, м.Київ, Київ, 04119, м. Київ, вул. Дегтярівська, 28А, літ. «А» (Шевченківський р-н
21.10.2025
Довгострокова оренда! м. Київ, вул. Петра Курінного, 2-Б. Оренда – 3-й поверх, площею - 614,80 кв. м. (В)
36 888.00 грн
60.00 грн / м2
Приміщення
Довгострокова оренда! м. Київ, вул. Петра Курінного, 2-Б. Оренда – 3-й поверх, площею - 614,80 кв. м. (В)
Україна, м.Київ, Київ, вулиця Петра Курінного, 2б
18.10.2022
м. Київ, вул. Джона Маккейна, №40 , Оренда – приміщення підвалу, площею 44,26 м2 , (В)
11 007.02 грн
249.03 грн / м2
Приміщення
м. Київ, вул. Джона Маккейна, №40 , Оренда – приміщення підвалу, площею 44,26 м2 , (В)
Україна, м.Київ, Київ, вулиця Джона Маккейна, 40
16.08.2022
м. Київ, вул. Володимирська, 10 Оренда – Приміщення 1-го поверху, площею 201,1 м2 (В)
43 236.50 грн
215.00 грн / м2
Приміщення
м. Київ, вул. Володимирська, 10 Оренда – Приміщення 1-го поверху, площею 201,1 м2 (В)
Україна, м.Київ, Київ, вул. Володимирська, 10
Переглянуті пропозиції
23.11.2022
Рівненська обл., смт. Володимирець вул. Поштова ,23. Оренда – приміщення 1-го поверху загальною площею 80,5 м.кв. (В)
1 787.10 грн
22.20 грн / м2
Приміщення
Рівненська обл., смт. Володимирець вул. Поштова ,23. Оренда – приміщення 1-го поверху загальною площею 80,5 м.кв. (В)
Україна, Рівненська обл., смт. Володимирець, вул. Поштова ,23
Рівненська обл., Рівненський р-н, с. Річиця, вул. Центральна, 5. Оренда – приміщення 1 поверху площею 19,3 м.кв. (В)
790.34 грн
40.95 грн / м2
Приміщення
Рівненська обл., Рівненський р-н, с. Річиця, вул. Центральна, 5. Оренда – приміщення 1 поверху площею 19,3 м.кв. (В)
Україна, Рівненська обл., с. Річиця, вул. Центральна, 5
11.09.2024
Волинська обл., Володимир-Волинський р-н, м.Нововолинськ, вул.Митрополита Шептицького, 6; Оренда – група приміщень 3-го поверху площею 79,20 кв.м. (В)
4 937.33 грн
62.34 грн / м2
Приміщення
Волинська обл., Володимир-Волинський р-н, м.Нововолинськ, вул.Митрополита Шептицького, 6; Оренда – група приміщень 3-го поверху площею 79,20 кв.м. (В)
Україна, Волинська обл., Нововолинськ, вул. Митрополита Шептицького, 6
Рівненська обл., м. Здолбунів, вул. Б. Хмельницького, 7.Оренда – приміщення підвалу, 2-го поверху та надвірної будівлі площею 661,4 кв.м.(В)
7 315.08 грн
11.06 грн / м2
Приміщення
Рівненська обл., м. Здолбунів, вул. Б. Хмельницького, 7.Оренда – приміщення підвалу, 2-го поверху та надвірної будівлі площею 661,4 кв.м.(В)
Україна, Рівненська обл., Здолбунів, вул. Б. Хмельницького, 7