Полтавська обл., Кременчуцький р-н., смт. Градизьк, вул. Героїв Дніпра, буд. 15. Оренда – частина будівлі площею 33,60 кв.м. (В)

499.63 грн
14.87 грн / м2
Україна, Полтавська обл., Градизьк, вул. Героїв Дніпра, буд. 15
Перейти до аукціону на сайті
  • Інформація
  • Опис
  • Документи
Дата оголошення пропозиції:
08 липня 2022
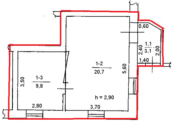
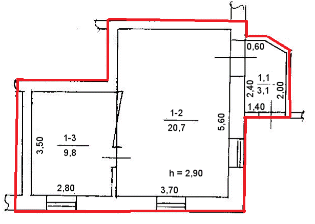
Площа:
33.60 м2
Тип об’єкта:
Будівля
Тип аукціону:
Англійський аукціон
Статус аукціону:
Аукціон не відбувся
Тип угоди:
Оренда
Розмір мінімального кроку:
10.00 ₴
Розмір гарантійного внеску:
299.78 ₴
Початок прийому пропозицій:
08.07.2022 14:54:17
Завершення прийому пропозицій:
08.08.2022 20:00:00
Проведення аукціону:
09.08.2022 15:13:46
Лот:
UA-PS-2022-07-08-000028-2
№ лоту (УТК):
UTK170721_03Т
Лот виставляється на торги (раз):
2
Стислий опис майна:
Пропонується до оренди частина будівлі площею 33,60 кв.м. в центрі смт. Градизьк. Окремий вхід. Характеристики • кількість поверхів – 1; • загальна площа – 33,60 кв.м.; • площа запропонована до оренди 33,60 кв.м.; • електропостачання - відсутнє; • опалення, водопостачання – відсутні; • земельна ділянка – 0, 0134 га (договір оренди ЗД).
Адреса місцезнаходження майна:
Україна, Полтавська обл., Градизьк, вул. Героїв Дніпра, буд. 15
Схожі пропозиції
18.11.2022
Полтавська обл., Полтавський р-н., смт. Диканька, вул. Полтавська, 29. Оренда – комплекс будівель площею 192,70 кв.м. (В)
1 634.10 грн
8.48 грн / м2
Будівля
Полтавська обл., Полтавський р-н., смт. Диканька, вул. Полтавська, 29. Оренда – комплекс будівель площею 192,70 кв.м. (В)
Україна, Полтавська обл., Полтавський р-н., смт. Диканька, вул. Полтавська, 29
Полтавська обл., Лубенський р-н, с. Засулля, вул. Молодіжна, буд. 20. Оренда - одноповерхова будівля
1 311.52 грн
6.91 грн / м2
Будівля
Полтавська обл., Лубенський р-н, с. Засулля, вул. Молодіжна, буд. 20. Оренда - одноповерхова будівля
Україна, Полтавська обл., Лубенський р-н, с. Засулля, вул. Молодіжна, буд. 20
30.04.2024
Полтавська обл., м. Полтава, провулок Латишева, буд. 11-А. Оренда – Частина будівлі площею 1287,60 кв.м. (В)
61 032.24 грн
47.40 грн / м2
Будівля
Полтавська обл., м. Полтава, провулок Латишева, буд. 11-А. Оренда – Частина будівлі площею 1287,60 кв.м. (В)
Україна, Полтавська обл., м. Полтава, провулок Латишева, буд. 11-А
Переглянуті пропозиції
14.06.2024
м. Київ, вул. Архітектора Вербицького, 3;   Оренда – приміщення 1-го та 3-го поверху площею 263,7 кв.м. (В)
25 251.91 грн
95.76 грн / м2
Приміщення
м. Київ, вул. Архітектора Вербицького, 3; Оренда – приміщення 1-го та 3-го поверху площею 263,7 кв.м. (В)
Україна, м.Київ, Київ, вул. Архітектора Вербицького, 3
26.11.2025
Харківська обл., м. Харків, вул. Старошишківська, 5-А. Оренда – приміщення на 1-му поверсі площею 35,90 кв.м. (В)
1 077.00 грн
30.00 грн / м2
Приміщення
Харківська обл., м. Харків, вул. Старошишківська, 5-А. Оренда – приміщення на 1-му поверсі площею 35,90 кв.м. (В)
Україна, Харківська обл., м. Харків, вул. Старошишківська, 5-А