м. Київ, вул. Дегтярівська, 28-А. Оренда – приміщення 3-го поверху площею 853,34 кв.м. (В)

109 978.46 грн
128.88 грн / м2
Україна, м.Київ, Київ, вул. Дегтярівська, 28-А
Перейти до аукціону на сайті
  • Інформація
  • Опис
  • Документи
Дата оголошення пропозиції:
08 липня 2022
Площа:
853.34 м2
Тип об’єкта:
Приміщення
Тип аукціону:
Англійський аукціон
Статус аукціону:
Аукціон не відбувся
Тип угоди:
Оренда
Розмір мінімального кроку:
1 100.00 ₴
Розмір гарантійного внеску:
65 987.08 ₴
Початок прийому пропозицій:
08.07.2022 15:39:29
Завершення прийому пропозицій:
08.08.2022 20:00:00
Проведення аукціону:
09.08.2022 15:03:30
Лот:
UA-PS-2022-07-08-000029-2
№ лоту (УТК):
UTK270422_03T
Лот виставляється на торги (раз):
3
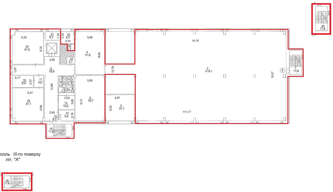
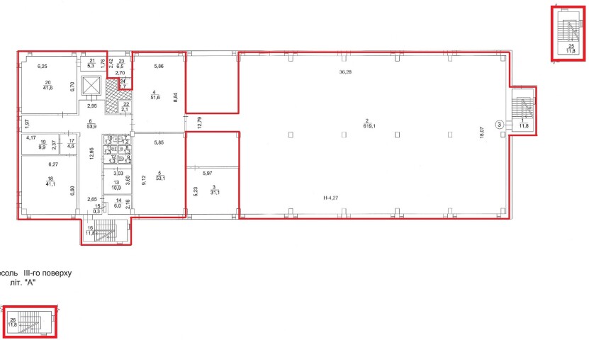
Стислий опис майна:
Пропонуються до оренди приміщення 3-го поверху, площею 853,34 м2 . Будівля розташована в Шевченківському районі міста Києва, місцевості Лук'янівка, Сирець, Шулявка. Поруч розвинена інфраструктура, супермаркети, бізнес-центри, зупинки маршрутного транспорту. Найближчі ст. метро «Лук’янівська», «Берестейська». Вхід з двору. Доступ 24/7. Характеристики • загальна площа будівлі – 4710,20 м2 ; • сан. вузол, каналізація, водопостачання – присутне; • кількість поверхів – 4; • опалення централізоване (міське); • площа земельної ділянки – 0,3913 га*; *земельна ділянка не є предметом оренди
Адреса місцезнаходження майна:
Україна, м.Київ, Київ, вул. Дегтярівська, 28-А
Схожі пропозиції
м. Київ, вул. Будівельників, 8-Б, оренда – приміщення підвалу, площею 452,60 кв.м. (В)
52 021.84 грн
114.94 грн / м2
Приміщення
м. Київ, вул. Будівельників, 8-Б, оренда – приміщення підвалу, площею 452,60 кв.м. (В)
Україна, м.Київ, Київ, вул. Будівельників, 8-Б
м. Київ, вул. Джона Маккейна, №40, оренда – приміщення 2-го поверху, площею 920,80 м2 (В)
305 576.69 грн
331.86 грн / м2
Приміщення
м. Київ, вул. Джона Маккейна, №40, оренда – приміщення 2-го поверху, площею 920,80 м2 (В)
Україна, м.Київ, Київ, вул. Джона Маккейна, 40
09.09.2025
м. Київ, вул. Василя Макуха (Шевченківський р-н), 5Оренда – приміщення цокольного поверху будівлі, площею 375,80 м. кв. (В)
44 956.95 грн
119.63 грн / м2
Приміщення
м. Київ, вул. Василя Макуха (Шевченківський р-н), 5Оренда – приміщення цокольного поверху будівлі, площею 375,80 м. кв. (В)
Україна, м.Київ, Київ, вулиця Василя Макуха, 5
08.06.2023
м. Київ, вул. Будівельників, 8-Б, оренда – приміщення підвалу, площею 452,6 кв.м. (В)
20 910.12 грн
46.20 грн / м2
Приміщення
м. Київ, вул. Будівельників, 8-Б, оренда – приміщення підвалу, площею 452,6 кв.м. (В)
Україна, м.Київ, Київ, вулиця Будівельників, 8Б