м. Київ, вул. Будівельників, 8-Б, оренда – приміщення підвалу, площею 452,60 кв.м. (В)

52 021.84 грн
114.94 грн / м2
Україна, м.Київ, Київ, вул. Будівельників, 8-Б
Перейти до аукціону на сайті
  • Інформація
  • Опис
  • Документи
Дата оголошення пропозиції:
02 липня 2021
Площа:
452.60 м2
Тип об’єкта:
Приміщення
Тип аукціону:
Англійський аукціон
Статус аукціону:
Аукціон не відбувся
Тип угоди:
Оренда
Розмір мінімального кроку:
520.00 ₴
Розмір гарантійного внеску:
31 213.10 ₴
Початок прийому пропозицій:
02.07.2021 13:35:31
Завершення прийому пропозицій:
02.08.2021 20:00:00
Лот:
UA-PS-2021-07-02-000059-3
№ лоту (УТК):
UTK020721_01Т
Лот виставляється на торги (раз):
1
Стислий опис майна:
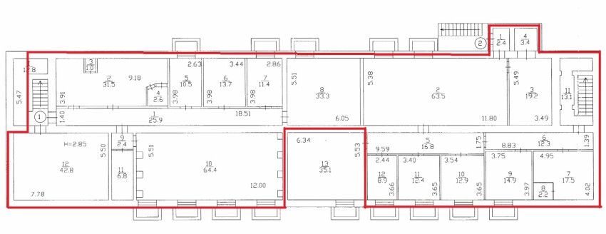
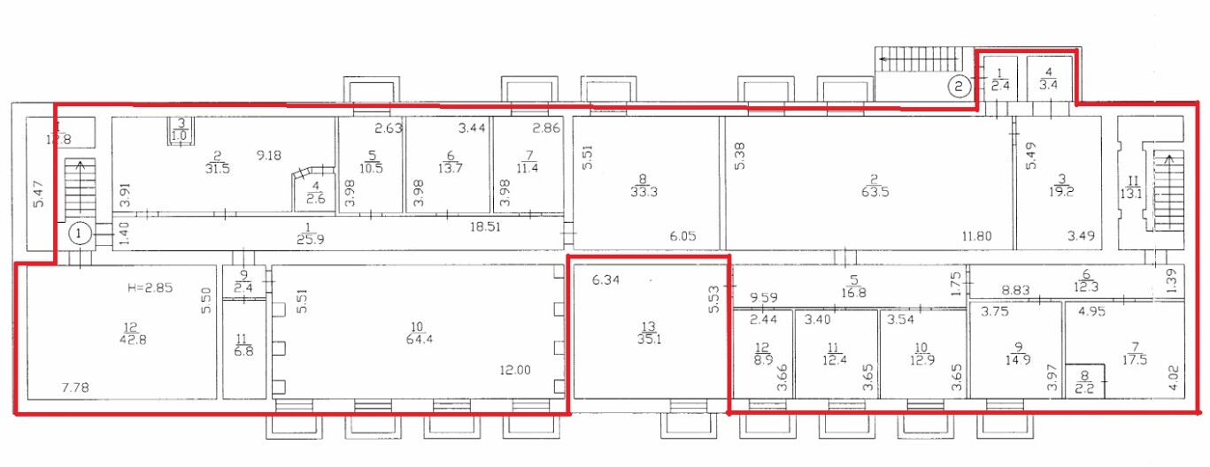
Пропонуються до оренди приміщення 2-го поверху, площею 452,60 м2. Будівля знаходиться у Дніпровському районі міста Києва, місцевість Соцмісто. Поруч розвинена інфраструктура, зупинки маршрутного транспорту, супермаркети, кафе, аптеки, фінансові заклади, зарядна станція UTrecharge Charging Station, в’їзд через майданчик з парко-місцями. Вхід з двору. Доступ 24/7. Характеристики • кількість поверхів – 3; • опалення централізоване (міське); • земельна ділянка – 0,4851 га*; • загальна площа будівлі – 2022,70 м2; • сан. вузол, каналізація, водопостачання – відсутні; • дозволена потужність – 60 кВт; *земельна ділянка не є предметом оренди.
Адреса місцезнаходження майна:
Україна, м.Київ, Київ, вул. Будівельників, 8-Б
Схожі пропозиції
09.07.2025
м. Київ, вул. Наталії Ужвій 1 (Подільський р-н). Оренда – приміщення 1-го поверху, загальною площею – 65,60 м. кв. (В)
6 006.34 грн
91.56 грн / м2
Приміщення
м. Київ, вул. Наталії Ужвій 1 (Подільський р-н). Оренда – приміщення 1-го поверху, загальною площею – 65,60 м. кв. (В)
Україна, м.Київ, Київ, 04108, м. Київ, вул. Наталії Ужвій 1
20.02.2024
ДОВГОСТРОКОВА ОРЕНДА! м. Київ, вул. Героїв Севастополя, 39/8 літ. «Е»;  Оренда – приміщення 2-го та 4-го поверхів, площею 1751,8 кв.м. (В)
239 944.05 грн
136.97 грн / м2
Приміщення
ДОВГОСТРОКОВА ОРЕНДА! м. Київ, вул. Героїв Севастополя, 39/8 літ. «Е»; Оренда – приміщення 2-го та 4-го поверхів, площею 1751,8 кв.м. (В)
Україна, м.Київ, Київ, вул. Героїв Севастополя, 39/8(Е)
14.06.2024
м. Київ, вул. Будівельників, 8-Б;   Оренда – приміщення підвалу, площею 452,6 кв.м. (В)
42 300.00 грн
93.46 грн / м2
Приміщення
м. Київ, вул. Будівельників, 8-Б; Оренда – приміщення підвалу, площею 452,6 кв.м. (В)
Україна, м.Київ, Київ, вулиця Будівельників, 8-Б
м. Київ, вул. Антоновича, 40, оренда – приміщення підвалу площею 77,00 кв.м. (В)
14 960.33 грн
194.29 грн / м2
Приміщення
м. Київ, вул. Антоновича, 40, оренда – приміщення підвалу площею 77,00 кв.м. (В)
Україна, м.Київ, Київ, вул. Антоновича, 40