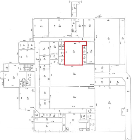
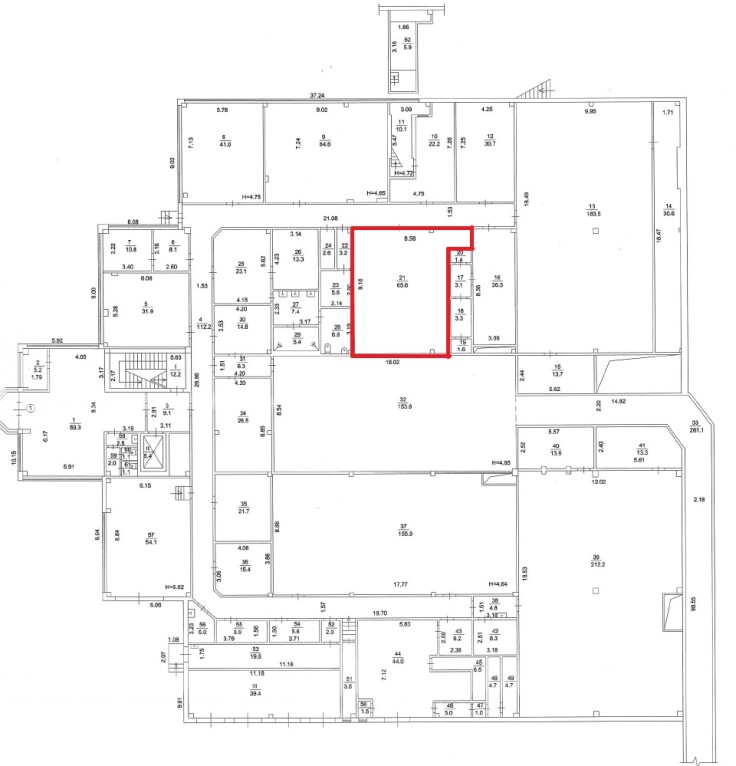
м. Київ, вул. Наталії Ужвій 1 (Подільський р-н). Оренда – приміщення 1-го поверху, загальною площею – 65,60 м. кв. (В)

6 006.34 грн
91.56 грн / м2
Україна, м.Київ, Київ, 04108, м. Київ, вул. Наталії Ужвій 1
Перейти до аукціону на сайті
  • Інформація
  • Опис
  • Документи
Дата оголошення пропозиції:
08 червня 2025
Площа:
65.60 м2
Тип об’єкта:
Приміщення
Тип аукціону:
Англійський аукціон
Статус аукціону:
Аукціон не відбувся
Тип угоди:
Оренда
Розмір мінімального кроку:
310.00 ₴
Розмір гарантійного внеску:
3 603.80 ₴
Початок прийому пропозицій:
08.06.2025 21:18:29
Завершення прийому пропозицій:
08.07.2025 20:00:00
Проведення аукціону:
09.07.2025 11:20:00
Лот:
CLE001-UA-20250608-06504
№ лоту (УТК):
UTK21032502U
Лот виставляється на торги (раз):
3
Стислий опис майна:
Пропонуються до оренди приміщення 1-го поверху, загальною площею65,60 м. кв. Будівля розташована у Подільському районі міста Києва, житловий масив Мостицький. Поруч розвинена інфраструктура, зупинки маршрутного транспорту, кафе. Характеристики: • кількість поверхів – 3; • загальна площа об'єкта – 5230,70 кв. м.; • земельна ділянка – 0,3222 га*; • дозволена потужність – 3,00 кВт; • водозабезпечення, сан. вузол, каналізація – присутні (загальний на поверсі); • опалення - централізоване (присутнє). *земельна ділянка не є предметом оренди.
Адреса місцезнаходження майна:
Україна, м.Київ, Київ, 04108, м. Київ, вул. Наталії Ужвій 1
Схожі пропозиції
04.06.2025
м. Київ, вул. Джона Маккейна, 40, літ. «А» (Печерський р-н). Оренда – група приміщень на 1-му поверсі, площею 34,70 кв.м (В)
8 212.80 грн
236.68 грн / м2
Приміщення
м. Київ, вул. Джона Маккейна, 40, літ. «А» (Печерський р-н). Оренда – група приміщень на 1-му поверсі, площею 34,70 кв.м (В)
Україна, м.Київ, Київ, 01042, м. Київ, вул. Джона Маккейна, 40, літ. «А» (Печерський р-н)
02.03.2023
м. Київ, вул. Будівельників, 8-Б Оренда – приміщення 1-го, 2-го та 3-го поверхів, площею 1520,3 м. кв. (П)
218 816.78 грн
143.93 грн / м2
Приміщення
м. Київ, вул. Будівельників, 8-Б Оренда – приміщення 1-го, 2-го та 3-го поверхів, площею 1520,3 м. кв. (П)
Україна, м.Київ, м. Київ, вулиця Будівельників, 8-Б
05.12.2023
м. Київ, вул. Джона Маккейна, №40;   Оренда – приміщення підвалу, площею 24,80 м2 (В)
5 882.31 грн
237.19 грн / м2
Приміщення
м. Київ, вул. Джона Маккейна, №40; Оренда – приміщення підвалу, площею 24,80 м2 (В)
Україна, м.Київ, Київ, вулиця Джона Маккейна, 40
31.01.2023
м. Київ, вул. Миколи Голего, 8. Оренда – приміщення 3-го поверху площею 79,7 м2 (В)
17 215.20 грн
216.00 грн / м2
Приміщення
м. Київ, вул. Миколи Голего, 8. Оренда – приміщення 3-го поверху площею 79,7 м2 (В)
Україна, м.Київ, Київ, вулиця Миколи Голего, 8