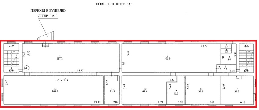
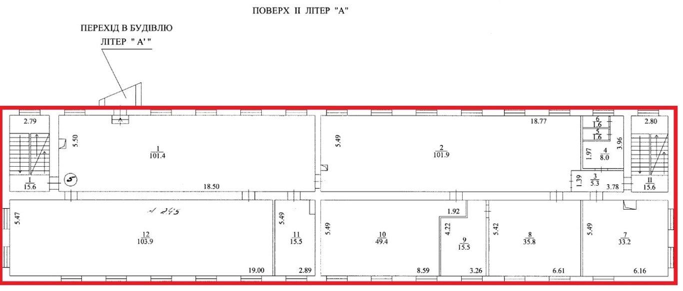
м. Київ, вул. Будівельників, 8-Б Оренда – приміщення 1-го, 2-го та 3-го поверхів, площею 1520,3 м. кв. (П)

218 816.78 грн
143.93 грн / м2
Україна, м.Київ, м. Київ, вулиця Будівельників, 8-Б
Перейти до аукціону на сайті
  • Інформація
  • Опис
  • Документи
Дата оголошення пропозиції:
30 січня 2023
Площа:
1520.30 м2
Тип об’єкта:
Приміщення
Тип аукціону:
Англійський аукціон
Статус аукціону:
Аукціон не відбувся
Тип угоди:
Оренда
Розмір мінімального кроку:
2 190.00 ₴
Розмір гарантійного внеску:
131 290.06 ₴
Початок прийому пропозицій:
30.01.2023 10:14:24
Завершення прийому пропозицій:
01.03.2023 20:00:00
Проведення аукціону:
02.03.2023 12:40:00
Лот:
CLE001-UA-20230130-91013
№ лоту (УТК):
UTK270123_03Т
Лот виставляється на торги (раз):
1
Стислий опис майна:
Пропонуються до оренди приміщення 1-го, 2-го та 3-го поверхів, площею 1520,3 м. кв. Будівля знаходиться у Дніпровському районі міста Києва, місцевість Соцмісто. Поруч розвинена інфраструктура, зупинки маршрутного транспорту, супермаркети, кафе, аптеки, фінансові заклади, в’їзд через майданчик з парко-місцями. Окремий вхід. Доступ 24/7. Характеристики: • кількість поверхів – 3; • опалення централізоване (міське); • земельна ділянка – 0,4851 га; • загальна площа будівлі – 2022,7 м2; • сан. вузол, каналізація, водопостачання – присутні; • енерго потужність – 30 кВт.
Адреса місцезнаходження майна:
Україна, м.Київ, м. Київ, вулиця Будівельників, 8-Б
Схожі пропозиції
13.05.2025
м. Київ, вул. Дегтярівська, 28А, літ. «А» (Шевченківський р-н). Оренда – приміщення на 4-му поверсі, площею – 496,20 кв.м (В)
74 608.63 грн
150.36 грн / м2
Приміщення
м. Київ, вул. Дегтярівська, 28А, літ. «А» (Шевченківський р-н). Оренда – приміщення на 4-му поверсі, площею – 496,20 кв.м (В)
Україна, м.Київ, Київ, 04119, м. Київ, вул. Дегтярівська, 28А, літ. «А» (Шевченківський р-н)
20.02.2024
м. Київ, вул. Миколи Голего, 8;  Оренда – приміщення 1-го поверху площею 30,9 кв.м. (В)
6 259.41 грн
202.57 грн / м2
Приміщення
м. Київ, вул. Миколи Голего, 8; Оренда – приміщення 1-го поверху площею 30,9 кв.м. (В)
Україна, м.Київ, Київ, вулиця Миколи Голего, 8
05.08.2025
м. Київ, вул. Наталії Ужвій, 1 (Подільський р-н). Оренда – приміщення 2-го поверху, загальною площею – 78,90 м. кв. (В)
6 192.07 грн
78.48 грн / м2
Приміщення
м. Київ, вул. Наталії Ужвій, 1 (Подільський р-н). Оренда – приміщення 2-го поверху, загальною площею – 78,90 м. кв. (В)
Україна, м.Київ, Київ, вулиця Наталії Ужвій, 1
12.01.2024
м. Київ, вул. Антоновича, 40;  Оренда–Будівля, площею 253,0 кв.м. (В)
55 670.12 грн
220.04 грн / м2
Приміщення
м. Київ, вул. Антоновича, 40; Оренда–Будівля, площею 253,0 кв.м. (В)
Україна, м.Київ, Київ, вул. Антоновича, 40
Переглянуті пропозиції
22.04.2025
Полтавська обл., Лубенський р-н, с.Новоаврамівка, вул.Центральна, буд.14;   Оренда–будівля площею 62,1 кв.м. (В)
745.20 грн
12.00 грн / м2
Приміщення
Полтавська обл., Лубенський р-н, с.Новоаврамівка, вул.Центральна, буд.14; Оренда–будівля площею 62,1 кв.м. (В)
Україна, Полтавська обл., с. Новоаврамівка, вул. Центральна, буд. 14
07.11.2024
Рівненська обл., Дубенський р-н., смт. Демидівка, вул. Миру, 28. Оренда – складські приміщення 1 поверху площею 128 м. кв. (В)
2 264.32 грн
17.69 грн / м2
Приміщення
Рівненська обл., Дубенський р-н., смт. Демидівка, вул. Миру, 28. Оренда – складські приміщення 1 поверху площею 128 м. кв. (В)
Україна, Рівненська обл., Дубенський р-н., смт. Демидівка, вул. Миру, 28
08.05.2024
ДОВГОСТРОКОВА ОРЕНДА! м. Київ, вул. Героїв Севастополя, 39/8 літ. «Е»;  Оренда – приміщення 2-го та 4-го поверхів, площею 1751,8 кв.м. (В)
239 944.05 грн
136.97 грн / м2
Приміщення
ДОВГОСТРОКОВА ОРЕНДА! м. Київ, вул. Героїв Севастополя, 39/8 літ. «Е»; Оренда – приміщення 2-го та 4-го поверхів, площею 1751,8 кв.м. (В)
Україна, м.Київ, Київ, вул. Героїв Севастополя, 39/8(Е)
01.12.2023
ДОВГОСТРОКОВА ОРЕНДА! Харківська обл., м. Харків, проспект Ювілейний, буд. 66. Оренда – приміщення 4-го поверху площею 688,00 кв.м. (В)
37 564.80 грн
54.60 грн / м2
Приміщення
ДОВГОСТРОКОВА ОРЕНДА! Харківська обл., м. Харків, проспект Ювілейний, буд. 66. Оренда – приміщення 4-го поверху площею 688,00 кв.м. (В)
Україна, Харківська обл., м. Харків, проспект Ювілейний, буд. 66