ДОВГОСТРОКОВА ОРЕНДА! м. Київ, вул. Героїв Севастополя, 39/8 літ. «Е»; Оренда – приміщення 2-го та 4-го поверхів, площею 1751,8 кв.м. (В)

239 944.05 грн
136.97 грн / м2
Україна, м.Київ, Київ, вул. Героїв Севастополя, 39/8(Е)
Перейти до аукціону на сайті
  • Інформація
  • Опис
  • Документи
Дата оголошення пропозиції:
06 квітня 2024
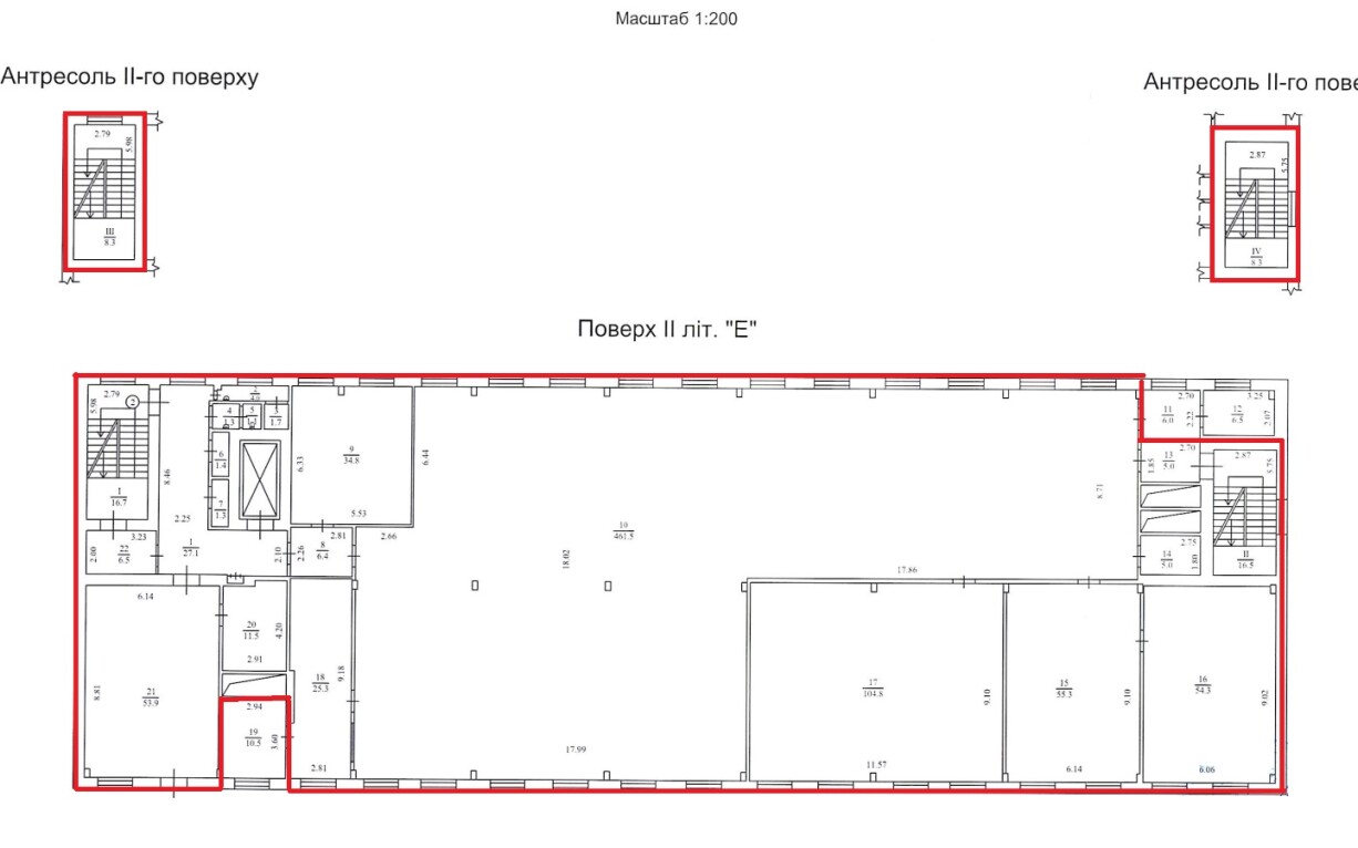
Площа:
1751.80 м2
Тип об’єкта:
Приміщення
Тип аукціону:
Англійський аукціон
Статус аукціону:
Аукціон не відбувся
Тип угоди:
Оренда
Розмір мінімального кроку:
2 500.00 ₴
Розмір гарантійного внеску:
143 966.43 ₴
Початок прийому пропозицій:
06.04.2024 10:39:56
Завершення прийому пропозицій:
07.05.2024 20:00:00
Проведення аукціону:
08.05.2024 12:20:00
Лот:
CLE001-UA-20240406-19403
№ лоту (УТК):
UTK270522_6T
Лот виставляється на торги (раз):
10
Стислий опис майна:
Пропонується до оренди приміщення 2-го та 4-го поверху площею 1751,80 кв.м. Розташування будівлі у Солом'янському районі міста Києва, місцевості Відрадний та Новокараваєві дачі. Поруч розвинена інфраструктура, зупинки маршрутного транспорту, трамваю, магазини, кафе, аптеки, середній автомобільний і пішохідний потоки. Вхід з вулиці Героїв Севастополя та з прохідної. Доступ 24/7. Характеристики: - загальна площа будівлі – 4607,20 м²; - кількість поверхів – 4; - загальна площа земельної ділянки – 0,9713 га; - опалення – централізоване (міське); - сан. вузол, каналізація, водопостачання – присутне;
Адреса місцезнаходження майна:
Україна, м.Київ, Київ, вул. Героїв Севастополя, 39/8(Е)
Схожі пропозиції
20.02.2024
м. Київ, вул. Джона Маккейна, №40;  Оренда – приміщення підвалу, площею 44,26 кв.м. (В)
10 498.03 грн
237.51 грн / м2
Приміщення
м. Київ, вул. Джона Маккейна, №40; Оренда – приміщення підвалу, площею 44,26 кв.м. (В)
Україна, м.Київ, Київ, вулиця Джона Маккейна, 40
08.05.2024
м. Київ, вул. Будівельників, 8-Б;   Оренда – приміщення підвалу, площею 452,6 кв.м. (В)
42 300.00 грн
93.46 грн / м2
Приміщення
м. Київ, вул. Будівельників, 8-Б; Оренда – приміщення підвалу, площею 452,6 кв.м. (В)
Україна, м.Київ, Київ, вулиця Будівельників, 8-Б
04.11.2022
ДОВГОСТРОКОВА ОРЕНДА! м. Київ, вул. Антоновича, 40, оренда – приміщення 2-го поверху, площею 757,90 кв.м. (В)
161 872.28 грн
213.58 грн / м2
Приміщення
ДОВГОСТРОКОВА ОРЕНДА! м. Київ, вул. Антоновича, 40, оренда – приміщення 2-го поверху, площею 757,90 кв.м. (В)
Україна, м.Київ, Київ, вул. Антоновича, 40
Переглянуті пропозиції
01.12.2023
ДОВГОСТРОКОВА ОРЕНДА! Харківська обл., м. Харків, проспект Ювілейний, буд. 66. Оренда – приміщення 4-го поверху площею 688,00 кв.м. (В)
37 564.80 грн
54.60 грн / м2
Приміщення
ДОВГОСТРОКОВА ОРЕНДА! Харківська обл., м. Харків, проспект Ювілейний, буд. 66. Оренда – приміщення 4-го поверху площею 688,00 кв.м. (В)
Україна, Харківська обл., м. Харків, проспект Ювілейний, буд. 66