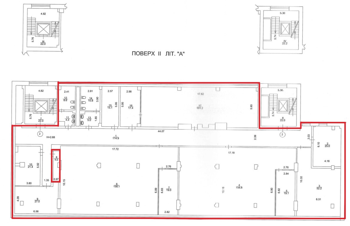
ДОВГОСТРОКОВА ОРЕНДА! м. Київ, вул. Антоновича, 40, оренда – приміщення 2-го поверху, площею 757,90 кв.м. (В)

161 872.28 грн
213.58 грн / м2
Україна, м.Київ, Київ, вул. Антоновича, 40
Перейти до аукціону на сайті
  • Інформація
  • Опис
  • Документи
Дата оголошення пропозиції:
05 жовтня 2022
Площа:
757.90 м2
Тип об’єкта:
Приміщення
Тип аукціону:
Англійський аукціон
Статус аукціону:
Аукціон не відбувся
Тип угоди:
Оренда
Розмір мінімального кроку:
2 000.00 ₴
Розмір гарантійного внеску:
97 123.37 ₴
Початок прийому пропозицій:
05.10.2022 09:36:51
Завершення прийому пропозицій:
03.11.2022 20:00:00
Проведення аукціону:
04.11.2022 11:50:00
Лот:
CLE001-UA-20221005-16107
№ лоту (УТК):
UTK120721_01T
Лот виставляється на торги (раз):
9
Стислий опис майна:
Пропонуються до оренди приміщення 2-го, площею 757,90 кв.м. Стан приміщень задовільний. Кондиціонування присутнє в приміщенні. Будівля знаходиться у центрі міста на перехресті вулиць Жилянська та Антоновича. Поруч з БЦ розташована зупинка міського автотранспорту, в 5-ти хвилинах ходьби знаходиться станція метро «Олімпійська», парк Тараса Шевченка. Зарядна станція Utrecharge. Вхід з вул. Антоновича. Характеристики: • кількість поверхів – 9; • загальна площа будівлі – 7649,30 м2; • опалення централізоване (міське); • земельна ділянка – 0,2099 га; • сан. вузол, водопостачання, каналізація - присутні;
Адреса місцезнаходження майна:
Україна, м.Київ, Київ, вул. Антоновича, 40
Схожі пропозиції
15.06.2023
ДОВГОСТРОКОВА ОРЕНДА! м. Київ, вул. Героїв Севастополя, 39/8 літ. «Е». Оренда – приміщення 2-го та 4-го поверхів, площею 1751,8 м2 (В)
80 933.16 грн
46.20 грн / м2
Приміщення
ДОВГОСТРОКОВА ОРЕНДА! м. Київ, вул. Героїв Севастополя, 39/8 літ. «Е». Оренда – приміщення 2-го та 4-го поверхів, площею 1751,8 м2 (В)
Україна, м.Київ, Київ, вулиця Героїв Севастополя, 39
11.03.2025
м. Київ, вул. Миколи Голего, 8. Оренда – приміщення 3-го поверху, загальною площею – 299,00 кв. м (В)
49 320.05 грн
164.95 грн / м2
Приміщення
м. Київ, вул. Миколи Голего, 8. Оренда – приміщення 3-го поверху, загальною площею – 299,00 кв. м (В)
Україна, м.Київ, м. Київ, вул. Миколи Голего, 8
07.11.2024
м. Київ, вул. Василя Макуха (Івана Шевцова), 5;   Оренда – приміщення 1-го поверху будівлі, площею 401,5 кв.м. (В)
83 720.78 грн
208.52 грн / м2
Приміщення
м. Київ, вул. Василя Макуха (Івана Шевцова), 5; Оренда – приміщення 1-го поверху будівлі, площею 401,5 кв.м. (В)
Україна, м.Київ, м. Київ, вулиця Василя Макуха (Івана Шевцова), 5
Переглянуті пропозиції
27.11.2025
Довгострокова оренда! Дніпропетровська обл., м. Верхньодніпровськ, вул. Кам’янська (Титова), 8. Оренда – приміщення 3-го поверху площею 826,40 кв.м. (В)
19 833.60 грн
24.00 грн / м2
Приміщення
Довгострокова оренда! Дніпропетровська обл., м. Верхньодніпровськ, вул. Кам’янська (Титова), 8. Оренда – приміщення 3-го поверху площею 826,40 кв.м. (В)
Україна, Дніпропетровська обл., Верхньодніпровськ, вулиця Тітова, 8
19.09.2023
ДОВГОСТРОКОВА ОРЕНДА! м. Київ, вул. Салютна, 5а, літ. «Б». Оренда – приміщення 3-го та 4-го поверхів площею 992,8 кв.м. (В)
24.07.2024
Дніпропетровська обл., м. Дніпро, просп. Героїв, 14. Оренда – приміщення 2-го поверху загальною площею 77,70 кв.м (В)
7 140.63 грн
91.90 грн / м2
Приміщення
Дніпропетровська обл., м. Дніпро, просп. Героїв, 14. Оренда – приміщення 2-го поверху загальною площею 77,70 кв.м (В)
Україна, Дніпропетровська обл., м. Дніпро, просп. Героїв, 14
08.04.2025
   ДОВГОСТРОКОВА ОРЕНДА!   м. Київ, вул. Антоновича, 40;  Оренда – група приміщень на 4-му поверсі, площею - 774,90 кв.м. (В)