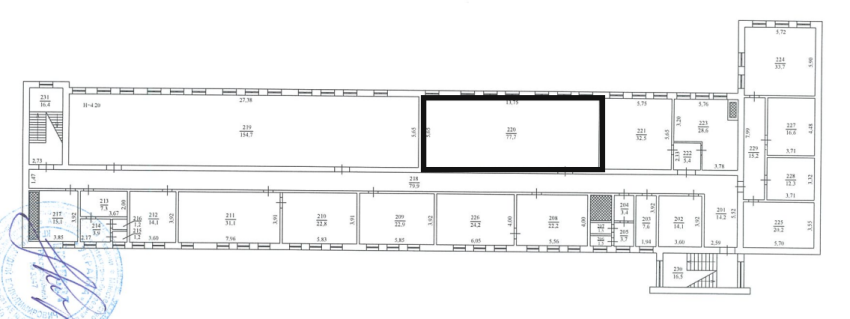
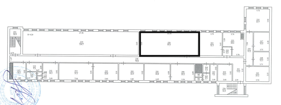
Дніпропетровська обл., м. Дніпро, просп. Героїв, 14. Оренда – приміщення 2-го поверху загальною площею 77,70 кв.м (В)

7 140.63 грн
91.90 грн / м2
Україна, Дніпропетровська обл., м. Дніпро, просп. Героїв, 14
Перейти до аукціону на сайті
  • Інформація
  • Опис
  • Документи
Дата оголошення пропозиції:
24 червня 2024
Площа:
77.70 м2
Тип об’єкта:
Приміщення
Тип аукціону:
Англійський аукціон
Статус аукціону:
Аукціон не відбувся
Тип угоди:
Оренда
Розмір мінімального кроку:
100.00 ₴
Розмір гарантійного внеску:
4 284.38 ₴
Початок прийому пропозицій:
24.06.2024 11:24:10
Завершення прийому пропозицій:
23.07.2024 20:00:00
Проведення аукціону:
24.07.2024 11:55:00
Лот:
CLE001-UA-20240624-93674
№ лоту (УТК):
UTK130524_08P
Лот виставляється на торги (раз):
2
Стислий опис майна:
Пропонується до оренди приміщення 2-го поверху загальною площею 77,70 кв.м (прим.220). Розташування - будівля знаходиться в Соборному районі міста. Поруч знаходяться відділення банку, супермаркети, лікарня, зупинка громадського транспорту, високий автомобільний і пішохідний потоки. Стан приміщення задовільний. Вхід в приміщення спільний. Зручна транспортна розв’язка та інфраструктура. Характеристики: Кількість поверхів – 4; Загальна площа – 3705,30 кв.м Площа запропонована до оренди – 77,70 кв.м Теплопостачання – централізоване; водопостачання, електропостачання, Земельна ділянка – 0,2755 га (договір оренди)
Адреса місцезнаходження майна:
Україна, Дніпропетровська обл., м. Дніпро, просп. Героїв, 14
Схожі пропозиції
01.03.2023
Дніпропетровська обл., смт. Софіївка, бул. Шевченка, 17А. Оренда – приміщення 1-го поверху площею 11,6 кв.м. (В)
588.24 грн
50.71 грн / м2
Приміщення
Дніпропетровська обл., смт. Софіївка, бул. Шевченка, 17А. Оренда – приміщення 1-го поверху площею 11,6 кв.м. (В)
Україна, Дніпропетровська обл., смт. Софіївка, бул. Шевченка, 17А
м. Дніпро, проспект Героїв, 14. Оренда – приміщення 4-го поверху, площею 634,10 кв.м. (В)
11 997.17 грн
18.92 грн / м2
Приміщення
м. Дніпро, проспект Героїв, 14. Оренда – приміщення 4-го поверху, площею 634,10 кв.м. (В)
Україна, Дніпропетровська обл., м. Дніпро, проспект Героїв, 14
26.11.2024
Дніпропетровська обл., м. Дніпро, вул. Пушкіна, 75А. Оренда – приміщення технічного поверху площею 66,80 кв.м (В)
6 710.06 грн
100.45 грн / м2
Приміщення
Дніпропетровська обл., м. Дніпро, вул. Пушкіна, 75А. Оренда – приміщення технічного поверху площею 66,80 кв.м (В)
Україна, Дніпропетровська обл., м. Дніпро, вул. Пушкіна, 75А
Дніпропетровська обл., м. Дніпро, проспект Героїв, 14. Оренда – приміщення  4-го  поверху площею 644,10 кв.м. (В)
40 463.52 грн
62.82 грн / м2
Приміщення
Дніпропетровська обл., м. Дніпро, проспект Героїв, 14. Оренда – приміщення 4-го поверху площею 644,10 кв.м. (В)
Україна, Дніпропетровська обл., м. Дніпро, проспект Героїв, 14
Переглянуті пропозиції
08.04.2025
   ДОВГОСТРОКОВА ОРЕНДА!   м. Київ, вул. Антоновича, 40;  Оренда – група приміщень на 4-му поверсі, площею - 774,90 кв.м. (В)
19.11.2025
м. Київ, вул. Джона Маккейна, 40, літ. «В» (Печерський р-н). Оренда – гаражі, загальною площею - 315,10 кв.м. (В)
63 924.34 грн
202.87 грн / м2
Приміщення
м. Київ, вул. Джона Маккейна, 40, літ. «В» (Печерський р-н). Оренда – гаражі, загальною площею - 315,10 кв.м. (В)
Україна, м.Київ, Київ, 01042, м. Київ, вул. Джона Маккейна, 40, літ. «В» (Печерський р-н)
21.03.2025
м. Київ, вул. Джона Маккейна, 40, літ. «А» (Печерський р-н). Оренда – група приміщень на 1-му поверсі, площею 56,90 кв.м (В)
19 239.03 грн
338.12 грн / м2
Приміщення
м. Київ, вул. Джона Маккейна, 40, літ. «А» (Печерський р-н). Оренда – група приміщень на 1-му поверсі, площею 56,90 кв.м (В)
Україна, м.Київ, Київ, 01042, м. Київ, вул. Джона Маккейна, 40, літ. «А» (Печерський р-н)