Дніпропетровська обл., м. Дніпро, вул. Пушкіна, 75А. Оренда – приміщення технічного поверху площею 66,80 кв.м (В)

6 710.06 грн
100.45 грн / м2
Україна, Дніпропетровська обл., м. Дніпро, вул. Пушкіна, 75А
Перейти до аукціону на сайті
  • Інформація
  • Опис
  • Документи
Дата оголошення пропозиції:
24 жовтня 2024
Площа:
66.80 м2
Тип об’єкта:
Приміщення
Тип аукціону:
Англійський аукціон
Статус аукціону:
Аукціон не відбувся
Тип угоди:
Оренда
Розмір мінімального кроку:
200.00 ₴
Розмір гарантійного внеску:
4 026.04 ₴
Початок прийому пропозицій:
24.10.2024 14:23:24
Завершення прийому пропозицій:
25.11.2024 20:00:00
Проведення аукціону:
26.11.2024 12:00:00
Лот:
CLE001-UA-20241024-90043
№ лоту (УТК):
UTK090224_08P
Лот виставляється на торги (раз):
8
Стислий опис майна:
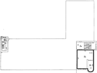
Пропонується до оренди приміщення технічного поверху площею 66,80 кв.м (прим. №3-1, №3-2 по техпаспорту). Розташування - будівля знаходиться в Чечелівському районі міста. Поруч знаходяться відділення банку, магазини, учбові заклади, зупинки громадського транспорту, високий автомобільний і пішохідний потоки. Стан приміщення потребує часткового ремонту. Вхід в приміщення спільний. Характеристики: Кількість поверхів – 5 Загальна площа об'єкту – 2267,5 кв.м Площа запропонована до оренди – 66,80 кв.м Електропостачання, водопостачання, теплопостачання Земельна ділянка – 0, 1095 га (договір оренди) Ресурсні податки – 4,88 грн за 1 кв.м
Адреса місцезнаходження майна:
Україна, Дніпропетровська обл., м. Дніпро, вул. Пушкіна, 75А
Схожі пропозиції
14.12.2023
Дніпропетровська обл., м. Жовті Води, бул. Свободи, 39. Оренда – приміщення другого поверху, загальною площею 58,80 кв.м. (В)
311.05 грн
5.29 грн / м2
Приміщення
Дніпропетровська обл., м. Жовті Води, бул. Свободи, 39. Оренда – приміщення другого поверху, загальною площею 58,80 кв.м. (В)
Україна, Дніпропетровська обл., м. Жовті Води, бул. Свободи, 39
18.03.2025
Дніпропетровська обл., м. Дніпро, вул. Князя Ярослава Мудрого, 3. Оренда – приміщення 5-го поверху площею 58,20 кв.м. (В)
1 746.00 грн
30.00 грн / м2
Приміщення
Дніпропетровська обл., м. Дніпро, вул. Князя Ярослава Мудрого, 3. Оренда – приміщення 5-го поверху площею 58,20 кв.м. (В)
Україна, Дніпропетровська обл., м. Дніпро, вул. Князя Ярослава Мудрого, 3, вул. Дніпровська, 226
10.01.2023
Дніпропетровська обл., м. Дніпро, вул. Панікахи, 27. Оренда – приміщення 3-го поверху площею 742,0 кв.м. (В)
34 280.40 грн
46.20 грн / м2
Приміщення
Дніпропетровська обл., м. Дніпро, вул. Панікахи, 27. Оренда – приміщення 3-го поверху площею 742,0 кв.м. (В)
Україна, Дніпропетровська обл., м. Дніпро, вул. Панікахи, 27
17.03.2023
Дніпропетровська обл., м. Синельникове, вул. Богми, 4. Оренда – приміщення гаражу площею 30,7 кв.м. (В)
626.28 грн
20.40 грн / м2
Приміщення
Дніпропетровська обл., м. Синельникове, вул. Богми, 4. Оренда – приміщення гаражу площею 30,7 кв.м. (В)
Україна, Дніпропетровська обл., Синельникове, вулиця Богми, 4
Переглянуті пропозиції
19.05.2023
м. Київ, бульвар Бучми Амвросія, 5. Оренда – приміщення 3-го та 4-го поверхів технічної будівлі АТС-550 (літ. «Б»), площею 1006,83 кв. м. (В)
14.12.2023
Дніпропетровська обл., м. Дніпро, вул.Чернишевського, 27;   Оренда – приміщення 1-го поверху площею 19,8 кв.м.(В)
2 004.95 грн
101.26 грн / м2
Приміщення
Дніпропетровська обл., м. Дніпро, вул.Чернишевського, 27; Оренда – приміщення 1-го поверху площею 19,8 кв.м.(В)
Україна, Дніпропетровська обл., Дніпро, вулиця Чернишевського, 27
м. Київ, вул. Макіївська, 3.Оренда – приміщення 2-го поверху, площею 724,10 м2 (В)
76 682.19 грн
105.90 грн / м2
Приміщення
м. Київ, вул. Макіївська, 3.Оренда – приміщення 2-го поверху, площею 724,10 м2 (В)
Україна, м.Київ, Київ, вул. Макіївська, 3
09.08.2022
м. Київ, вул. Джона Маккейна, №40 , Оренда – приміщення підвалу, площею 44,26 м2 , (В)
15 593.68 грн
352.80 грн / м2
Приміщення
м. Київ, вул. Джона Маккейна, №40 , Оренда – приміщення підвалу, площею 44,26 м2 , (В)
Україна, м.Київ, Київ, вул. Джона Маккейна, №40