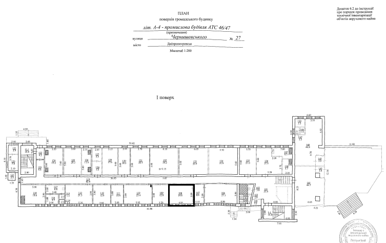
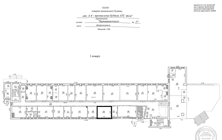
Дніпропетровська обл., м. Дніпро, вул.Чернишевського, 27; Оренда – приміщення 1-го поверху площею 19,8 кв.м.(В)

2 004.95 грн
101.26 грн / м2
Україна, Дніпропетровська обл., Дніпро, вулиця Чернишевського, 27
Перейти до аукціону на сайті
  • Інформація
  • Опис
  • Документи
Дата оголошення пропозиції:
13 листопада 2023
Площа:
19.80 м2
Тип об’єкта:
Приміщення
Тип аукціону:
Англійський аукціон
Статус аукціону:
Аукціон не відбувся
Тип угоди:
Оренда
Розмір мінімального кроку:
50.00 ₴
Розмір гарантійного внеску:
1 202.97 ₴
Початок прийому пропозицій:
13.11.2023 10:38:01
Завершення прийому пропозицій:
13.12.2023 20:00:00
Проведення аукціону:
14.12.2023 12:15:00
Лот:
CLE001-UA-20231113-16770
№ лоту (УТК):
UTK180222_02T
Лот виставляється на торги (раз):
10
Стислий опис майна:
Пропонується до оренди приміщення 1-го поверху площею 19,8 кв.м. Будівля знаходиться в Соборному районі міста. Поруч знаходяться відділення банку, супермаркети, учбові заклади, зупинка громадського транспорту, високий автомобільний і пішохідний потоки. Стан приміщення задовільний, підходить для офісу, студії, Ідеальне місце під розвиток будь-якого бізнесу. Можливість передачі приміщень в суборенду. Характеристики: - Кількість поверхів – 4 - Загальна площа – 4 137,1 кв.м. - Електропостачання, водопостачання, теплопостачання, вивіз сміття, охорона та обслуговування пожежної сигналізації, прибирання загальних місць та території; - Земельна ділянка – 0, 358 га (договір оренди)
Адреса місцезнаходження майна:
Україна, Дніпропетровська обл., Дніпро, вулиця Чернишевського, 27
Схожі пропозиції
29.12.2022
Дніпропетровська обл., м. Новомосковськ, вул. Північна, 5. Оренда – приміщення громадського будинку нежитлових будівель площею 2636,60 кв.м. (В)
43 952.12 грн
16.67 грн / м2
Приміщення
Дніпропетровська обл., м. Новомосковськ, вул. Північна, 5. Оренда – приміщення громадського будинку нежитлових будівель площею 2636,60 кв.м. (В)
Україна, Дніпропетровська обл., м. Новомосковськ, вул. Північна, 5
Дніпропетровська обл., м. Дніпро, вул. Чернишевського, 27. Оренда – приміщення 3-го поверху площею 484,10 кв.м. (В)
29 021.80 грн
59.95 грн / м2
Приміщення
Дніпропетровська обл., м. Дніпро, вул. Чернишевського, 27. Оренда – приміщення 3-го поверху площею 484,10 кв.м. (В)
Україна, Дніпропетровська обл., м. Дніпро, вул. Чернишевського, 27
18.10.2024
Дніпропетровська обл., м. Дніпро, вул. Чернишевського, 27. Оренда – приміщення 2-го поверху площею 154,00 кв.м. (В)
7 797.02 грн
50.63 грн / м2
Приміщення
Дніпропетровська обл., м. Дніпро, вул. Чернишевського, 27. Оренда – приміщення 2-го поверху площею 154,00 кв.м. (В)
Україна, Дніпропетровська обл., м. Дніпро, вул. Чернишевського, 27
30.05.2023
Дніпропетровська обл., м. Дніпро, вул. Січових Стрільців, 10. Оренда – приміщення цокольного поверху площею 47,90 кв.м. (В)
2 212.98 грн
46.20 грн / м2
Приміщення
Дніпропетровська обл., м. Дніпро, вул. Січових Стрільців, 10. Оренда – приміщення цокольного поверху площею 47,90 кв.м. (В)
Україна, Дніпропетровська обл., м. Дніпро, вул. Січових Стрільців, 10
Переглянуті пропозиції
м. Київ, вул. Макіївська, 3.Оренда – приміщення 2-го поверху, площею 724,10 м2 (В)
76 682.19 грн
105.90 грн / м2
Приміщення
м. Київ, вул. Макіївська, 3.Оренда – приміщення 2-го поверху, площею 724,10 м2 (В)
Україна, м.Київ, Київ, вул. Макіївська, 3
09.08.2022
м. Київ, вул. Джона Маккейна, №40 , Оренда – приміщення підвалу, площею 44,26 м2 , (В)
15 593.68 грн
352.80 грн / м2
Приміщення
м. Київ, вул. Джона Маккейна, №40 , Оренда – приміщення підвалу, площею 44,26 м2 , (В)
Україна, м.Київ, Київ, вул. Джона Маккейна, №40
12.01.2023
Довгострокова оренда. м. Київ, вул. Горького (Антоновича), 40. Оренда – приміщення 1-го поверху, площею 538,5 кв. м. (В)
м. Київ, вул. Маршала Малиновського №19-А. Оренда – приміщення 1-го поверху площею 120,30 кв.м. (В)
29 545.68 грн
245.60 грн / м2
Приміщення
м. Київ, вул. Маршала Малиновського №19-А. Оренда – приміщення 1-го поверху площею 120,30 кв.м. (В)
Україна, м.Київ, Київ, вул. Маршала Малиновського №19-А