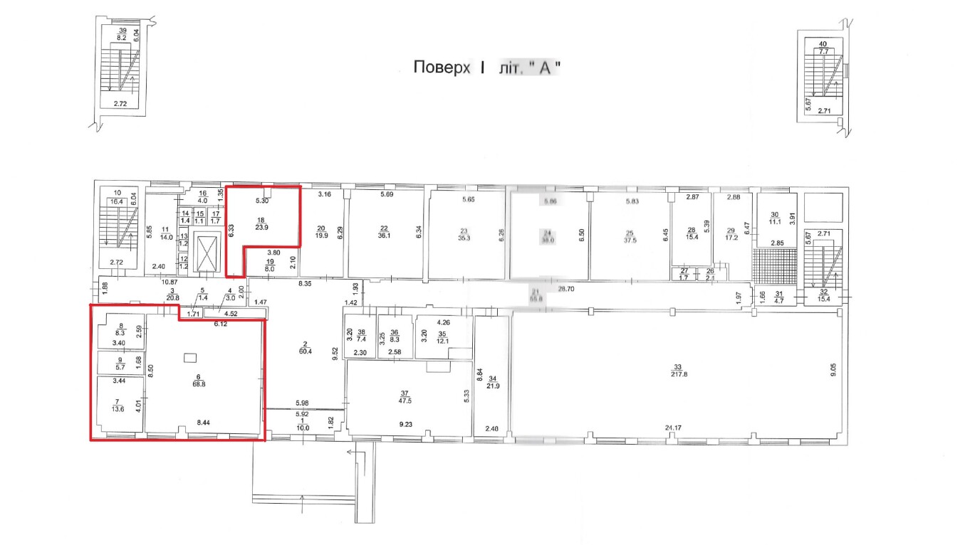
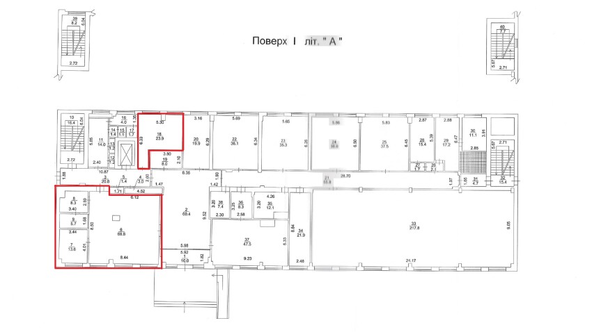
м. Київ, вул. Маршала Малиновського №19-А. Оренда – приміщення 1-го поверху площею 120,30 кв.м. (В)

29 545.68 грн
245.60 грн / м2
Україна, м.Київ, Київ, вул. Маршала Малиновського №19-А
Перейти до аукціону на сайті
  • Інформація
  • Опис
  • Документи
Дата оголошення пропозиції:
05 травня 2022
Площа:
120.30 м2
Тип об’єкта:
Приміщення
Тип аукціону:
Англійський аукціон
Статус аукціону:
Аукціон не відбувся
Тип угоди:
Оренда
Розмір мінімального кроку:
300.00 ₴
Розмір гарантійного внеску:
17 727.41 ₴
Початок прийому пропозицій:
05.05.2022 10:09:43
Завершення прийому пропозицій:
07.06.2022 20:00:00
Лот:
UA-PS-2022-05-05-000011-2
№ лоту (УТК):
UTK300322_01T
Лот виставляється на торги (раз):
2
Стислий опис майна:
Пропонуються до оренди приміщення 1-го поверху, площею 120,30 м2. Будівля знаходиться в Оболонському районі міста Києва, житловий масив Оболонь, розвинена інфраструктура, високі автомобільний та пішохідний потоки. 5 хв. пішки від ст. м. «Оболонь». Приміщення з ремонтом. Характеристики • загальна площа будівлі – 4653,30 м2 ; • сан. вузол, каналізація, водопостачання – присутне; • кількість поверхів – 4; • опалення централізоване (міське); • площа земельної ділянки – 0,4727 га*;
Адреса місцезнаходження майна:
Україна, м.Київ, Київ, вул. Маршала Малиновського №19-А
Схожі пропозиції
м. Київ, вул. Володимирська, 10 Оренда – Приміщення 1-го поверху, площею 201,1 м2 (В)
141 660.87 грн
704.43 грн / м2
Приміщення
м. Київ, вул. Володимирська, 10 Оренда – Приміщення 1-го поверху, площею 201,1 м2 (В)
Україна, м.Київ, Київ, вул. Володимирська, 10
31.07.2025
м. Київ, бульв. Шевченка Тараса, 18, літ.: «Б» (Шевченківський р-н). Оренда – приміщення 2-го поверху, загальною площею - 280,90 м2 (В)
20.05.2025
м. Київ, вул. Макіївська, 3, літ. «А» (Оболонський р-н). Оренда – група приміщень на 1-му поверсі, загальною площею 247,40 кв.м (В)
39 138.68 грн
158.20 грн / м2
Приміщення
м. Київ, вул. Макіївська, 3, літ. «А» (Оболонський р-н). Оренда – група приміщень на 1-му поверсі, загальною площею 247,40 кв.м (В)
Україна, м.Київ, Київ, 04082, м. Київ, вул. Макіївська, 3, літ. «А» (Оболонський р-н)
20.02.2024
ДОВГОСТРОКОВА ОРЕНДА! м. Київ, вул. Салютна, 5а, літ. «Б»;  Оренда – приміщення 3-го та 4-го поверхів площею 992,8 кв.м. (В)
122 720.01 грн
123.61 грн / м2
Приміщення
ДОВГОСТРОКОВА ОРЕНДА! м. Київ, вул. Салютна, 5а, літ. «Б»; Оренда – приміщення 3-го та 4-го поверхів площею 992,8 кв.м. (В)
Україна, м.Київ, Київ, вулиця Салютна, 5а, літ.Б
Переглянуті пропозиції
Дніпропетровська обл., м. Дніпро, проспект Героїв, 14. Оренда – приміщення  4-го  поверху площею 644,10 кв.м. (В)
40 463.52 грн
62.82 грн / м2
Приміщення
Дніпропетровська обл., м. Дніпро, проспект Героїв, 14. Оренда – приміщення 4-го поверху площею 644,10 кв.м. (В)
Україна, Дніпропетровська обл., м. Дніпро, проспект Героїв, 14
17.05.2024
Дніпропетровська обл., м. Дніпро, вул.Чернишевського, 27;   Оренда – приміщення 1-го поверху площею 19,8 кв.м.(В)
2 004.95 грн
101.26 грн / м2
Приміщення
Дніпропетровська обл., м. Дніпро, вул.Чернишевського, 27; Оренда – приміщення 1-го поверху площею 19,8 кв.м.(В)
Україна, Дніпропетровська обл., Дніпро, вулиця Чернишевського, 27
14.12.2023
Дніпропетровська обл., м. Кривий Ріг, вул. Дніпропетровське шосе, 48;  Оренда – приміщення 4-го поверху, площею 640,0 кв.м. (В)
5 254.40 грн
8.21 грн / м2
Приміщення
Дніпропетровська обл., м. Кривий Ріг, вул. Дніпропетровське шосе, 48; Оренда – приміщення 4-го поверху, площею 640,0 кв.м. (В)
Україна, Дніпропетровська обл., Кривий Ріг, вулиця Дніпровське шосе, 48