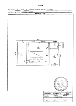
Дніпропетровська обл., м. Новомосковськ, вул. Північна, 5. Оренда – приміщення громадського будинку нежитлових будівель площею 2636,60 кв.м. (В)

43 952.12 грн
16.67 грн / м2
Україна, Дніпропетровська обл., м. Новомосковськ, вул. Північна, 5
Перейти до аукціону на сайті
  • Інформація
  • Опис
  • Документи
Дата оголошення пропозиції:
29 листопада 2022
Площа:
2636.60 м2
Тип об’єкта:
Приміщення
Тип аукціону:
Англійський аукціон
Статус аукціону:
Аукціон не відбувся
Тип угоди:
Оренда
Розмір мінімального кроку:
1 000.00 ₴
Розмір гарантійного внеску:
26 371.27 ₴
Початок прийому пропозицій:
29.11.2022 13:29:06
Завершення прийому пропозицій:
28.12.2022 20:00:00
Проведення аукціону:
29.12.2022 12:10:00
Лот:
CLE001-UA-20221129-41215
№ лоту (УТК):
UTK040122_02P
Лот виставляється на торги (раз):
6
Стислий опис майна:
Пропонується до оренди приміщення громадського будинку нежитлових будівель площею 2636,60кв.м. Розташування - будівля знаходиться в центральному районі міста. Стан приміщення задовільний, підходить під склади, гаражі, Ідеальне місце під розвиток будь-якого бізнесу. Можливість передачі приміщень в суборенду. Характеристики: - Кількість поверхів – 1 - Загальна площа – 3051,40 кв.м.; - Площа запропонована до оренди – 2636,60 кв.м.; - Електропостачання; - Земельна ділянка – 3,933 га (договір оренди)
Адреса місцезнаходження майна:
Україна, Дніпропетровська обл., м. Новомосковськ, вул. Північна, 5
Схожі пропозиції
31.12.2024
ДОВГОСТРОКОВА ОРЕНДА! Дніпропетровська обл., м. Кам’янське, просп. Героїв АТО, 1. Оренда – приміщення 4-го поверху загальною площею 536,30 кв.м (В)
11 262.30 грн
21.00 грн / м2
Приміщення
ДОВГОСТРОКОВА ОРЕНДА! Дніпропетровська обл., м. Кам’янське, просп. Героїв АТО, 1. Оренда – приміщення 4-го поверху загальною площею 536,30 кв.м (В)
Україна, Дніпропетровська обл., м. Кам’янське, просп. Героїв АТО, 1
10.10.2025
Дніпропетровська обл., м. Кам’янське, просп. Свободи, 44. Оренда – приміщення 5-го поверху загальною площею 26,10 кв.м (В)
522.00 грн
20.00 грн / м2
Приміщення
Дніпропетровська обл., м. Кам’янське, просп. Свободи, 44. Оренда – приміщення 5-го поверху загальною площею 26,10 кв.м (В)
Україна, Дніпропетровська обл., м. Кам’янське, просп. Свободи, 44
12.04.2023
Дніпропетровська обл., м. Дніпро, вул. Князя Ярослава Мудрого, 3. Оренда – приміщення 5-го поверху площею 34,80 кв.м.(В)
2 324.64 грн
66.80 грн / м2
Приміщення
Дніпропетровська обл., м. Дніпро, вул. Князя Ярослава Мудрого, 3. Оренда – приміщення 5-го поверху площею 34,80 кв.м.(В)
Україна, Дніпропетровська обл., м. Дніпро, вул. Князя Ярослава Мудрого, 3
Дніпропетровська обл., м. Дніпро, вул. Князя Ярослава Мудрого, 3. Оренда – приміщення  5-го  поверху площею 34,80 кв.м.(В)
3 758.40 грн
108.00 грн / м2
Приміщення
Дніпропетровська обл., м. Дніпро, вул. Князя Ярослава Мудрого, 3. Оренда – приміщення 5-го поверху площею 34,80 кв.м.(В)
Україна, Дніпропетровська обл., м. Дніпро, вул. Князя Ярослава Мудрого, 3
Переглянуті пропозиції
15.06.2023
Дніпропетровська обл., м. Дніпро, вул. Шолохова, 7. Оренда – приміщення 1-го поверху площею 79,60 кв.м. (В)
9 870.40 грн
124.00 грн / м2
Приміщення
Дніпропетровська обл., м. Дніпро, вул. Шолохова, 7. Оренда – приміщення 1-го поверху площею 79,60 кв.м. (В)
Україна, Дніпропетровська обл., м. Дніпро, вул. Шолохова, 7
17.03.2023
Дніпропетровська обл., м. Дніпро, вул. Чернишевського, 27. Оренда – приміщення 1-го поверху площею 100,00 кв.м. (В)
6 792.00 грн
67.92 грн / м2
Приміщення
Дніпропетровська обл., м. Дніпро, вул. Чернишевського, 27. Оренда – приміщення 1-го поверху площею 100,00 кв.м. (В)
Україна, Дніпропетровська обл., м. Дніпро, вул. Чернишевського, 27