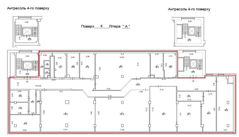
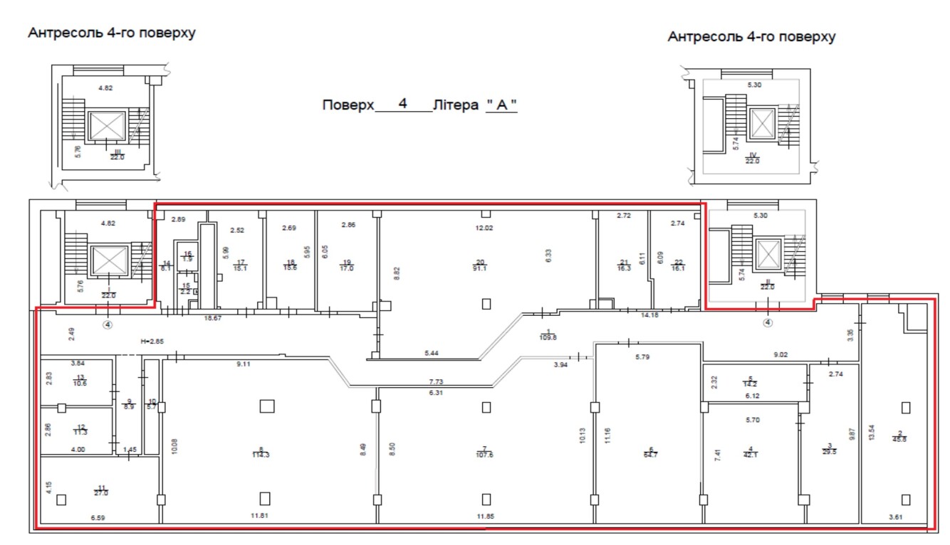
ДОВГОСТРОКОВА ОРЕНДА! м. Київ, вул. Антоновича, 40; Оренда – група приміщень на 4-му поверсі, площею - 774,90 кв.м. (В)

278 964.00 грн
360.00 грн / м2
Україна, м.Київ, Київ, вул. Антоновича, 40
Перейти до аукціону на сайті
  • Інформація
  • Опис
  • Документи
Дата оголошення пропозиції:
07 березня 2025
Площа:
774.90 м2
Тип об’єкта:
Приміщення
Тип аукціону:
Англійський аукціон
Статус аукціону:
Аукціон не відбувся
Тип угоди:
Оренда
Розмір мінімального кроку:
6 000.00 ₴
Розмір гарантійного внеску:
167 378.40 ₴
Початок прийому пропозицій:
07.03.2025 10:51:53
Завершення прийому пропозицій:
07.04.2025 20:00:00
Проведення аукціону:
08.04.2025 12:00:00
Лот:
CLE001-UA-20250307-73818
№ лоту (УТК):
UTK251024_02T
Лот виставляється на торги (раз):
3
Стислий опис майна:
Пропонуються до оренди група приміщень на 4-му поверсі, площею 774,90 кв.м. Будівля знаходиться у центрі міста на перехресті вулиць Жилянська та Антоновича. Поруч з БЦ розташована зупинка міського автотранспорту, в 5-ти хвилинах ходьби знаходиться станція метро «Олімпійська», парк Тараса Шевченка. Вхід з вул. Антоновича. Характеристики: • кількість поверхів – 9; • загальна площа будівлі – 7 649,30 м2; • кондиціонування – загальне по будівлі (керування на поверсі) • опалення централізоване (міське); • земельна ділянка – 0,2099 га; • сан. вузол, водопостачання, каналізація – присутні.
Адреса місцезнаходження майна:
Україна, м.Київ, Київ, вул. Антоновича, 40
Схожі пропозиції
м. Київ, Антоновича 40 Оренда приміщень 6 пов.
218 534.40 грн
288.00 грн / м2
Приміщення
м. Київ, Антоновича 40 Оренда приміщень 6 пов.
Україна, м.Київ, місто Київ, вул. Антоновича, 40
19.05.2023
м. Київ, бульвар Бучми Амвросія, 5. Оренда – приміщення 3-го та 4-го поверхів технічної будівлі АТС-550 (літ. «Б»), площею 1006,83 кв. м. (В)
26.08.2025
м. Київ, вул. Миколи Голего, 8. Оренда – приміщення 1-го поверху площею 30,90 кв.м (В)
1 854.00 грн
60.00 грн / м2
Приміщення
м. Київ, вул. Миколи Голего, 8. Оренда – приміщення 1-го поверху площею 30,90 кв.м (В)
Україна, м.Київ, Київ, вулиця Миколи Голего, 8
м. Київ, вул. Макіївська, 3.Оренда – приміщення 2-го поверху, площею 724,10 м2 (В)
76 682.19 грн
105.90 грн / м2
Приміщення
м. Київ, вул. Макіївська, 3.Оренда – приміщення 2-го поверху, площею 724,10 м2 (В)
Україна, м.Київ, Київ, вул. Макіївська, 3
Переглянуті пропозиції
19.11.2025
м. Київ, вул. Джона Маккейна, 40, літ. «В» (Печерський р-н). Оренда – гаражі, загальною площею - 315,10 кв.м. (В)
63 924.34 грн
202.87 грн / м2
Приміщення
м. Київ, вул. Джона Маккейна, 40, літ. «В» (Печерський р-н). Оренда – гаражі, загальною площею - 315,10 кв.м. (В)
Україна, м.Київ, Київ, 01042, м. Київ, вул. Джона Маккейна, 40, літ. «В» (Печерський р-н)
21.03.2025
м. Київ, вул. Джона Маккейна, 40, літ. «А» (Печерський р-н). Оренда – група приміщень на 1-му поверсі, площею 56,90 кв.м (В)
19 239.03 грн
338.12 грн / м2
Приміщення
м. Київ, вул. Джона Маккейна, 40, літ. «А» (Печерський р-н). Оренда – група приміщень на 1-му поверсі, площею 56,90 кв.м (В)
Україна, м.Київ, Київ, 01042, м. Київ, вул. Джона Маккейна, 40, літ. «А» (Печерський р-н)