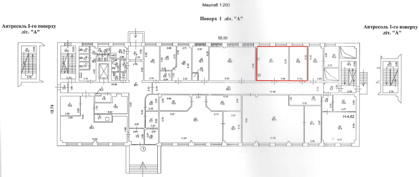
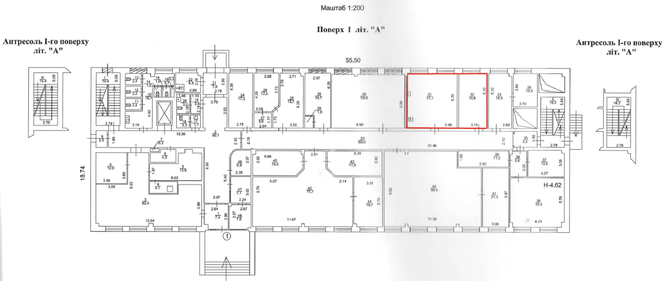
м. Київ, вул. Джона Маккейна, 40, літ. «А» (Печерський р-н). Оренда – група приміщень на 1-му поверсі, площею 56,90 кв.м (В)

19 239.03 грн
338.12 грн / м2
Україна, м.Київ, Київ, 01042, м. Київ, вул. Джона Маккейна, 40, літ. «А» (Печерський р-н)
Перейти до аукціону на сайті
  • Інформація
  • Опис
  • Документи
Дата оголошення пропозиції:
21 лютого 2025
Площа:
56.90 м2
Тип об’єкта:
Приміщення
Тип аукціону:
Англійський аукціон
Статус аукціону:
Аукціон не відбувся
Тип угоди:
Оренда
Розмір мінімального кроку:
1 000.00 ₴
Розмір гарантійного внеску:
11 543.42 ₴
Початок прийому пропозицій:
21.02.2025 01:21:06
Завершення прийому пропозицій:
20.03.2025 20:00:00
Проведення аукціону:
21.03.2025 11:20:00
Лот:
CLE001-UA-20250220-24624
№ лоту (УТК):
UTK200225_36U
Лот виставляється на торги (раз):
1
Стислий опис майна:
До оренди пропонується група приміщень на 1-му поверсі, площею 56,90 кв. м. Будівля знаходиться в Печерському районі міста Києва, місцевість Саперне поле, в пішому доступі до ст. м. Дружби Народів (до 5 хв.) та ст. м. Либідська, ст. м. Печерська (до 10 хв.), у районі розвинена інфраструктура й відмінна транспортна розв’язка, поруч торгові центри, супермаркети, парки.. Вхід з вул. Джона Маккейна. Характеристики • кількість поверхів – 4; • загальна площа – 4 778,70 кв. м ; • опалення централізоване (міське); • водопостачання, каналізація, сан. вузол – присутні (на поверсі); • земельна ділянка – 0,46 га (договір оренди).
Адреса місцезнаходження майна:
Україна, м.Київ, Київ, 01042, м. Київ, вул. Джона Маккейна, 40, літ. «А» (Печерський р-н)
Схожі пропозиції
31.07.2025
м. Київ, вул. Дегтярівська, 28А, літ. «А» (Шевченківський р-н). Оренда – приміщення на 4-му поверсі, площею – 496,20 кв.м (В)
53 291.88 грн
107.40 грн / м2
Приміщення
м. Київ, вул. Дегтярівська, 28А, літ. «А» (Шевченківський р-н). Оренда – приміщення на 4-му поверсі, площею – 496,20 кв.м (В)
Україна, м.Київ, Київ, 04119, м. Київ, вул. Дегтярівська, 28А, літ. «А» (Шевченківський р-н)
30.04.2025
м. Київ, вул. Василя Макуха (Шевченківський р-н), 5Оренда – приміщення цокольного поверху будівлі, площею 375,80 м. кв. (В)
63 690.59 грн
169.48 грн / м2
Приміщення
м. Київ, вул. Василя Макуха (Шевченківський р-н), 5Оренда – приміщення цокольного поверху будівлі, площею 375,80 м. кв. (В)
Україна, м.Київ, Київ, вулиця Василя Макуха, 5
ДОВГОСТРОКОВА ОРЕНДА! м. Київ, вул. Антоновича, 40, оренда – приміщення 2-го поверху, площею 757,90 кв.м. (В)
294 504.78 грн
388.58 грн / м2
Приміщення
ДОВГОСТРОКОВА ОРЕНДА! м. Київ, вул. Антоновича, 40, оренда – приміщення 2-го поверху, площею 757,90 кв.м. (В)
Україна, м.Київ, Київ, вул. Антоновича, 40
08.04.2025
м. Київ, вул. Князів Острозьких (Московська), 23 (В). Оренда – приміщення підвалу будівлі, площею 254,50 м2
71 377.07 грн
280.46 грн / м2
Приміщення
м. Київ, вул. Князів Острозьких (Московська), 23 (В). Оренда – приміщення підвалу будівлі, площею 254,50 м2
Україна, м.Київ, Київ, вулиця Князів Острозьких, 23