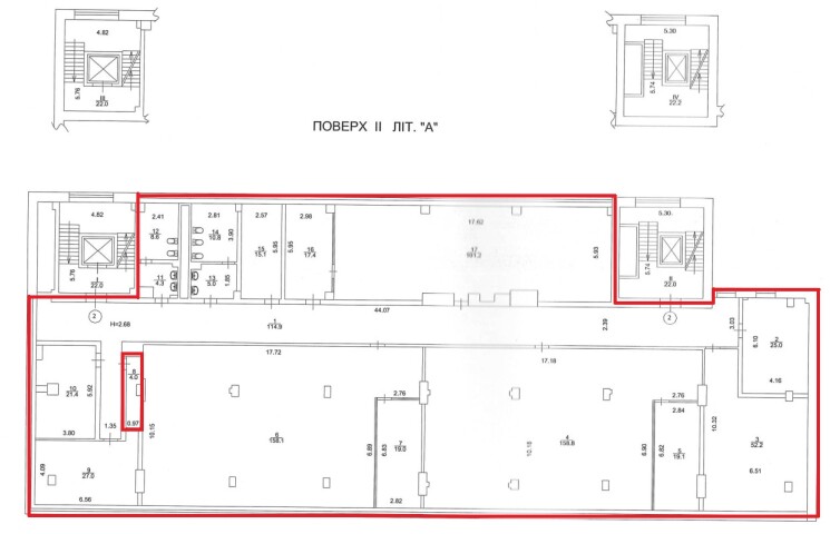
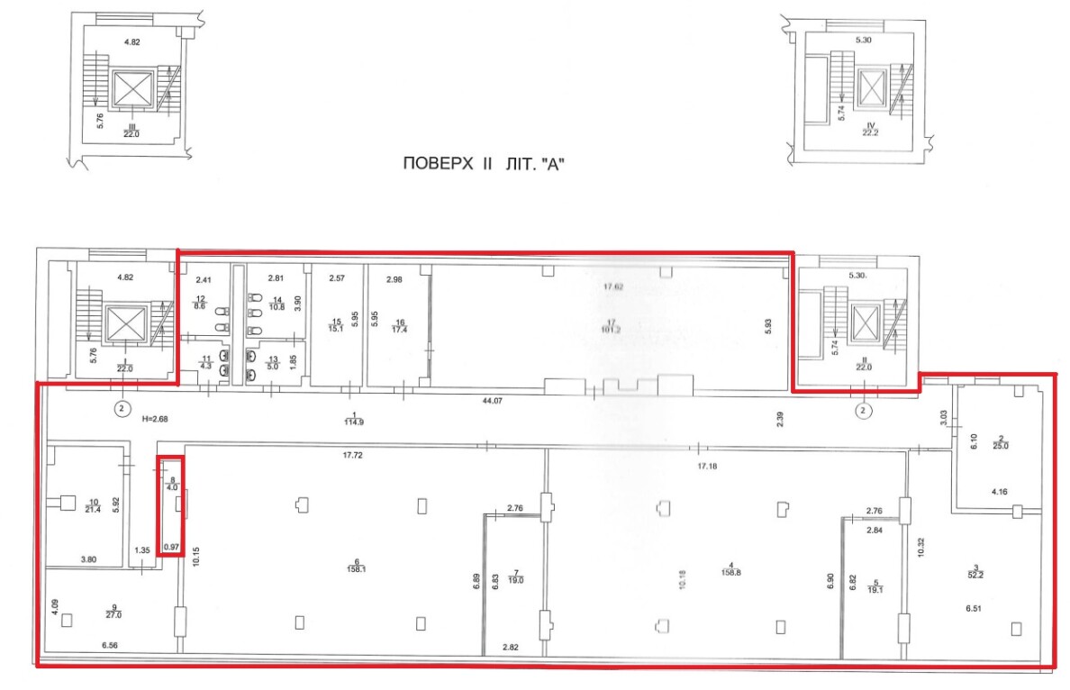
ДОВГОСТРОКОВА ОРЕНДА! м. Київ, вул. Антоновича, 40, оренда – приміщення 2-го поверху, площею 757,90 кв.м. (В)

294 504.78 грн
388.58 грн / м2
Україна, м.Київ, Київ, вул. Антоновича, 40
Перейти до аукціону на сайті
  • Інформація
  • Опис
  • Документи
Дата оголошення пропозиції:
24 вересня 2021
Площа:
757.90 м2
Тип об’єкта:
Приміщення
Тип аукціону:
Англійський аукціон
Статус аукціону:
Аукціон не відбувся
Тип угоди:
Оренда
Розмір мінімального кроку:
3 500.00 ₴
Розмір гарантійного внеску:
176 702.87 ₴
Початок прийому пропозицій:
24.09.2021 10:41:38
Завершення прийому пропозицій:
25.10.2021 20:00:00
Лот:
UA-PS-2021-09-24-000004-2
№ лоту (УТК):
UTK120721_01T
Лот виставляється на торги (раз):
3
Стислий опис майна:
Пропонуються до оренди приміщення 2-го, площею 757,90 кв.м. Стан приміщень задовільний. Кондиціонування присутнє в приміщенні. Будівля знаходиться у центрі міста на перехресті вулиць Жилянська та Антоновича. Поруч з БЦ розташована зупинка міського автотранспорту, в 5-ти хвилинах ходьби знаходиться станція метро «Олімпійська», парк Тараса Шевченка. Зарядна станція Utrecharge. Вхід з вул. Антоновича. Характеристики: • кількість поверхів – 9; • загальна площа будівлі – 7649,30 м2; • опалення централізоване (міське); • земельна ділянка – 0,2099 га; • сан. вузол, водопостачання, каналізація - присутні;
Адреса місцезнаходження майна:
Україна, м.Київ, Київ, вул. Антоновича, 40
Схожі пропозиції
19.11.2025
м. Київ, вул. Джона Маккейна, 40, літ. «В» (Печерський р-н). Оренда – гаражі, загальною площею - 315,10 кв.м. (В)
63 924.34 грн
202.87 грн / м2
Приміщення
м. Київ, вул. Джона Маккейна, 40, літ. «В» (Печерський р-н). Оренда – гаражі, загальною площею - 315,10 кв.м. (В)
Україна, м.Київ, Київ, 01042, м. Київ, вул. Джона Маккейна, 40, літ. «В» (Печерський р-н)
20.06.2023
м. Київ, вул. Василя Макуха (Івана Шевцова), 5 Оренда – приміщення 1-го поверху будівлі, площею 401,5 м2 (В)
41 860.39 грн
104.26 грн / м2
Приміщення
м. Київ, вул. Василя Макуха (Івана Шевцова), 5 Оренда – приміщення 1-го поверху будівлі, площею 401,5 м2 (В)
Україна, м.Київ, м. Київ, вулиця Василя Макуха (Івана Шевцова), 5
13.09.2022
м. Київ, вул. Дегтярівська, 28-А. Оренда – приміщення 1-го поверху площею 115,95 кв.м. (В)
14 943.64 грн
128.88 грн / м2
Приміщення
м. Київ, вул. Дегтярівська, 28-А. Оренда – приміщення 1-го поверху площею 115,95 кв.м. (В)
Україна, м.Київ, Київ, вулиця Дегтярівська, 28А
01.12.2022
Довгострокова оренда. м. Київ, вул. Горького (Антоновича), 40. Оренда – приміщення 1-го поверху, площею 538,5 кв. м. (В)
Переглянуті пропозиції
10.09.2024
Дніпропетровська обл., м. Кам’янське, вул. Героїв АТО, 1;  Оренда – приміщення 3-го поверху площею 17,3 кв.м. (В)
259.50 грн
15.00 грн / м2
Приміщення
Дніпропетровська обл., м. Кам’янське, вул. Героїв АТО, 1; Оренда – приміщення 3-го поверху площею 17,3 кв.м. (В)
Україна, Дніпропетровська обл., Кам’янське, Героїв АТО, 1
25.11.2022
м. Київ, пр-т. Оболонський, 32-Б. Оренда – приміщення 4-го поверху, площею 715,60 м2 (В)
105 357.79 грн
147.23 грн / м2
Приміщення
м. Київ, пр-т. Оболонський, 32-Б. Оренда – приміщення 4-го поверху, площею 715,60 м2 (В)
Україна, м.Київ, м. Київ, пр-т. Оболонський, 32-Б
26.12.2024
м. Київ, вул. Василя Макуха (Івана Шевцова), 5;   Оренда – приміщення 1-го поверху будівлі, площею 401,5 кв.м. (В)
83 720.78 грн
208.52 грн / м2
Приміщення
м. Київ, вул. Василя Макуха (Івана Шевцова), 5; Оренда – приміщення 1-го поверху будівлі, площею 401,5 кв.м. (В)
Україна, м.Київ, м. Київ, вулиця Василя Макуха (Івана Шевцова), 5
18.03.2025
Дніпропетровська обл., м. Нікополь, вулиця Патріотів України, буд.113-А;  Оренда – перший поверх, загальною площею 1104,3 кв.м.(В)
13 251.60 грн
12.00 грн / м2
Приміщення
Дніпропетровська обл., м. Нікополь, вулиця Патріотів України, буд.113-А; Оренда – перший поверх, загальною площею 1104,3 кв.м.(В)
Україна, Дніпропетровська обл., Нікополь, вул. Патріотів України, буд. 113-А