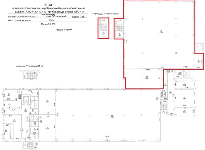
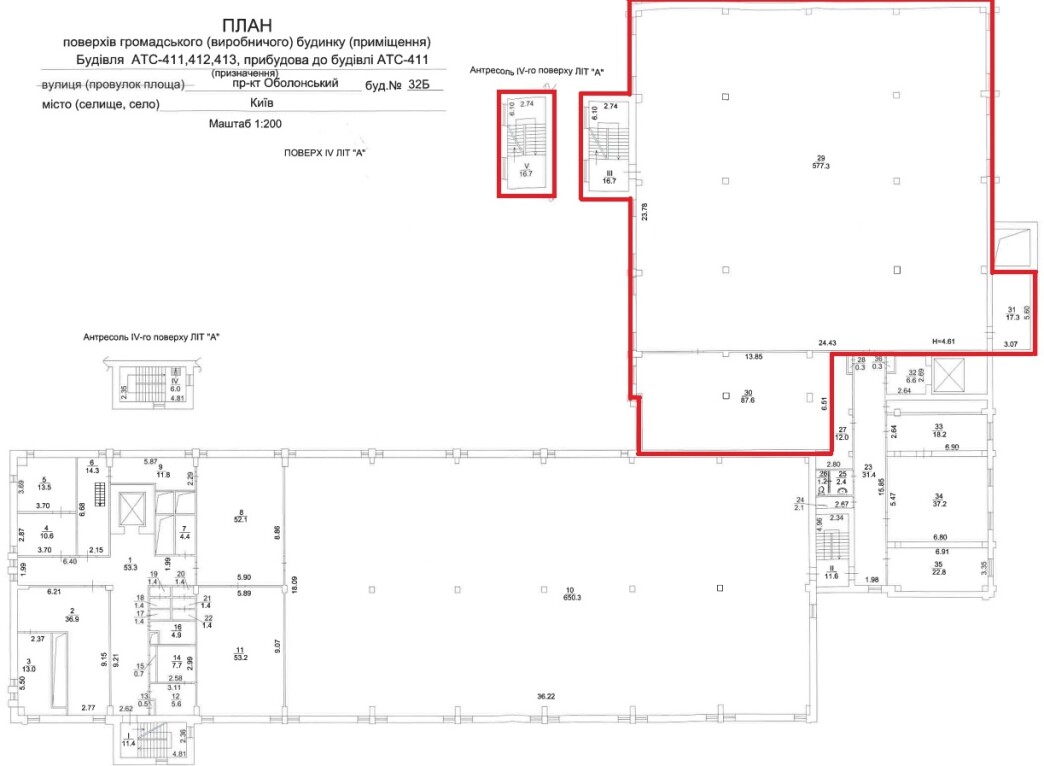
м. Київ, пр-т. Оболонський, 32-Б. Оренда – приміщення 4-го поверху, площею 715,60 м2 (В)

105 357.79 грн
147.23 грн / м2
Україна, м.Київ, м. Київ, пр-т. Оболонський, 32-Б
Перейти до аукціону на сайті
  • Інформація
  • Опис
  • Документи
Дата оголошення пропозиції:
26 жовтня 2022
Площа:
715.60 м2
Тип об’єкта:
Приміщення
Тип аукціону:
Англійський аукціон
Статус аукціону:
Аукціон не відбувся
Тип угоди:
Оренда
Розмір мінімального кроку:
1 000.00 ₴
Розмір гарантійного внеску:
63 214.67 ₴
Початок прийому пропозицій:
26.10.2022 21:08:17
Завершення прийому пропозицій:
24.11.2022 20:00:00
Проведення аукціону:
25.11.2022 11:40:00
Лот:
CLE001-UA-20221026-39740
№ лоту (УТК):
UTK150722_02T
Лот виставляється на торги (раз):
4
Стислий опис майна:
Пропонуються до оренди приміщення 4-го поверху, площею 715,60 м2 Будівля знаходиться в Оболонському районі міста Києва, житловий масив Оболонь, розвинена інфраструктура, високі автомобільний та пішохідний потоки, в 5 хв. від ст. м. Героїв Дніпра та Мінська (синя гілка), Торгівельно-розважальні центри. Характеристики: • загальна площа будівлі – 9462,60 м2 • кількість поверхів – 4; • опалення централізоване (міське); • земельна ділянка – 0,6695 га; • водопостачання, каналізація, сан. вузол – присутнє.
Адреса місцезнаходження майна:
Україна, м.Київ, м. Київ, пр-т. Оболонський, 32-Б
Схожі пропозиції
01.04.2025
м. Київ, бульвар Академіка Вернадського, 79-А (В). Оренда – приміщення 2-го поверху, загальною площею – 37,70 кв.м.
6 424.08 грн
170.40 грн / м2
Приміщення
м. Київ, бульвар Академіка Вернадського, 79-А (В). Оренда – приміщення 2-го поверху, загальною площею – 37,70 кв.м.
Україна, м.Київ, Київ, бульвар Академіка Вернадського, 79
м. Київ, вул. Джона Маккейна, №40 Оренда – приміщення 1-го поверху, площею 99,10 кв.м. (П)
61 614.43 грн
621.74 грн / м2
Приміщення
м. Київ, вул. Джона Маккейна, №40 Оренда – приміщення 1-го поверху, площею 99,10 кв.м. (П)
Україна, м.Київ, Київ, вул. Джона Маккейна, №40
м. Київ, вул. Антоновича, 40. Оренда – приміщення 1-го поверху, площею 66,60 кв.м. (В)
38 819.14 грн
582.87 грн / м2
Приміщення
м. Київ, вул. Антоновича, 40. Оренда – приміщення 1-го поверху, площею 66,60 кв.м. (В)
Україна, м.Київ, м. Київ, вул. Антоновича, 40
11.10.2022
м. Київ, вул. Миколи Голего, 8. Оренда – приміщення 1-го поверху площею 30,90 м2 (В)
6 674.40 грн
216.00 грн / м2
Приміщення
м. Київ, вул. Миколи Голего, 8. Оренда – приміщення 1-го поверху площею 30,90 м2 (В)
Україна, м.Київ, Київ, вулиця Миколи Голего, 8
Переглянуті пропозиції
26.12.2024
м. Київ, вул. Василя Макуха (Івана Шевцова), 5;   Оренда – приміщення 1-го поверху будівлі, площею 401,5 кв.м. (В)
83 720.78 грн
208.52 грн / м2
Приміщення
м. Київ, вул. Василя Макуха (Івана Шевцова), 5; Оренда – приміщення 1-го поверху будівлі, площею 401,5 кв.м. (В)
Україна, м.Київ, м. Київ, вулиця Василя Макуха (Івана Шевцова), 5
18.03.2025
Дніпропетровська обл., м. Нікополь, вулиця Патріотів України, буд.113-А;  Оренда – перший поверх, загальною площею 1104,3 кв.м.(В)
13 251.60 грн
12.00 грн / м2
Приміщення
Дніпропетровська обл., м. Нікополь, вулиця Патріотів України, буд.113-А; Оренда – перший поверх, загальною площею 1104,3 кв.м.(В)
Україна, Дніпропетровська обл., Нікополь, вул. Патріотів України, буд. 113-А
02.08.2024
Дніпропетровська обл., смт Софіївка, бул. Шевченка, 17А. Оренда – приміщення гаражу (Г-2) площею 33,00 кв.м.(В)
429.00 грн
13.00 грн / м2
Приміщення
Дніпропетровська обл., смт Софіївка, бул. Шевченка, 17А. Оренда – приміщення гаражу (Г-2) площею 33,00 кв.м.(В)
Україна, Дніпропетровська обл., смт Софіївка, ул. Шевченка, 17А
03.05.2023
Довгострокова оренда. м. Київ, вул. Горького (Антоновича), 40. Оренда – приміщення 1-го поверху, площею 538,5 кв. м. (В)