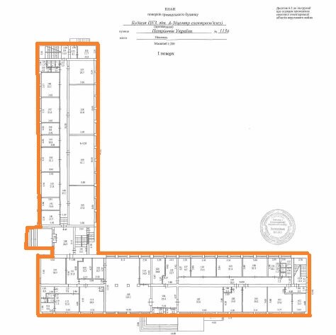
Дніпропетровська обл., м. Нікополь, вулиця Патріотів України, буд.113-А; Оренда – перший поверх, загальною площею 1104,3 кв.м.(В)

13 251.60 грн
12.00 грн / м2
Україна, Дніпропетровська обл., Нікополь, вул. Патріотів України, буд. 113-А
Перейти до аукціону на сайті
  • Інформація
  • Опис
  • Документи
Дата оголошення пропозиції:
14 лютого 2025
Площа:
1104.30 м2
Тип об’єкта:
Приміщення
Тип аукціону:
Англійський аукціон
Статус аукціону:
Аукціон не відбувся
Тип угоди:
Оренда
Розмір мінімального кроку:
100.00 ₴
Розмір гарантійного внеску:
7 950.96 ₴
Початок прийому пропозицій:
14.02.2025 14:06:38
Завершення прийому пропозицій:
17.03.2025 20:00:00
Проведення аукціону:
18.03.2025 12:40:00
Лот:
CLE001-UA-20250214-96828
№ лоту (УТК):
UTK180222_03T
Лот виставляється на торги (раз):
10
Стислий опис майна:
Пропонується до оренди приміщення 1-го поверху, загальною площею 1104,3 кв.м. Поруч знаходяться торгівельний центр, середній автомобільний і пішохідний потоки. Стан приміщення задовільний, підходить для розміщення офісу. Характеристики: -Кількість поверхів – 3; -Загальна площа – 6459,1 кв.м_ -Площа запропонована до оренди – 1104,3 кв.м -Електропостачання, водопостачання; -Земельна ділянка – 1,1369 га (договір оренди)
Адреса місцезнаходження майна:
Україна, Дніпропетровська обл., Нікополь, вул. Патріотів України, буд. 113-А
Схожі пропозиції
25.04.2025
Дніпропетровська обл., м. Дніпро, вул. Січових Стрільців, 10. Оренда – приміщення 1-го поверху площею 214,10 кв.м (В)
10 705.00 грн
50.00 грн / м2
Приміщення
Дніпропетровська обл., м. Дніпро, вул. Січових Стрільців, 10. Оренда – приміщення 1-го поверху площею 214,10 кв.м (В)
Україна, Дніпропетровська обл., м. Дніпро, вул. Січових Стрільців, 10
24.05.2023
ДОВГОСТРОКОВА ОРЕНДА! Дніпропетровська обл., м. Дніпро, вул. Панікахи, 27. Оренда – приміщення 2-го поверху площею 557,80 кв.м. (П)
42 560.14 грн
76.30 грн / м2
Приміщення
ДОВГОСТРОКОВА ОРЕНДА! Дніпропетровська обл., м. Дніпро, вул. Панікахи, 27. Оренда – приміщення 2-го поверху площею 557,80 кв.м. (П)
Україна, Дніпропетровська обл., м. Дніпро, вул. Панікахи, 27
18.07.2025
ДОВГОСТРОКОВА ОРЕНДА! Дніпропетровська обл., м. Дніпро, вул. Панікахи, 27. Оренда – приміщення 3-го поверху площею 410,5 кв.м.(В)
12 315.00 грн
30.00 грн / м2
Приміщення
ДОВГОСТРОКОВА ОРЕНДА! Дніпропетровська обл., м. Дніпро, вул. Панікахи, 27. Оренда – приміщення 3-го поверху площею 410,5 кв.м.(В)
Україна, Дніпропетровська обл., м. Дніпро, вул. Панікахи, 27
01.09.2023
Дніпропетровська обл., м. Дніпро, вул. Князя Ярослава Мудрого, 3. Оренда – приміщення 5-го поверху площею 34,80 кв.м.(В)
4 163.81 грн
119.65 грн / м2
Приміщення
Дніпропетровська обл., м. Дніпро, вул. Князя Ярослава Мудрого, 3. Оренда – приміщення 5-го поверху площею 34,80 кв.м.(В)
Україна, Дніпропетровська обл., м. Дніпро, вул. Князя Ярослава Мудрого, 3
Переглянуті пропозиції
02.08.2024
Дніпропетровська обл., смт Софіївка, бул. Шевченка, 17А. Оренда – приміщення гаражу (Г-2) площею 33,00 кв.м.(В)
429.00 грн
13.00 грн / м2
Приміщення
Дніпропетровська обл., смт Софіївка, бул. Шевченка, 17А. Оренда – приміщення гаражу (Г-2) площею 33,00 кв.м.(В)
Україна, Дніпропетровська обл., смт Софіївка, ул. Шевченка, 17А
03.05.2023
Довгострокова оренда. м. Київ, вул. Горького (Антоновича), 40. Оренда – приміщення 1-го поверху, площею 538,5 кв. м. (В)
08.05.2024
м. Київ, вул. Будівельників, 8-Б;   Оренда – приміщення підвалу, площею 452,6 кв.м. (В)
42 300.00 грн
93.46 грн / м2
Приміщення
м. Київ, вул. Будівельників, 8-Б; Оренда – приміщення підвалу, площею 452,6 кв.м. (В)
Україна, м.Київ, Київ, вулиця Будівельників, 8-Б
10.01.2023
Дніпропетровська обл., м. Дніпро, вул. Князя Ярослава Мудрого, 3. Оренда – приміщення 5-го поверху площею 58,20 кв.м. (В)
3 887.76 грн
66.80 грн / м2
Приміщення
Дніпропетровська обл., м. Дніпро, вул. Князя Ярослава Мудрого, 3. Оренда – приміщення 5-го поверху площею 58,20 кв.м. (В)
Україна, Дніпропетровська обл., м. Дніпро, вул. Князя Ярослава Мудрого, 3, вул. Дніпровська, 226