Дніпропетровська обл., м. Дніпро, вул. Січових Стрільців, 10. Оренда – приміщення 1-го поверху площею 214,10 кв.м (В)

10 705.00 грн
50.00 грн / м2
Україна, Дніпропетровська обл., м. Дніпро, вул. Січових Стрільців, 10
Перейти до аукціону на сайті
  • Інформація
  • Опис
  • Документи
Дата оголошення пропозиції:
25 березня 2025
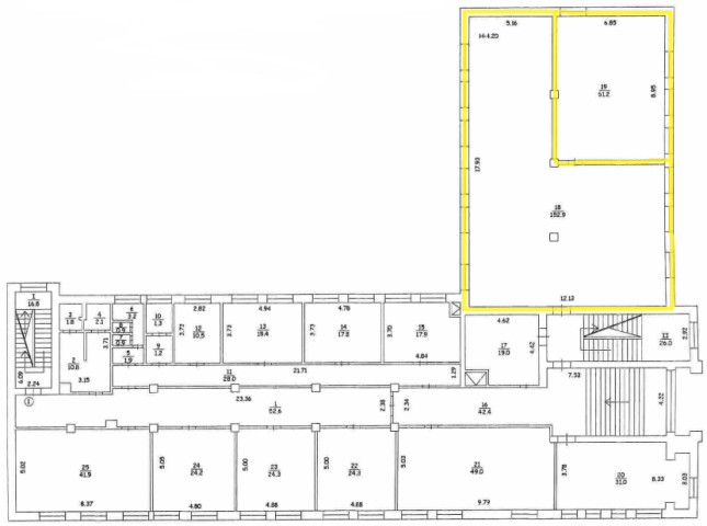
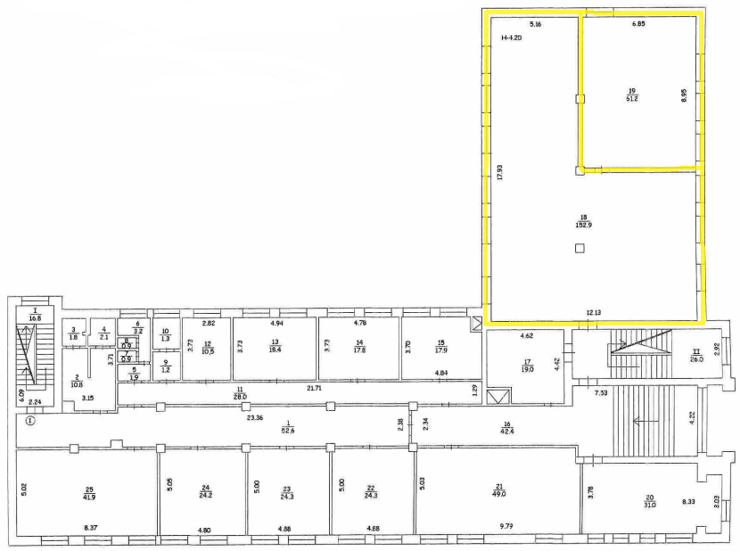
Площа:
214.10 м2
Тип об’єкта:
Приміщення
Тип аукціону:
Англійський аукціон
Статус аукціону:
Аукціон не відбувся
Тип угоди:
Оренда
Розмір мінімального кроку:
200.00 ₴
Розмір гарантійного внеску:
6 423.00 ₴
Початок прийому пропозицій:
25.03.2025 13:26:44
Завершення прийому пропозицій:
24.04.2025 20:00:00
Проведення аукціону:
25.04.2025 12:25:00
Лот:
CLE001-UA-20250325-23029
№ лоту (УТК):
UTK140624_09P
Лот виставляється на торги (раз):
8
Стислий опис майна:
Пропонується до оренди приміщення 1-го поверху площею 214,10 кв.м. Розташування - будівля знаходиться в центральному районі міста. Поруч знаходяться відділення банку, високий автомобільний і пішохідний потоки. Стан приміщення задовільний, підходить для офісу, для дитячої студії, школи розвитку. Ідеальне місце під розвиток будь-якого бізнесу. Можливість передачі приміщень в суборенду. Характеристики: Кількість поверхів – 3 Загальна площа – 2761,80 кв.м Площа запропонована до оренди –214,10 кв.м Електропостачання, водопостачання, теплопостачання, охорона та обслуговування пожежної сигналізації, вивіз сміття, прибирання території; Земельна ділянка – 0, 1636 га (договір оренди) Ресурсні податки – 5,86 грн за 1 кв.м
Адреса місцезнаходження майна:
Україна, Дніпропетровська обл., м. Дніпро, вул. Січових Стрільців, 10
Схожі пропозиції
20.04.2023
Дніпропетровська обл., м. Кривий Ріг, вул. Головка Адмірала, 71. Оренда – приміщення 4-го поверху, площею 580,5 кв.м. (В)
16 997.04 грн
29.28 грн / м2
Приміщення
Дніпропетровська обл., м. Кривий Ріг, вул. Головка Адмірала, 71. Оренда – приміщення 4-го поверху, площею 580,5 кв.м. (В)
Україна, Дніпропетровська обл., Кривий Ріг, вулиця Адмірала Головка, 71
23.01.2024
Дніпропетровська обл., м.Кривий Ріг, вул. Головка Адмірала, 71;   Оренда–приміщення 3-го поверху, площею 777,3 кв.м. (В)
1 686.74 грн
2.17 грн / м2
Приміщення
Дніпропетровська обл., м.Кривий Ріг, вул. Головка Адмірала, 71; Оренда–приміщення 3-го поверху, площею 777,3 кв.м. (В)
Україна, Дніпропетровська обл., Кривий Ріг, вулиця Адмірала Головка, 71
Дніпропетровська обл., м. Жовті Води, бул. Свободи, 39. Оренда – приміщення другого поверху, загальною площею 58,80 кв.м. (В)
655.03 грн
11.14 грн / м2
Приміщення
Дніпропетровська обл., м. Жовті Води, бул. Свободи, 39. Оренда – приміщення другого поверху, загальною площею 58,80 кв.м. (В)
Україна, Дніпропетровська обл., м. Жовті Води, бул. Свободи, 39
02.08.2024
Дніпропетровська обл., м. Дніпро, вул. Січових Стрільців, 10. Оренда – приміщення 2-го поверху площею 103,60 кв.м (В)
11 748.24 грн
89.96 грн / м2
Приміщення
Дніпропетровська обл., м. Дніпро, вул. Січових Стрільців, 10. Оренда – приміщення 2-го поверху площею 103,60 кв.м (В)
Україна, Дніпропетровська обл., м. Дніпро, вул. Січових Стрільців, 10
Переглянуті пропозиції
21.03.2025
м. Київ, вул. Джона Маккейна, 40, літ. «А» (Печерський р-н). Оренда – група приміщень на 1-му поверсі, площею 56,90 кв.м (В)
19 239.03 грн
338.12 грн / м2
Приміщення
м. Київ, вул. Джона Маккейна, 40, літ. «А» (Печерський р-н). Оренда – група приміщень на 1-му поверсі, площею 56,90 кв.м (В)
Україна, м.Київ, Київ, 01042, м. Київ, вул. Джона Маккейна, 40, літ. «А» (Печерський р-н)