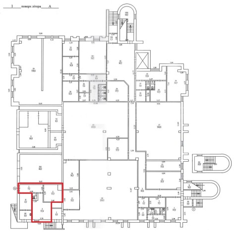
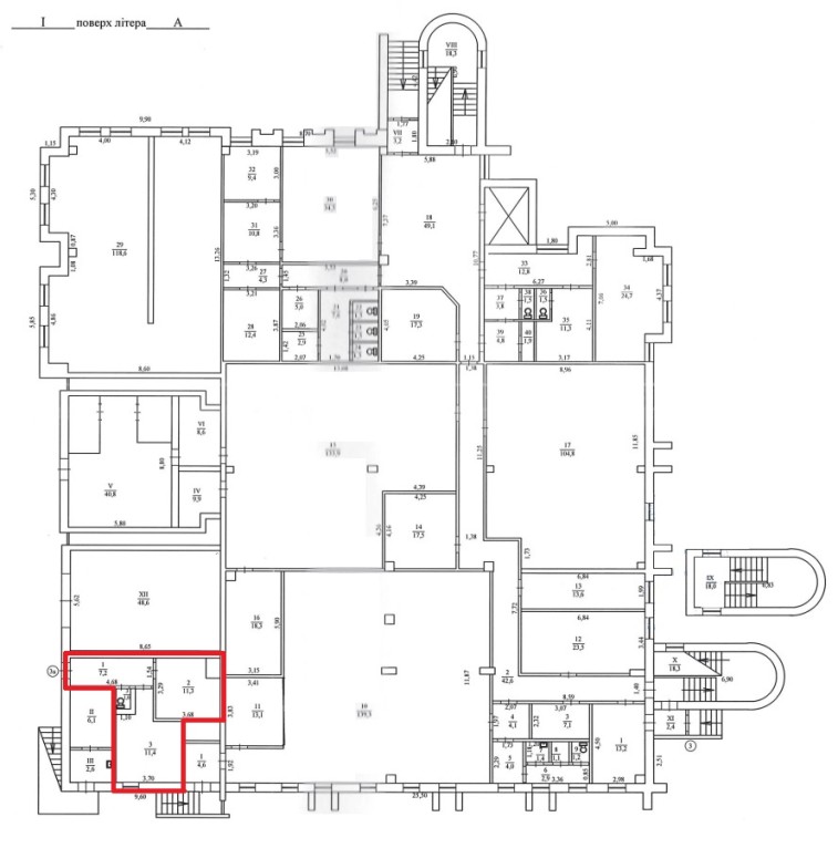
м. Київ, вул. Миколи Голего, 8. Оренда – приміщення 1-го поверху площею 30,90 кв.м (В)

1 854.00 грн
60.00 грн / м2
Україна, м.Київ, Київ, вулиця Миколи Голего, 8
Перейти до аукціону на сайті
  • Інформація
  • Опис
  • Документи
Дата оголошення пропозиції:
26 липня 2025
Площа:
30.90 м2
Тип об’єкта:
Приміщення
Тип аукціону:
Англійський аукціон
Статус аукціону:
Аукціон не відбувся
Тип угоди:
Оренда
Розмір мінімального кроку:
100.00 ₴
Розмір гарантійного внеску:
1 112.40 ₴
Початок прийому пропозицій:
26.07.2025 19:05:49
Завершення прийому пропозицій:
25.08.2025 20:00:00
Проведення аукціону:
26.08.2025 12:40:00
Лот:
CLE001-UA-20250726-62361
№ лоту (УТК):
UTK280225_63U
Лот виставляється на торги (раз):
5
Стислий опис майна:
Пропонуютьсядоорендиприміщення1-гоповерхуплощею 30,90кв.м..Розташуваннябудівлі:уСолом'янськомурайоні міста Києва, місцевість Караваєві дачі. Поруч розвинена інфраструктура,зупинкимаршрутноготранспорту,магазини, кафе, аптеки, середнійавтомобільний і пішохіднийпотоки. Доступ24/7. Характеристики • загальна площа будівлі –5639,80 м2 ; • сан. вузол, каналізація, водопостачання –присутне; • кількість поверхів –4; • енергетична потужність –3 кВт; • опалення централізоване (міське); • площа земельної ділянки –0,3625 га*;
Адреса місцезнаходження майна:
Україна, м.Київ, Київ, вулиця Миколи Голего, 8
Схожі пропозиції
09.07.2025
Довгострокова оренда! м. Київ, вул. Стрілецька, 4-6. Оренда – другий поверх, площею – 570,00 кв. м. (В)
122 094.00 грн
214.20 грн / м2
Приміщення
Довгострокова оренда! м. Київ, вул. Стрілецька, 4-6. Оренда – другий поверх, площею – 570,00 кв. м. (В)
Україна, м.Київ, Київ, м. Київ, вул. Стрілецька, 4-6
28.05.2025
м. Київ, вул. Наталії Ужвій 1 (Подільський р-н). Оренда – приміщення 1-го поверху, загальною площею – 71,20 м. кв. (В)
7 916.02 грн
111.18 грн / м2
Приміщення
м. Київ, вул. Наталії Ужвій 1 (Подільський р-н). Оренда – приміщення 1-го поверху, загальною площею – 71,20 м. кв. (В)
Україна, м.Київ, Київ, 04108, м. Київ, вул. Наталії Ужвій 1
09.06.2023
м. Київ, вул. Антоновича, 40. Оренда – приміщення підвалу площею 77,0 кв.м. (В)
13 630.54 грн
177.02 грн / м2
Приміщення
м. Київ, вул. Антоновича, 40. Оренда – приміщення підвалу площею 77,0 кв.м. (В)
Україна, м.Київ, Київ, вул. Антоновича, 40
Переглянуті пропозиції
29.02.2024
Дніпропетровська обл., смт Софіївка, бул. Шевченка, 17А. Оренда – приміщення гаражу (Г-2) площею 33,00 кв.м.(В)
429.00 грн
13.00 грн / м2
Приміщення
Дніпропетровська обл., смт Софіївка, бул. Шевченка, 17А. Оренда – приміщення гаражу (Г-2) площею 33,00 кв.м.(В)
Україна, Дніпропетровська обл., смт Софіївка, ул. Шевченка, 17А
29.03.2024
м. Київ, вул. Джона Маккейна, №40;   Оренда – приміщення підвалу, площею 24,80 м2 (В)
5 882.31 грн
237.19 грн / м2
Приміщення
м. Київ, вул. Джона Маккейна, №40; Оренда – приміщення підвалу, площею 24,80 м2 (В)
Україна, м.Київ, Київ, вулиця Джона Маккейна, 40
10.01.2023
Дніпропетровська обл., м. Дніпро, вул. Чернишевського, 27. Оренда – приміщення 2-го поверху площею 98,40 кв.м. (В)
6 683.33 грн
67.92 грн / м2
Приміщення
Дніпропетровська обл., м. Дніпро, вул. Чернишевського, 27. Оренда – приміщення 2-го поверху площею 98,40 кв.м. (В)
Україна, Дніпропетровська обл., м. Дніпро, вул. Чернишевського, 27
14.12.2023
Дніпропетровська обл., м. Дніпро, вул.Чернишевського, 27;   Оренда – приміщення 1-го поверху площею 19,8 кв.м.(В)
2 004.95 грн
101.26 грн / м2
Приміщення
Дніпропетровська обл., м. Дніпро, вул.Чернишевського, 27; Оренда – приміщення 1-го поверху площею 19,8 кв.м.(В)
Україна, Дніпропетровська обл., Дніпро, вулиця Чернишевського, 27