Довгострокова оренда! м. Київ, вул. Стрілецька, 4-6. Оренда – другий поверх, площею – 570,00 кв. м. (В)

122 094.00 грн
214.20 грн / м2
Україна, м.Київ, Київ, м. Київ, вул. Стрілецька, 4-6
Перейти до аукціону на сайті
  • Інформація
  • Опис
  • Документи
Дата оголошення пропозиції:
06 червня 2025
Площа:
570.00 м2
Тип об’єкта:
Приміщення
Тип аукціону:
Англійський аукціон
Статус аукціону:
Аукціон відмінено
Тип угоди:
Оренда
Розмір мінімального кроку:
2 500.00 ₴
Розмір гарантійного внеску:
73 256.40 ₴
Початок прийому пропозицій:
06.06.2025 15:38:44
Завершення прийому пропозицій:
08.07.2025 20:00:00
Проведення аукціону:
09.07.2025 11:30:00
Лот:
CLE001-UA-20250606-24465
№ лоту (УТК):
UTK201224_04U
Лот виставляється на торги (раз):
2
Стислий опис майна:
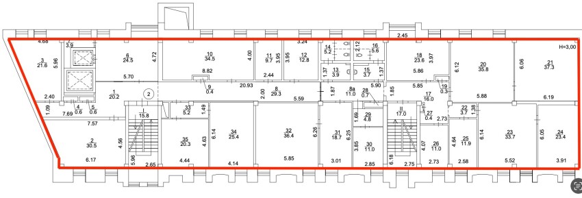
Пропонуються до оренди другий поверх площею – 570,00 кв. м. Будівля знаходиться у Шевченківському районі міста Києва. Центральна історична частина міста, розвинена інфраструктура, зупинки маршрутного транспорту, супермаркети, кафе, аптеки, фінансові заклади, в’їзд через майданчик з парко-місцями. Доступ 24/7. Характеристики • кількість поверхів – 4; • опалення централізоване (міське); • земельна ділянка – 0,1154 га; • загальна площа будівлі – 2 320,10 м2 ; • сан. вузол, каналізація, водопостачання – є; • енерго потужність – 30 кВт.
Адреса місцезнаходження майна:
Україна, м.Київ, Київ, м. Київ, вул. Стрілецька, 4-6
Схожі пропозиції
09.07.2025
Довгострокова оренда! м. Київ, вул. Петра Курінного, 2-Б. Оренда – 3-й поверх, площею - 614,80 кв. м. (В)
36 888.00 грн
60.00 грн / м2
Приміщення
Довгострокова оренда! м. Київ, вул. Петра Курінного, 2-Б. Оренда – 3-й поверх, площею - 614,80 кв. м. (В)
Україна, м.Київ, Київ, вулиця Петра Курінного, 2б
м. Київ, вул. Архітектора Вербицького, 3. Оренда – Приміщення 1-го, 3-го, 4-го поверхів, площею 1191,50 м2 (В)
138 547.62 грн
116.28 грн / м2
Приміщення
м. Київ, вул. Архітектора Вербицького, 3. Оренда – Приміщення 1-го, 3-го, 4-го поверхів, площею 1191,50 м2 (В)
Україна, м.Київ, Київ, вул. Архітектора Вербицького, 3
20.02.2024
м.Київ, вул. Миколи Голего,8;   Оренда–приміщення 3-го поверху площею 79,7кв.м.(В)
11 301.46 грн
141.80 грн / м2
Приміщення
м.Київ, вул. Миколи Голего,8; Оренда–приміщення 3-го поверху площею 79,7кв.м.(В)
Україна, м.Київ, Київ, вулиця Миколи Голего, 8
03.03.2023
м. Київ, вул. Василя Макуха (Шевцова Івана), 5. Довгострокова оренда – приміщення 3-го поверху площею 905,3 м2 (В)
118 766.31 грн
131.19 грн / м2
Приміщення
м. Київ, вул. Василя Макуха (Шевцова Івана), 5. Довгострокова оренда – приміщення 3-го поверху площею 905,3 м2 (В)
Україна, м.Київ, Київ, вул. Василя Макуха (Шевцова Івана), 5